查看完整案例


收藏

下载
© Mirko Merchiori
米尔科·默基奥里(Mirko Merchiori)
架构师提供的文本描述。翻修和扩建一所庄严的排屋在欧维恩,荷兰。房子位于沙丘地区,因此地面水平在前面高于后方。
Text description provided by the architects. Renovation and extension of a stately row house in Overveen, The Netherlands. The house is located in a dune area and therefore the ground level is higher at the front than at the rear.
© Mirko Merchiori
米尔科·默基奥里(Mirko Merchiori)
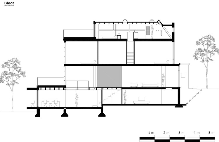
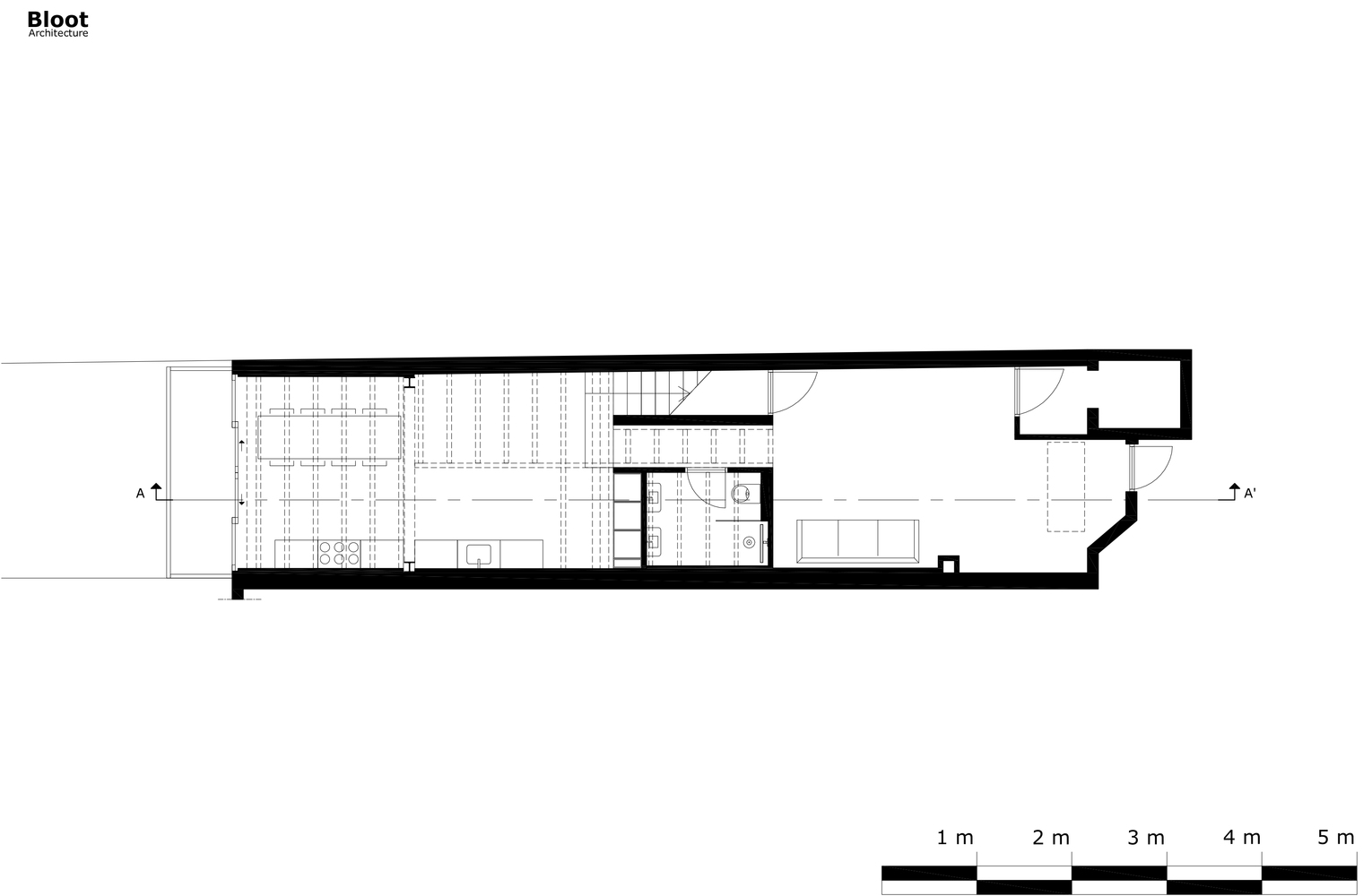
房子的内部在70年代就已经被照顾了,并且被剥夺了所有的时代特征。底层是一个居住区域,是一个狭小的大空间。一个螺旋楼梯,有一个栏杆,由海绳组成,通往地下室,包括一系列小房间,包括一个小厨房。一楼和二楼由卧室和家庭浴室组成。
The inside of the house was already taken care of in the 70s and stripped of all period features. The ground floor serves as a living area and was a large narrow space. A spiral staircase with a balustrade made of marine rope led to the basement that consisted of a series of small rooms including a small kitchen. The first and second floors consist of bedrooms and a family bathroom.
© Mirko Merchiori
米尔科·默基奥里(Mirko Merchiori)
地下室现在已经扩建,使现有的厨房变得更大,现在已经成为一个真正的家庭厨房,开放的视野后花园。与家庭厨房相连的浮动阳台加强了这种关系。在漂浮的阳台上,你可以坐着喝杯咖啡,双腿悬垂。
The basement has now been extended so that the existing kitchen has become larger and has now become a real family kitchen with an open view of the back garden. A floating veranda connected to the family kitchen strengthens this relationship. On the floating veranda you can sit with a cup of coffee and dangle your legs.
© Mirko Merchiori
米尔科·默基奥里(Mirko Merchiori)
由于新厨房的缘故,开放式客厅太大了。地下室的天花板很低,而且很暗,所以在厨房和客厅之间建立一个开放的连接是一个合乎逻辑的步骤。想要在延伸处有一个屋顶露台的愿望导致了客厅的地板和延伸的屋顶之间的连接。为了打开这个区域,使尽可能轻盈和通风,厨房和客厅之间的一切都是用玻璃做的。玻璃是由大道格拉斯梁支撑,并继续延伸。
The open plan living room is too large for its purpose due to the new kitchen. The basement has a low ceiling and is dark, so creating an open connection between the kitchen and the living room was a logical step to take. The desire to have a roof terrace on the extension led to a connection between the floor of the living room and the roof of the extension. To open up this area and make as light and airy as possible, everything between kitchen and living room is made of glass . The glass is supported by large Douglas beams that are also continued into the extension.
楼梯沿着地下室、客厅和卧室之间的连续墙,在不同的空间之间创造了一个视觉连接元素,也确保了长客厅在前部和后部被分开。
The staircase that runs along a continuous wall between the basement, the living room and the bedrooms creates a visually connecting element between the different spaces and also ensures that the long living room is broken up in a front and back.
© Mirko Merchiori
米尔科·默基奥里(Mirko Merchiori)
地下室的其余部分都是开放的,有底层暖气,现在用作儿童游玩区或客房。
The rest of the basement is open, with underfloor heating and now functions as a play area for the children or as guest room.
© Mirko Merchiori
米尔科·默基奥里(Mirko Merchiori)
Architects Bloot Architecture
Location Overveen, The Netherlands
Lead Architects Tjeerd Bloothoofd
Area 269.0 m2
Project Year 2017
Photographs Mirko Merchiori
Category Houses
Manufacturers Loading...
客服
消息
收藏
下载
最近





















