查看完整案例

收藏

下载
架构师提供的文本描述。该项目位于HCM城市中心的一片狭小的土地上,这是一个居住在繁忙的生活环境中,房屋和车辆高度拥挤的不眠之城。
Text description provided by the architects. The project is located on a narrow land area in the center of HCM city, a sleepless city with highly crowded density of houses and vehicles in a very busy lifestyle environment.
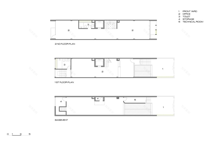
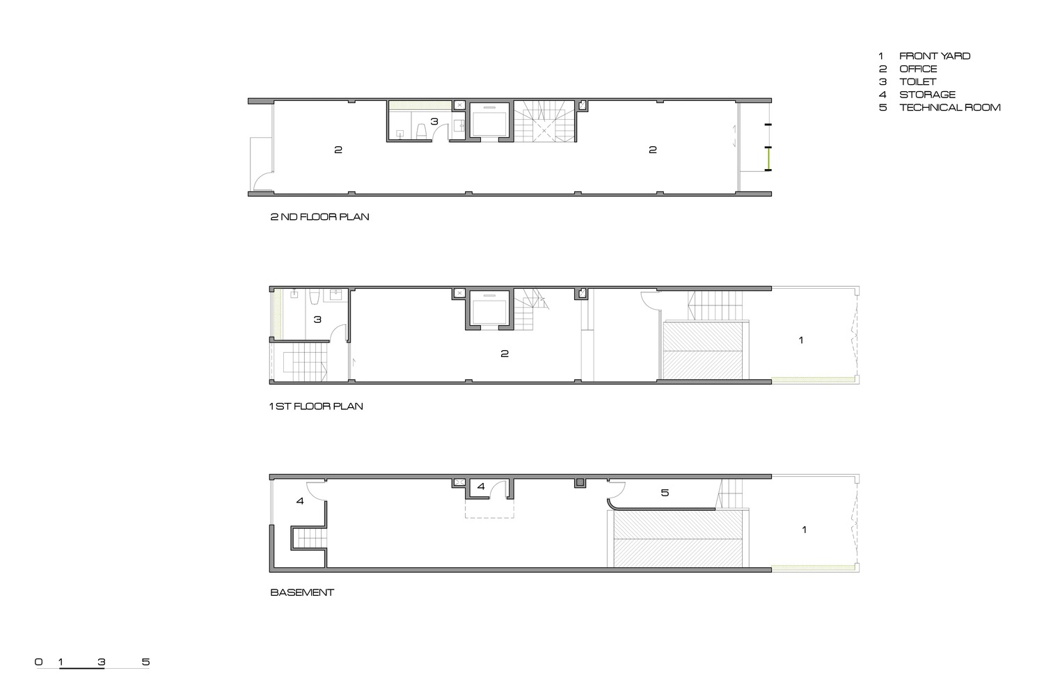
长度为4.3m,宽度为26m的土地面积是该地区典型的土地面积,其重点是发展房屋的长度和高度。这形成了一种“地铁屋”的趋势,在市中心,类型狭窄,长而高的房屋两边都没有门。同时,这些房屋的第一层是用于商业或办公室,楼上是用来生活。
The land area with length of 4.3m and width of 26m is considered as a typical land area in this region where focusing on ultimately developing houses’ length and height. This forms a trend of “Tube Houses”, in the city center, types of narrow, long and high houses without doors on two sides. Meanwhile the first floors of these houses are used for business or offices, upstairs are used for living.
这房子也不例外。前三层为办公室,楼上三层是四口之家-父母和他们的两个孩子。房子的顶层是礼拜场所和露台。
This house is not an exception. The first three floors from the ground are used for offices and the three upstairs are used by a family of four- the parents and their two children. The top floors of the house are the worship place and terrace.
巧合的是,房主、女剧作家和建筑师都有着相同的设计理念:如何让这座房子与众不同、简单但鼓舞人心、开放但私密,以及如何利用自然光源的优势。
Coincidently, both homeowner, a female dramatist and the architect have the same designing ideas of how to make this house different, simple but inspiring, open but private, and especially well-aired as well as how to take advantages of natural light sources.
解决方案之一是沿着房屋的长度分配空隙,以确保房子的空间通风良好,充满阳光,以节省能源。这些狭窄和高的住宅类型的垂直设计也是一个挑战。童年的回忆与空气纸风车带来建筑师的想法,建筑通风块旋转作为风车,使房子更活泼。这些通风大楼是由建筑师专门设计的,是由热心的承包商在现场制造的。
One of the solutions is distributing voids along the length of the house in order to ensure the house’s space to be well-aired and full of sunlight to save energy. The vertical design for these narrow and high housing types is also a challenge. Childhood memories with air paper pinwheels bring architects ideas of building ventilation block spinning as pinwheels to make the house livelier. These ventilation block are specially designed by architect and are made at the site by enthusiastic contractors.
这些活泼的通风区在夏季调节和保护房屋免受阳光直射是非常有用的,并且适合于热带亚赤道天气。
These lively ventilation block are very useful in regulating and protecting the house from direct sunlight in the summer and are suitable for the tropical sub-equatorial weather.
阳光照过这些砖块,创造出阳光明媚的图案,围绕着房子,这与站在一棵大树下,透过树叶,四处奔跑的阳光联系在一起。
Sunlight shining through these bricks create sunny and lively patterns running around the house, which associates with standing under a giant tree to contemplate slight sunshine through leaves and running here and there.
让我们感到自豪的不仅是满足房主的要求,而且是在市中心的设计和建造房屋方面度过了老旧和习惯性的考验。这些习惯包括利用整个房子的最大面积,这使房子变得露营,无法呼吸和黑暗。我们非常高兴能够为HCM市的城市房屋提供另一种建筑解决方案。这种改善可以帮助每个人和他们所爱的家庭成员在自己的房子里带来幸福和舒适的时刻。
What makes us proud is not only meeting the homeowner’s demands but also get over old and habitual trials in design and building houses in the city center. These habits include taking advantages of maximum area of the whole house, which makes the house become camped, unbreathable and dark. We are very glad that we are able to contribute another architectural solution for urban houses in HCM city. This improvement can help bring moments of happiness and comfortableness for everyone and their beloved family members in their own houses.
Architects CEEarch
Location Ho Chi Minh City, Vietnam
Architect in Charge Ho Hung Cuong
Area 111.8 m2
Project Year 2016
Photographs VietLu
Category Houses
Manufacturers Loading...
客服
消息
收藏
下载
最近



































