查看完整案例

收藏

下载
© Alessandra Chemollo
3.Alessandra Chemollo
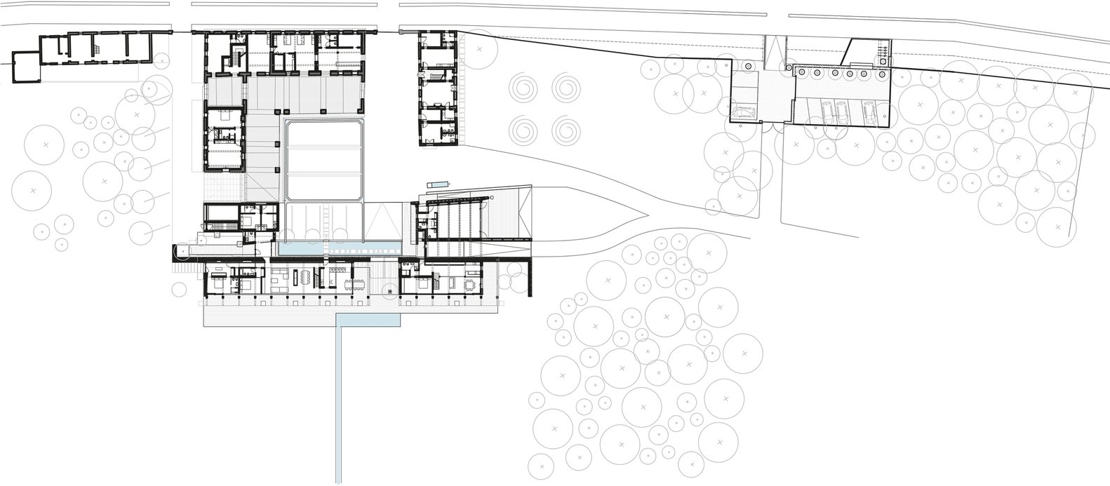
架构师提供的文本描述。Corte Bertesina位于维琴察郊区,距Signori广场仅3公里,是一个典型的19世纪威尼斯乡村庭院,与一个17公顷的乡村庄园相连,有蔬菜、谷物和饲料的有机花园。这些花园被保护在一个广阔的地区内,在2001年种植的树木原产于布谷地。自2010年起,该庄园还发挥了社会农业中心的作用,为唐氏综合症的年轻人提供了就业机会。
Text description provided by the architects. Located on the outskirts of Vicenza and only 3km from Piazza dei Signori, Corte Bertesina is a typical, rural, nineteenth century Venetian courtyard connected to a 17-hectare country estate with certified organic gardens of vegetables, grains and fodder. The gardens are protected inside a vast area planted in 2001 with trees native to the Po Valley. Since 2010, the estate also functions as a social farming center, offering job opportunities to young people with Down Syndrome.
该项目的目标是更新和完成现有的建筑核心,目的是发展新的功能关系:促进森林景观的文化和教育活动,通过唐氏综合症青年参与的社会耕作活动,与当地社会合作社的合作,农产品、住宅、床和早餐的准备和销售。
The objective of the project has been to regenerate and complete the existing building core with the intention of developing new functional relationships: cultural and educational activities for the enhancement of the forest landscape, social farming activities through the involvement of young people with Down Syndrome, collaboration with local social cooperatives, preparation and sale of agricultural products, residences, bed and breakfast.
© Alessandra Chemollo
3.Alessandra Chemollo
此外,该项目旨在尽可能轻松地干预自然环境,从周围环境中吸收其未来居民的视觉、精力和健康潜力。
Additionally, the project aims to intervene into the natural context as lightly as possible, absorbing from the surroundings visual, energetic and wellness potential for its future inhabitants.
可持续性概念是该项目社会意图背后的推动力,包括用户的福祉、建筑材料和建筑技术的选择以及能源的生产和使用。
The concept of sustainability was a driving force behind the social intentions of the project, encompassing the wellbeing of its users, the choice of building materials and construction techniques, and energy production and use.
© Alessandra Chemollo
3.Alessandra Chemollo
历史庭院的空间是在南边用传统方法建造的一堵长而线性的土石墙来定义的。隔离墙起到“过滤器”的作用,公共功能,社会功能,发生在庭院和私人项目的新住宅。
The space of the historic courtyard is defined on the south edge by a long, linear wall in local stone built using traditional methods. The wall acts as a “filter” between public, social functions that occur in the courtyard and the private programs of the new residences.
© Alessandra Chemollo
3.Alessandra Chemollo
新住宅的体积是线性的:轻型建筑,铰链在一块石墙上,它坐落在一个巨大的地下地板上,设想用来容纳居民的车辆。与外部景观的视觉联系、太阳的方向和自然通风的控制是影响设计方案的主要因素。
The new residential volumes are articulated linearly: light structures, hinged onto a stone wall which sits on a large, underground floor conceived to house the residents’ vehicles. A visual connection with the exterior landscape, the sun’s orientation and the control of natural ventilation are the main factors that informed the design solution.
© Alessandra Chemollo
3.Alessandra Chemollo
屋顶覆盖是为了控制自然光,并最大限度地发挥其光伏潜力。
The roof covering is shaped to control natural light and maximize its photovoltaic potential.
© Alessandra Chemollo
3.Alessandra Chemollo
在东南方,一个简单的体积包裹不规则落叶松木板完成了庭院:它拥有文化中心,致力于教育和欣赏周围的树木景观。它的玻璃墙引导游客注意室外风景和林中的小径网络。
On the southeast, a simple volume clad in irregular larch planks completes the courtyard: it holds the cultural center, dedicated to the education and appreciation of the surrounding wooded landscape. Its glass wall guides the visitors’ attention towards the outdoor scenery and a network of trails inside the woodland.
© Alessandra Chemollo
3.Alessandra Chemollo
从建设的角度来看,干预是以创新精神进行的,采用了轻型预制施工方法,使项目能够在有限的时间内完成。设计过程类似于工业产品,定义了由一群当地工业公司和工匠在场外建造的木材、钢和石头的各种建筑部件。这些组件是用构造连接器在现场组装的.
From a construction standpoint, the intervention was approached with an innovative spirit, using the development of light, prefabricated construction methods which allowed the project to be concluded in a limited time frame. The design process resembled that of an industrial product and defined various construction components in wood, steel and stone built off-site by a group of local industrial companies and artisans. The components were than assembled on-site using tectonic connectors.
© Alessandra Chemollo
3.Alessandra Chemollo
这些材料,由数控系统生产,是传统的,选择容易融入周围的环境。落叶松木材作为主要的建筑材料,由于其耐久性而被传统使用。在整个项目中,它可以找到胶合层合梁和柱的形式,内部和外部围护,在门窗框架和遮阳,作为地板和设计定制家具。
The materials, produced by numerical control systems, are traditional and chosen to easily blend into the surrounding environment. Larch wood, conventionally used for its durability, was chosen as the main construction material. Throughout the project it can be found in the form of glued laminated beams and columns, interior and exterior enclosures, in door and window framing and shading, as flooring and in the design of custom-made furniture.
© Alessandra Chemollo
3.Alessandra Chemollo
Architects traverso-vighy architetti
Location 36100 Vicenza, Province of Vicenza, Italy
Architect in Charge Giovanni Traverso, Paola Vighy
Area 2258.0 m2
Project Year 2017
Photographs Alessandra Chemollo
Category Refurbishment
Manufacturers Loading...
客服
消息
收藏
下载
最近











































