查看完整案例

收藏

下载
© Torben Eskerod
C.Torben Eskerod
架构师提供的文本描述。Storstr m监狱将是世界上最人道和最重新城市化的封闭监狱的场所,其建筑结构支持囚犯的身心健康,并确保雇员有一个安全和愉快的工作场所。
Text description provided by the architects. Storstrøm Prison will be the setting for the world's most humane and resocializing closed prison, with architecture which supports the inmates’ mental and physical well-being and also ensures a secure and pleasant workplace for employees.
© Torben Eskerod
C.Torben Eskerod
该项目的主要建筑挑战之一是高度安全的监狱,它可以容纳大约250名囚犯,以减少制度化。
One of the project’s major architectural challenges is for the high-security prison, which can accommodate around 250 inmates, to be less institutionalised.
© Torben Eskerod
C.Torben Eskerod
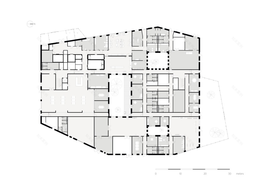
Standar Wing Ground Floor
标准翼底层
© Torben Eskerod
C.Torben Eskerod
总体建筑方法是创建一个规模相同、结构与街道和广场相同的建筑。这将确保对监狱环境有熟悉和多样的经验,并使监狱的体制气氛降至最低。这种类似城镇的结构也类似于周围的村庄,因此是景观的一个自然元素。
The overall architectural approach is to create a building on the same scale and with the same structure as, including streets and squares. This will ensure a familiar and varied experience of the prison environment and keep the prison’s institutional atmosphere to a minimum. The townlike structure also resembles the surrounding villages, and is thus a natural element of the landscape.
© Torben Eskerod
C.Torben Eskerod
为了创造进一步的变化,立面和屋顶脊是不同的角度,正面材料之间的浅色砖和混凝土和镀锌钢的组合-所有的耐久材料天气优美,不需要太多的维护。
To create further variation, facades and roof ridges are angular in different ways and the facade materials alternate between light-coloured bricks and a combination of concrete and galvanised steel – all durable materials which weather beautifully and do not need much maintenance.
© Torben Eskerod
C.Torben Eskerod
这些细胞聚集在由4到7个单元组成的单元中,放置在一个社会中心周围。这些单位可以进入起居室和共用厨房,囚犯在那里自己做饭。起居室的装饰颜色不那么制度化,就像在整个监狱里都可以找到专门为监狱创作的艺术和艺术品一样。
The cells are gathered in units comprising four to seven cells, placed around a social hub. The units have access to a living room area and a shared kitchen, where the inmates prepare their own meals. The living room areas are decorated in colours which are less institutional, just as structurally-integrated art and artworks created especially for the prison can be found throughout the prison.
© Torben Eskerod
C.Torben Eskerod
Cell Axonometric
细胞轴测
© Torben Eskerod
C.Torben Eskerod
日光对人们的幸福是很重要的,每个牢房都有从两个窗户进入的日光,从那里囚犯也可以看到周围的风景和天空。体育活动对囚犯的心理社会福利也很重要,无论是室内还是室外,都有运动、游戏和体育锻炼的机会。
Daylight is important for people’s well-being and each cell has daylight flowing in from two windows, from where the inmates also have views of the surrounding landscape and the sky. Physical activity is also important for the inmates’ mental social welfare, and both indoors and outdoors, there are opportunities for sport, games and physical exercise.
© Torben Eskerod
C.Torben Eskerod
Architects C.F. Møller
Location Blichersvej, Gundslev, Falster, Denmark
Area 32000.0 m2
Project Year 2017
Photographs Torben Eskerod
Category Security
Manufacturers Loading...
客服
消息
收藏
下载
最近











































