查看完整案例


收藏

下载

翻译
This townhouse was build in the early 2000s years in park area of Lviv, Ukraine.
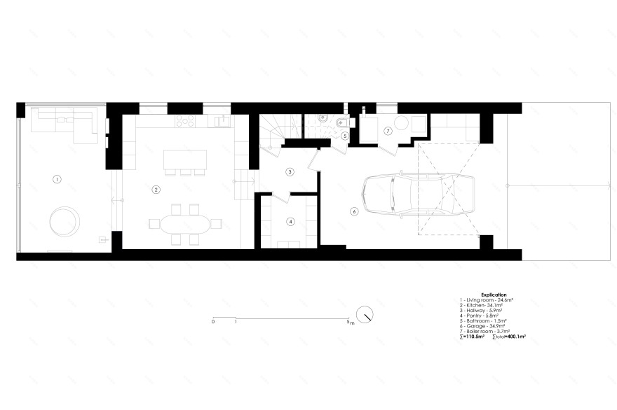
During the reconstruction, architects where faced up with complex situation of very long, narrow space with lighting only from the sides. They managed this apartment from three-storeу with basement to five storey, lowering ground level in technical floor and transforming it to the kitchen area, also using roof space for child room. Windows openings on first, second and fourth floor was expanded totally to open the view and to be closer to the park, using sliding window systems.
Attending to the spirit of a history, architects wanted to leave some items from the past, giving them a new look. The old-fashioned stairs were litteraly burnt almost to ashes and varnished. Ceiling in living room was kept untouched, to remind owners old design of their apartment.
This apartment is unique in appearance on each floor.
Using minimalism in decorating the walls, points attention to the small details and joints. Despite of a lot of dark colors all over the interior, the warm color of natural wood make this apartment very cozy.
The favorite architects place is open fireplace on the first floor. It’s size and scale creates charm and charismatic atmosphere in the living room.
The owner is a music lover, that’s why architects designed two metal sound speakers, placed it besides fireplace.
In the main bedroom bath was placed right in front of window glazing to look on nature wile using it.
客服
消息
收藏
下载
最近



















































