查看完整案例


收藏

下载

翻译
NUOVO POLO DIDATTICO DI SCIENZE DEL FARMACO DA ERIGERSI NEL POLO UNIVERSITARIO RACCHIUSO TRA VIA BASSI, VIA ASELLI, VIA TARAMELLI A PAVIA
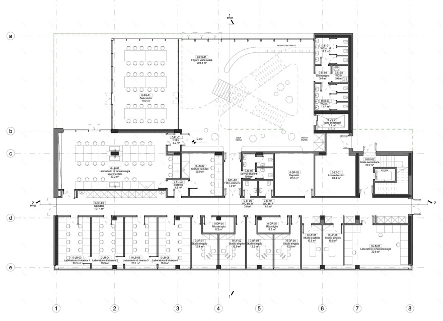
La ricerca progettuale per la definizione dell’intervento di realizzazione del nuovo Polo Didattico di Scienze del Farmaco ha condotto all’individuazione di un volume in grado di ricomporre e concludere la testata dell’intero impianto a “C”, nell’ottica del miglior inserimento nel contesto e del completamento morfologico dell’isolato. Pur nell’intento di ricostituire l’impianto planimetrico, il nuovo edificio presenta caratteri espressivi e dinamici che lo contraddistinguono.
L'opera si presenta come un edificio innovativo e contemporaneo composto da tre piani fuori terra con uno spazio a tutta altezza caratterizzato all’esterno da un’ampia vetrata sul fronte nord. Questo spazio, che ha la funzione di foyer con aree relax e ristoro, diventa area di collegamento verticale agli altri piani tramite una scala dall’andamento mutevole.
questo progetto è stato realizzato in collaborazione con lo studio S.B.ARCH. BARGONE ASSOCIATI
客服
消息
收藏
下载
最近





















