查看完整案例


收藏

下载

翻译
Dans la campagne romaine, sur 5000m2 de terrain, une maison individuelle de campagne pleine de charme a été construit sur une butte dominant les arbres centenaires du bois. En pleine verdure, au milieu d'un jardin arboré cette maison est édifiée sur trois niveaux. Aménagement des jardins et réaménagement d'intérieures, plus la décoration sur mesure. Création d'une petite SPA de charme dans la dépendance de service.
Les décors au naturel et art végétale.
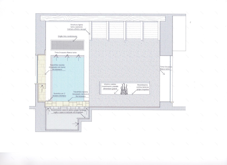
Ce bien offre calme, clarté et charme avec son coin de bien être (accessible à l'entrée par une porte vitrée) où se trouve une mini piscine avec hydro massage, plus un sauna, un bain a vapeur et un coin relax avec une grande cheminée.
Cette superbe maison de campagne, au rez-de-chaussée, offre un vestibule que dessert quatre divers salles. Dans sa partie principale le passage est ouverte à la grande pièce à vivre qui offre une triple réception avec coin TV, salon avec cheminée et un salon de thé prolongé par un espace dinatoire, donnant sur une partie de la cuisine partiellement ouverte - où les murs ont été abattus pour créer une grande cuisine-salle à manger - et dans l'autre partie, donnant de plein-pied sur la terrasse pavée face à la piscine et au jardin paysagé de 2.000m2.
Une restructuration radicale a intéresse l'ensemble de la grand Villa où, à l'entrée, une cloison a été abattue pour changer la position de l'escalier et pour faciliter la distribution et la circulation. Au final, son magnifique escalier est réalisé en bloc massif de travertin romain. L'accès à la salle home-cinéma - aussi avec cheminée - est assurée par une porte coulissante vitrée et, en fin, par l'escalier, au premier étage se trouve une grande salle que sert de palier (aussi avec cheminée).
L'entrée à la zone de nuit est par là avec ses 4 chambres à lit et ses cabines armoires, plus 4 salles de bains.
La conception de la réalisation du projet à la construction finale.
La sélection d’artisans talentueux (ébénistes, charpentiers, menuisiers, couvreurs ...) et le choix de mobilier. Décoration sur mesure haut de gamme. En collaboration avec l'Ing. Fortunato Bazzi et Domizia Castelli (décoratrice).
客服
消息
收藏
下载
最近

























