查看完整案例


收藏

下载

翻译
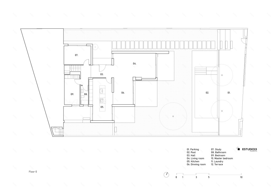
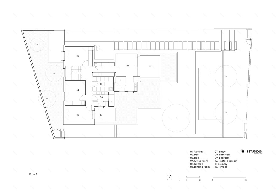
Casa Xaloc represents Mediterranean architecture, functional and integrated. It is situated on the plot generating different porches in which it creates an intermediate space between the interior and the exterior. The project enhances these spaces where a large part of Mediterranean life takes place and where the relationship with the exterior happens: a house that faces the sun and lets in the sea breeze, the xaloc (south-east wind). The materiality pursues timelessness while at the same time blending into the surroundings. The limestone forms the base on which the upper volumes are placed, producing the shade of the porches. The programme is divided in the same way: a ground floor that lives off its outdoor space and an upper floor that enjoys the pine forest.
客服
消息
收藏
下载
最近















