查看完整案例


收藏

下载

翻译
Linhas retas, blocos suspensos por pilotis e marquises de concreto armado são os elementos que compõem a residência, marcada pelo estilo contemporâneo com influência do modernismo brasileiro.
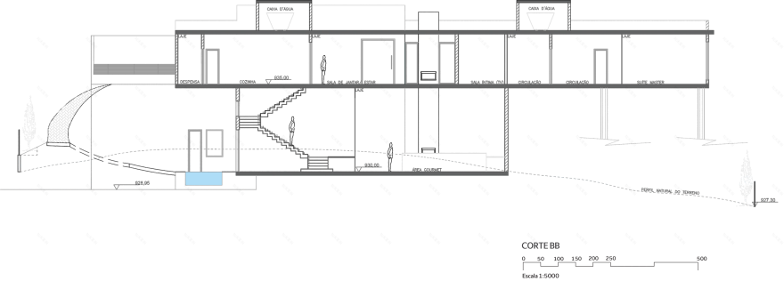
O terreno possui declive acentuado de 30º, voltado para a face Sul. Optou-se por projetar os quartos na lateral, para serem iluminado logo pela manhã.
No briefing, os clientes solicitaram que todos os ambientes utilizados no dia a dia ficassem concentrados em um único pavimento. Assim, o piso inferior foi destinado exclusivamente à área de lazer, com espaço gourmet, bar, spa, sauna e piscina.
Para os acabamentos externos foram utilizados concreto armado e a pedra Hitam, já no spa e na prainha ganharam pedras naturais.
客服
消息
收藏
下载
最近





















