查看完整案例

收藏

下载
© Andrea Martiradonna
(Andrea Martiradonna)
架构师提供的文本描述。该项目以社会住房研究所根据住宅扩建详细计划公开宣布的竞争开始。这是市政当局必须面对社会住房需求的一种工具,在周边环境中可以清楚地认识到这种良好的居住模式。
Text description provided by the architects. The project starts with a competition publicly announced by the Social Housing Institute based on a Detailed Plan for the residential expansion. This is a tool the municipal administration has to face the need of social housing with an excellent settlement pattern clearly recognizable in the peripheral context.
© Andrea Martiradonna
(Andrea Martiradonna)
该计划提供了街区,即“城堡”,由3-4个建筑物组成,坐落在一个开放的树木林立的庭院周围。
The plan provides the creation of blocks, the “castles”, made of 3-4 buildings located around an open tree lined court.
© Andrea Martiradonna
(Andrea Martiradonna)
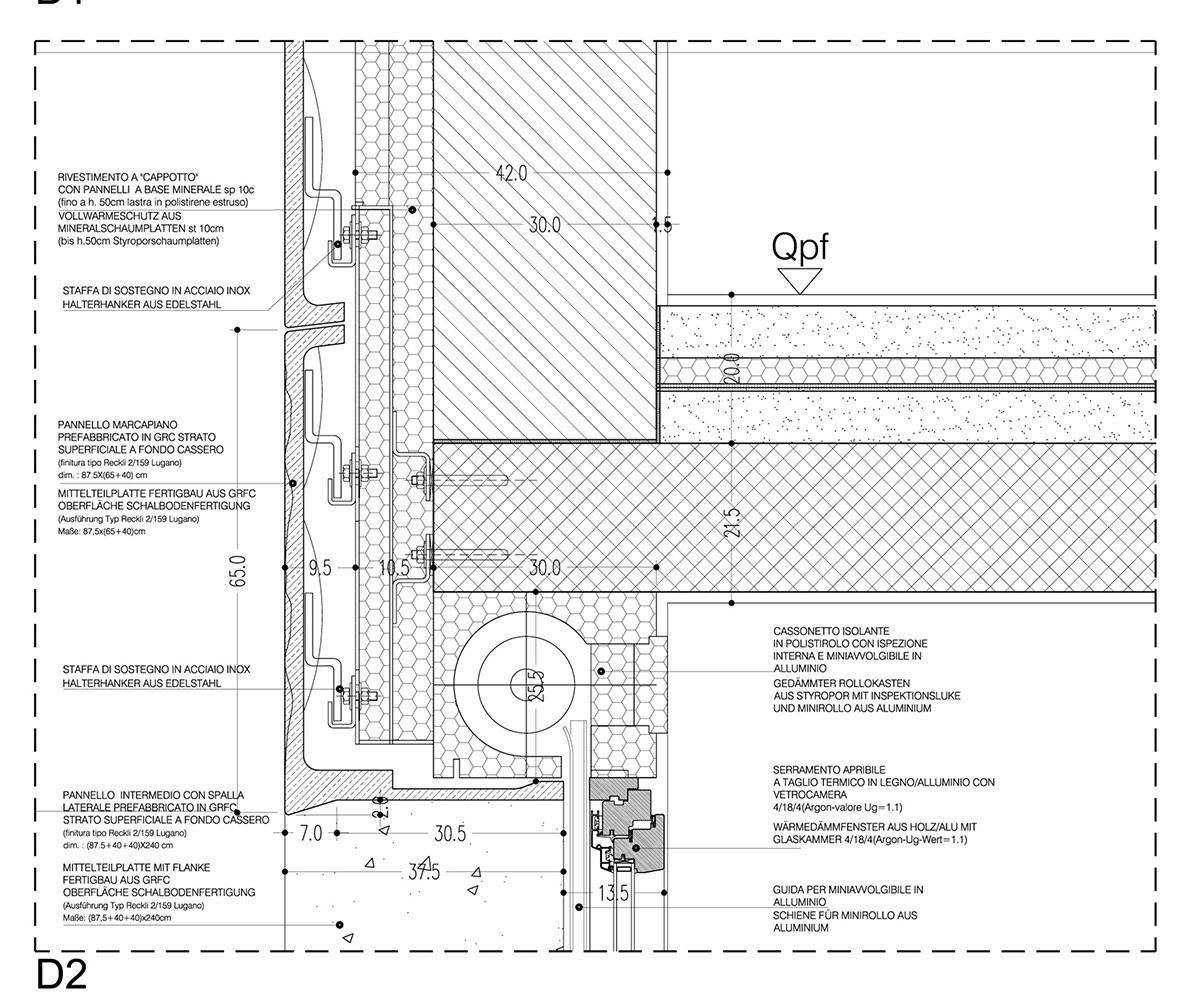
在众多的规划限制下,建筑强调地块的统一性,采用了街区的概念,并为前面找出了一种单一的建筑结构。为了能够把整个建筑看作一个统一的建筑元素,已经创建了一个覆盖通信的单一计划-被认为是第五视图。该建筑,在能源级卡萨库拉A,是覆盖了GRC的面板。
Following the numerous Plan restrictions, the building emphasizes the unity of the plot by working on the concept of block and by identifying a single kind of construction for the front. In order to be able to see the whole structure as a uniform architectural element, a single plan of covering correspondence – considered as fifth view - has been created. The building, in energy class CasaClima A, is covered with panels of GRC.
Architects cdm architetti associati
Location Via Nicolò Rasmo, 55, 39100 Bolzano BZ, Italy
Category Social Housing
Architect in Charge Edoardo Cappuccio, Giuseppe Donato, Tomaso Macchi Cassia
Area 20300.0 sqm
Project Year 2012
Photographs Andrea Martiradonna
客服
消息
收藏
下载
最近























