查看完整案例


收藏

下载
室内设计师薇拉拉各达,琳达萨尔兹曼制造商装货.
Interior Designer Willa Lagoyda, Linda Salzmann Manufacturers Loading...
© Liam Frederick
(C)利亚姆·弗雷德里克
架构师提供的文本描述。这个全新的校园旨在为成长中的中亚利桑那学院创造一个独特而真实的身份,提升其在高等教育市场上的品牌,同时创造一个高度可持续的原型。三座建筑和一座中央工厂计划在未来20年内大幅增长,这是一个初步阶段,将为今后的发展创造一个校园设计语言。
Text description provided by the architects. This new ground up campus aims to create a unique and authentic identity for the growing Central Arizona College and to elevate its brand in the higher education marketplace while creating a highly sustainable prototype. Masterplanned for significant growth in the next twenty years, three buildings and a central plant represent an initial phase that will create a campus design language for future development to follow.
这三座建筑的校园在概念上植根于其历史的农业根源和美洲原住民的遗产。结构被认为是一系列诚实的、多余的、没有维护的“学术机构”。深深的悬垂让室内的学术空间无缝地在户外流动。Corten钢和夯土创造了主要的外部语言,消除了长期维护的需要。未涂漆的结构钢和镀锌的声学甲板创造了主要的内部体积,而连续的北面对着牧师的玻璃采光,再加上许多大型的“日光铲车”。
The three building campus is conceptually rooted in its historic agricultural roots and Native American legacy. Structures are conceived as a series of honest, spare and no maintenance ‘academic sheds.’ Deep overhangs let interior academic spaces flow outdoors seamlessly. Corten steel and rammed earth create the primary exterior language eliminating the need for long term maintenance. Unpainted structural steel and galvanized acoustical decking create the main interior volumes, while continuous north facing clerestory glazing harvests daylight, coupled with numerous large ‘daylight scoops.’
© Liam Frederick
(C)利亚姆·弗雷德里克
主要校园入口作为社区的灯塔,促进教育和以社区为基础的活动。一种新的校园语言是从其独特的沙漠环境中诞生的,是未来校园的典范。大型磨砂玻璃遮阳鳍的设计是为了在夏至时完全保护建筑的围护结构,同时允许图书馆和社区房间看到远处的山脉。图书馆和社区室以两个标志性的沙漠校园入口作为校园入口的框架,向社区伸出援手,象征性地邀请社区进入。
The main campus entry acts as a beacon for the community, promoting education and community based activities. A new campus language is born out of its unique desert context, a model for the campus of the future. Large frosted glass shade fins are designed to completely protect the building envelope at the summer solstice, while allowing views to the mountains beyond for both the library and the community room. Reaching out to the community and gesturally inviting the community in, the library and community rooms frame the campus entry with two iconic desert campus portals.
© Liam Frederick
(C)利亚姆·弗雷德里克
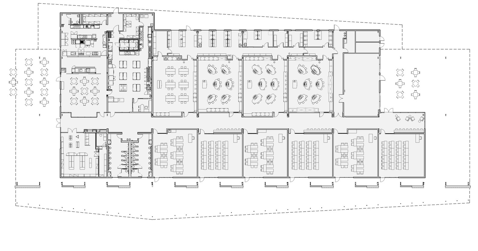
每一栋建筑都从战略上背对着沙漠南部的严酷阳光,同时利用北半球的日光,在南部建造了一个连在一起的连续阴影拱廊,把校园的教室连到了一起。滚动谷仓门和最小的墙壁隔墙组织内部体积,计划是模块化的,并易于移动时,扩展和翻新在未来发生。
Each building strategically turns its back to the harsh desert southern sun, while harvesting northern daylight and creating a continuous shaded arcade on the south that connects the campus’ classrooms end to end. Rolling barn doors and minimal wall partitions organize interior volumes that are planned to be modular and easily removable when expansion and renovation occur in the future.
© Bill Timmerman
(比尔·蒂默尔曼
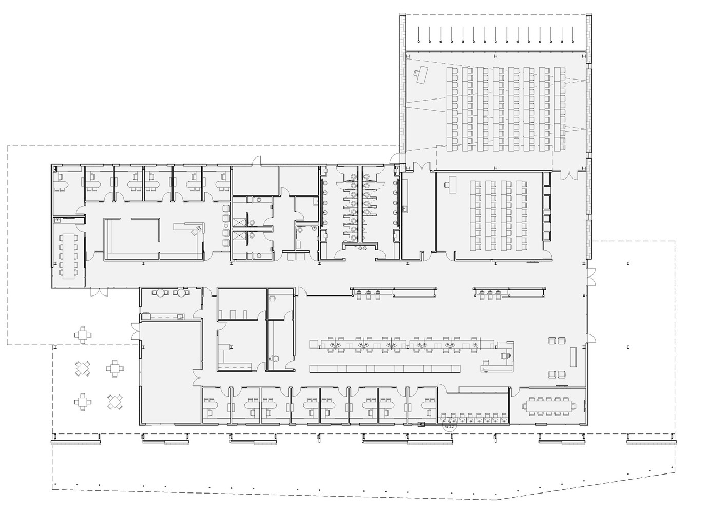
四个大电铲在教学楼的主学生走廊上铺满了阳光,也帮助了“乡村寻路”,因为这座只有一层楼的校园仍在“荒无人烟”。
Four large light scoops flood the main student corridor with daylight in the instructional building, also aiding in ‘rural way finding’ for the one story campus that is still ‘out in the middle of nowhere.’
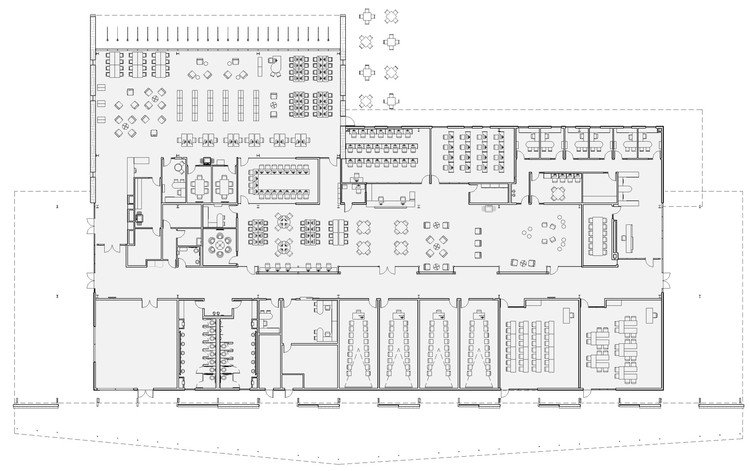
Floor Plan
客服
消息
收藏
下载
最近



































