查看完整案例

收藏

下载
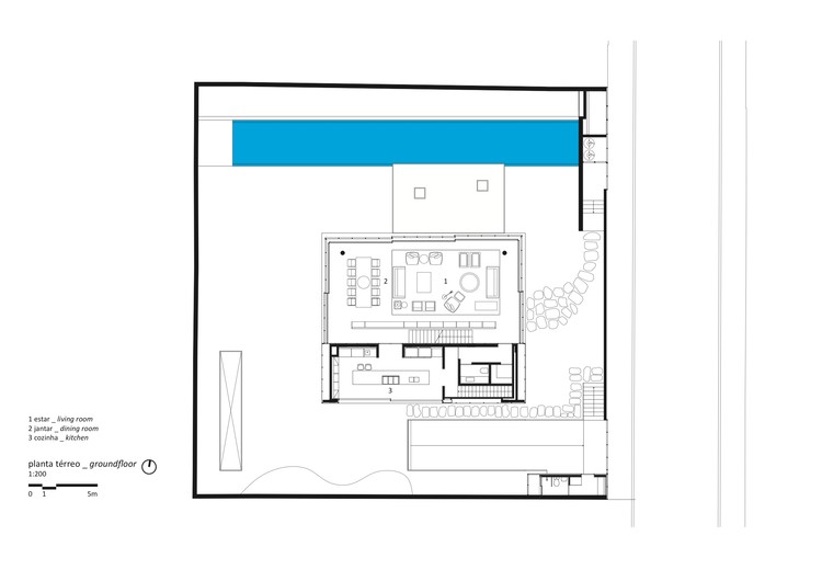
架构师提供的文本描述。房屋规划被归纳在三个不同的环境中,它们被安排在三个不同的层里,解决了一个斜坡为20%的场地上的项目沉降问题,同样的地形也促进了路径的抒情和空间之间的顺序:与下花园直接接触,在街道上建立起家庭互动的区域,在花园上方4.5米的悬臂处,所有的公共区域都位于,较高的层次是保留给休息和隐私的区域。
每一层都有其特定的梯田,具有响应更高层次扩展空间的节目性质的特点。
Every level owns its specific terrace, with the characteristics that responds to the nature of the program which expands the room with the higher hierarchy.
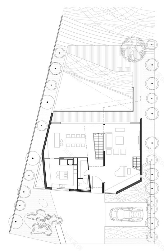
Underground Plan
地下规划
该地块是一个向西延伸的街区角,向南向北倾斜,体积发展方向相同,这使得人们可以欣赏到山脉、城市、邻近公园和令人印象深刻的日落景色。
The plot, being a block corner open to the west, slopes south-north, same direction the volume develops, this allows to afford the views to the mountains, city, neighboring park and an impressive sunset.
Courtesy of Dear Architects
尊敬的建筑师
可移动的铁制品在改变外观的同时,引起与房屋的物理交互,并构成事件,同时控制太阳的入射,在一年内造成不同的影响,并突出在现场制作的混凝土和彩色玻璃水磨石上。
The movable ironwork causes a physical interaction with the house and compose an event while changing how the facade is perceived, along with controlling the solar incidence, causing different effects during the year and projecting over the onsite made concrete and colored glass terrazzo.
Courtesy of Dear Architects
尊敬的建筑师
周围的山在远处的存在,鼓励了一套室内空间,使人们认识到地方的本质,具体的观点,揭示了一小部分山,一种固定地平线,并把它介绍给房子。
The presence of the mountains surrounding the site at distance encourages a set of indoor spaces that allow the recognition of the essence of place, specific views that reveals a fraction of the mountain, a way of fixing the horizon and introduce it in to the house.
Courtesy of Dear Architects
尊敬的建筑师
First Floor Plan
一层平面图
客服
消息
收藏
下载
最近


































