查看完整案例


收藏

下载
设计建筑师 Eva Wolf
CAD-协调员 Ronny B ser,Benjamin Schmidt
Project Team Markus Baumann, Wendy Fok, Robin Heather, Ivana Jug, Ariane Max, Anja Sorger, Bo Stjerne Thomsen, Anna Wasserthal, Philip Wilck Blaine Lepp, Talya Kozminsky, Hannes Walzl, Morten Grau Jensen, Stephanie Neufeld, Taylor Bornstein, Laura Githa, Julia G rtner, Jenny Xlbauer
3D visual alisierung Armin Hess/chrom,维也纳;中国北京SilkRoad;Jens Mehlan,J rg Hugo
地方性建筑师 Friis & Moltke, Aalborg, Denmark
Acoustics, Audio-Visual & Theatre Design and Planning Consultant Arup, New York, USA
Landscape Architect Jeppe Aagaard Andersen, Helsingør, Denmark
Structural Engineering Rambøll, Aalborg, Denmark; B+G Ingenieure, Bollinger und Grohmann GmbH, Frankfurt, Germany
Mechanical, Electrical and Fire Engineering Nirás, Aalborg, Denmark
Cost consultant Davis Langdon LLP, London, UK
Lighting Design Consultant Har Hollands, Eindhoven, The Netherlands
Interior Design Consultant Eichinger Offices, Vienna, Austria
Manufacturers Loading... More Specs Less Specs
© Martin Schubert
马丁·舒伯特
经过四年的建设,丹麦 Aalborg 的“音乐之家”于 2014 年 3 月 29 日由丹麦女王玛格丽特二世隆重开幕。
After four years of construction, the "House of Music" in Aalborg, Denmark was ceremoniously opened on March 29, 2014 by the Danish Queen Margrethe II. © Rene Jeppesen
雷内·杰普森
这个文化中心是由维也纳建筑工作室 Coop Hemmelb(L)au 设计的,是一个学校和音乐厅的结合:它的开放结构促进了观众和艺术家以及学生和教师之间的交流。
“建筑背后的想法已经可以从外部的形状来解读。学校包括音乐厅,”Coop Hemmelb(L)au 的设计负责人兼首席执行官沃尔夫·D·普里克斯 (Wolf D.Prix) 解释道。
This cultural centre was designed by the Viennese architectural studio Coop Himmelb(l)au as a combined school and concert hall: its open structure promotes the exchange between the audience and artists, and the students and teachers. "The idea behind the building can already be read from the outer shape. The school embraces the concert hall," explained Wolf D. Prix, design principal and CEO of Coop Himmelb(l)au.
Organization Section
组织科
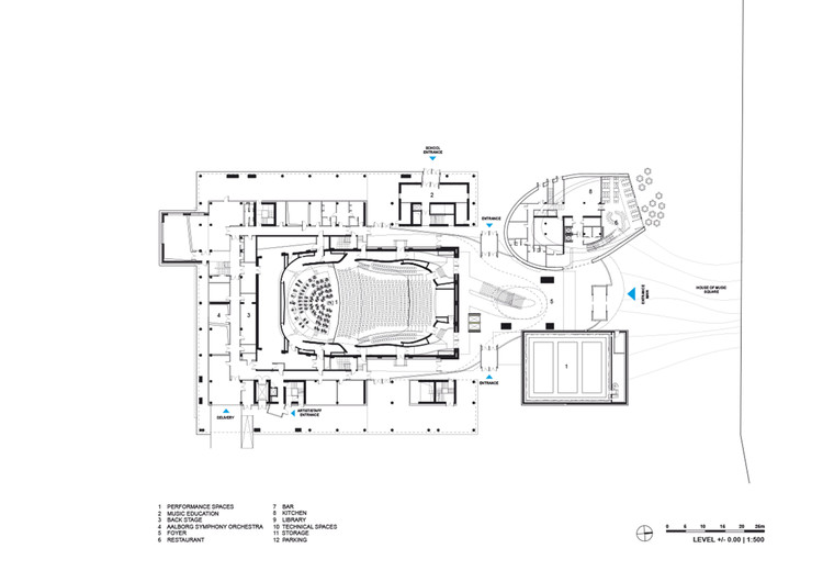
U 形彩排和训练室被布置在乐团的核心,一个可容纳约 1300 名观众的音乐厅。一个宽敞的门厅将这些空间连接起来,在相邻的文化空间和峡湾上有一个多层的窗口区域。在门厅下面,还有三间大小不一的房间来补充空间:亲密厅、节奏厅和古典厅。通过多个观察窗口,学生和参观者可以从大厅和练习室看到音乐厅,体验音乐活动,包括音乐会和彩排。
U-shaped rehearsal and training rooms are arranged around the core of the ensemble, a concert hall for about 1,300 visitors. A generous foyer connects these spaces and opens out with a multi-storey window area onto an adjacent cultural space and a fjord. Under the foyer, three more rooms of various sizes complement the space: the intimate hall, the rhythmic hall, and the classic hall. Through multiple observation windows, students and visitors can look into the concert hall from the foyer and the practice rooms and experience the musical events, including concerts and rehearsals.
演奏厅
The concert hall
Courtesy of COOP HIMMELB(L)AU
希梅尔布 (L) 非洲联盟提供的服务
观众席内的流动形状和曲线与严格的立方体外形形成鲜明对比。管弦乐队的座位和弯曲的阳台的布置方式,提供了最好的音响和舞台的看法。这个高度复杂的声学概念是与 Arup 的中岛太子 (TateoNakajima) 合作开发的。根据声学专家的精确计算,墙壁上无定形的石膏结构和可调高度的吊顶结构的设计确保了最佳的听力体验。
The flowing shapes and curves of the auditorium inside stand in contrast to the strict, cubic outer shape. The seats in the orchestra and curved balconies are arranged in such a way that offers the best possible acoustics and views of the stage. The highly complex acoustic concept was developed in collaboration with Tateo Nakajima at Arup. The design of the amorphous plaster structures on the walls and the height-adjustable ceiling suspensions, based on the exact calculations of the specialist in acoustics, ensures for the optimal listening experience.
Concert Hall Section
音乐厅组
音乐厅将是欧洲最安静的交响音乐空间之一,噪音降低了 NR 10(GK 10)。由于其建筑和音质,音乐厅已经客满:4 月份将有由小提琴独奏家 Arabella Steinbach 和丹麦国家广播乐团与女高音 Mojca Erdmann 组成的皇家爱乐乐团的音乐会。
The concert hall will be one of the quietest spaces for symphonic music in Europe, with a noise-level reduction of NR10 (GK10). Thanks to its architectural and acoustic quality, the concert hall is already well-booked: there will be concerts featuring the Royal Philharmonic Orchestra with violin soloist Arabella Steinbacher and the Danish National Radio Orchestra with soprano Mojca Erdmann in April. © Martin Schubert
马丁·舒伯特
门厅是学生、艺术家、教师和访客的聚会场所。五层楼高,有楼梯、观景阳台和大窗户,可以看到峡湾,这是一个活泼、动态的空间,可以用于各种各样的活动。
The foyer serves as a meeting place for students, artists, teachers, and visitors. Five stories high with stairs, observation balconies, and large windows with views of the fjord, it is a lively, dynamic space that can be used for a wide variety of activities.
© Martin Schubert
马丁·舒伯特
对沃尔夫·D·普里克斯 (Wolf D.Prix) 来说,“音乐之家”象征着音乐与建筑之间的统一:“音乐是一种直接在人们心中触动和弦的艺术。与乐器的身体一样,这种建筑也是音乐之家创造力的共鸣体。”
For Wolf D. Prix, the "House of Music" is a symbol of the unity between music and architecture: "Music is the art of striking a chord in people directly. Like the body of musical instruments this architecture serves as a resonance body for the creativity in the House of Music."
能量概念
The energy concept
Creativity Art Music Diagram
创意艺术音乐曲线图
门厅不使用风扇,而是在大的垂直空间内使用自然热浮力进行通风。混凝土楼板中的充水低碳管用于夏季降温和冬季取暖。音乐厅周围的混凝土墙作为额外的热能储存能力。峡湾也用于免费冷却。
Instead of fans, the foyer uses the natural thermal buoyancy in the large vertical space for ventilation. Water-filled hypocaust pipes in the concrete floor slab are used for cooling in summer and heating in winter. The concrete walls around the concert hall act as an additional storage capacity for thermal energy. The fjord is also used for cost-free cooling.
© Martin Schubert
马丁·舒伯特
管道和空气通风口配备了高效的旋转换热器。非常有效的通风系统,低空气速度是连接在座位下的音乐厅。
The piping and air vents are equipped with highly efficient rotating heat exchangers.
Very efficient ventilation systems with low air velocities are attached under the seats in the concert hall.
空气是从照明系统上方的天花板格栅中抽出来的,因此产生的任何热量都不会导致室内温度升高。
Air is extracted through a ceiling grid above the lighting system so that any heat produced does not cause a rise in the temperature in the room.
Level 00 Plan
00 级计划
该建筑物配备了一个建筑物管理程序,该程序控制建筑物中的设备,并确保在不需要时没有任何系统处于活动状态。这样,能源消耗就最小化了。
The building is equipped with a building management program that controls the equipment in the building and ensures that no system is active when there is no need for it. In this way, energy consumption is minimized.
Architects Coop Himmelb(l)au
Location Musikkens Plads, 9000 Aalborg, Denmark
Category Cultural Center
Design Principal/ CEO Wolf D. Prix
Project Partner Michael Volk
Design Architect Luzie Giencke
Project Architect Marcelo Bernardi, Pete Rose
Area 20257.0 m2Project Year 2014
Photographs Martin Schubert , Rene Jeppesen, Aleksandra Pawloff
客服
消息
收藏
下载
最近






























