查看完整案例


收藏

下载

翻译
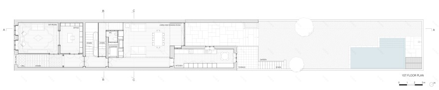
The original project was built as a part of an urban intervention in the city of Porto, the opening of a new street - Rua Álvares Cabral - during the 19th century. The building was designed to be part of an essemble, which was meant to be uniform and austere, something evident in its main facade.
With that in mind our intervention strived to respect not only the structure and geometry of the original builiding, but also of the whole essemble. The rehabilitation focused on restoring the original ceilings, windows and doors, with few alterations, such as the addition of a skylight in the stairwell, a pool in the garden and the restructuring of the interior spaces as to make them fit for a home of the 21st century.
Our main focus was to bring a cohesive and non-invasive project that would bring the building a greater efficiency and comfort. This way the materials chosen look to compliment the original features of the building, respecting its past and bringing it to life.
客服
消息
收藏
下载
最近



































