查看完整案例


收藏

下载

翻译
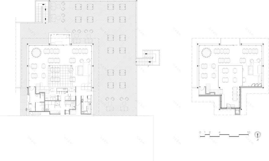
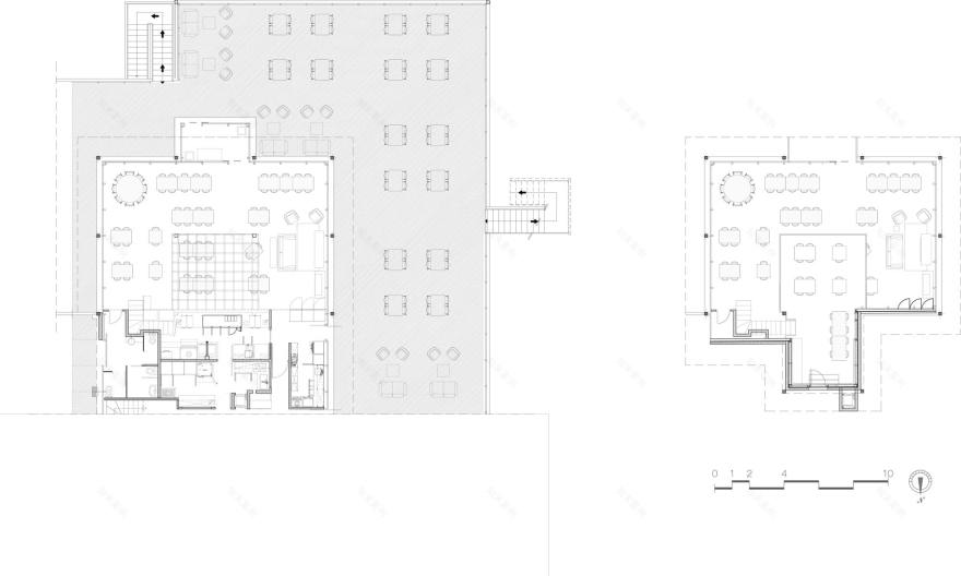
Basado en tres ejes principales: El colmado, maridaje de vinos, y encurtidos, Josper Área, cocina vista con brasa y Wine bar, Representado en xapa de hierro negra que todo lo envuelve, formando estructuras, techos, escalera, vinacoteca..
Ensisa-Grandvalira y Rosa Colet, dan forma al local Jean Leon de Torres.
La pizarra negra de media luna de las casas Andorranas sirve de recurso para crear el frontal de la barra y los forros traseros.
La cuadricula del techo, en hierro negro, enmarcan un conjunto de espejos, duplicando y ampliando la parte baja del altillo. Creando un juego de reflejos. Justo en la zona central del local.
客服
消息
收藏
下载
最近











