查看完整案例

收藏

下载

翻译
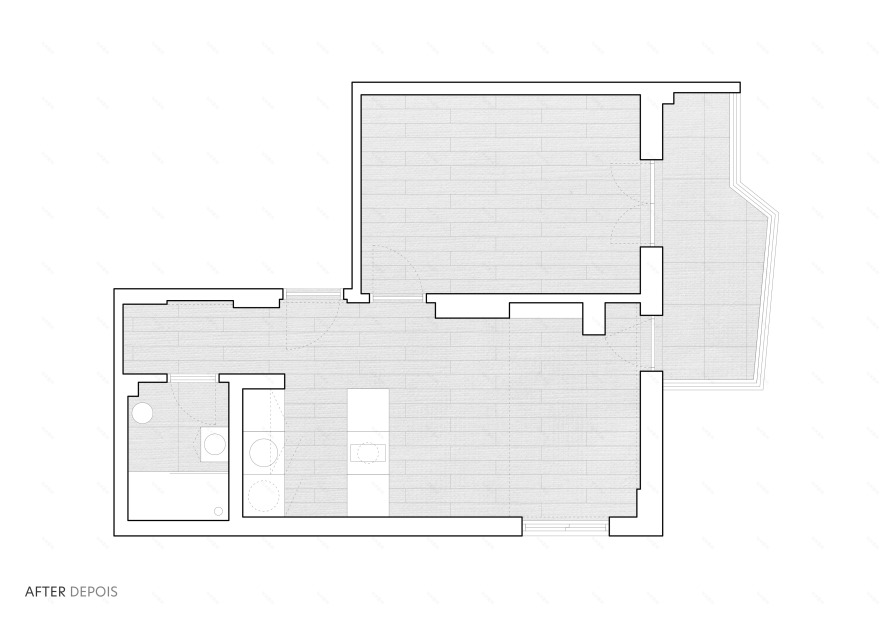
The apartment had serious habitability problems at the time of the intervention - not only it needed maintenance and conservation works in all spaces but also complete rethinking of the kitchen area that was unchanged since the original construction, dating back to the 70’s.
While working on a very tight budget, it was defined as a project principle to organize the apartment around a kitchen island and, deliberately, avoid using the white color in order to create an atmosphere that resembled a modernist interior.
We settled on a color theme where the dark gray of the kitchen and various appliques contrasted with the beige and brown of the walls and floors. The creation of this atmosphere was fine-tuned throughout the construction process, where all the materials used in the project were carefully considered.
With this intervention we built a space that promotes a minimalist and practical lifestyle, without giving up comfort and the possibility of adapting to the circumstances of life and the passage of time.
客服
消息
收藏
下载
最近




















