查看完整案例

收藏

下载
© Anne Sophie Maestracci
安妮·索菲·马埃斯特拉奇
架构师提供的文本描述。Suan Kachamudee项目是一个独特而舒适的“精品”度假胜地,位于泰国Chaweng Noi的苏梅岛东海岸。
Text description provided by the architects. Suan Kachamudee project is an unique and cosy “boutique” resort located on the East Coast of Koh Samui Island in Chaweng Noi, Thailand.
该项目位于一座山丘上,有着令人叹为观止的景观和非常强大的约束条件:一个超过50%的斜坡,巨大和众多的花岗岩岩石,以及茂盛的植被。我们围绕这些约束开发了这个项目,并利用了每个约束条件。
The project is located on a hill with a breath-taking view and with very strong constraints: a slope over 50%, large and numerous granite rocks, and lush vegetation. We developed the project around these constraints, taking advantage of each.
© Anne Sophie Maestracci
安妮·索菲·马埃斯特拉奇
主要的想法是在建筑物和岩石之间形成对比。这些建筑是不规则的,锐利的白色砌块,坐落在富丽堂皇的景观上,与现有的块状圆形黑色花岗岩石形成鲜明对比。
The main idea was to create a contrast between the buildings and the rocks. The buildings are irregular sharp white blocks lay on the luxuriant landscape in contrast with the existing massive round black granite stones.
这些白色块体被分成不同的单元,分布在场地的斜坡很长的地方,将密度感知降到最低,并调整它们的位置以适应现有的花岗岩岩石,以及保护现有的植被。此外,白色外壳的设计并不是一个简单的形状游戏。它们是在热带气候下对太阳保护进行仔细研究的外壳。
These white blocks are split in various units, distributed a long the slope of the site, minimizing the density perception, and adjusting their location to the existing granite rocks, as well to preserve the existing vegetation. Besides, the design of the white shell is not a simple game of shape. They are a shell that has been studied carefully in regards to the solar protection under tropical climate.
© Anne Sophie Maestracci
安妮·索菲·马埃斯特拉奇
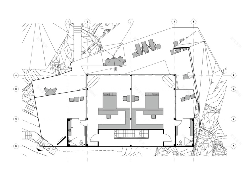
客人到达接待/SPA大楼,提供了令人惊叹的海景。这条路把客人带到主楼,游泳池位于地心。卧室单元有自己的私人露台,分布在主建筑周围。
The guests arrive to the Reception / SPA building that provide an amazing view to the sea. The path leads the guest to the Main building with the swimming pool located in the core of the land. The bedroom units with their own private terraces are spread around the main building.
© Anne Sophie Maestracci
安妮·索菲·马埃斯特拉奇
总体来说,该项目由8个卧室组成,分成5个街区,一个SPA,一个主建筑,一个大型游泳池和一个完整的生活区。该度假村在2500平方米的土地上开发了1000平方米的建筑。
Overall, the project is composed of 8 bedrooms split in 5 blocks, a SPA, a Main Building with a large swimming pool and a complete living area. The resort develops 1,000 sqm construction on a 2,500 sqm site.
© Anne Sophie Maestracci
安妮·索菲·马埃斯特拉奇
建筑师“西西特”
The Architects “Sicart & Smith Architects” a French International Design Studio based in Vietnam (Ho Chi Minh City) has developed the architecture of the project (not including the interior design) and the Project Manager “9PM” has taking care of the overall construction process with local contractor. The design has been initiated in 2013 and the project has been completed in early 2015.
© Anne Sophie Maestracci
安妮·索菲·马埃斯特拉奇
Architects Sicart & Smith Architects
Location Ko Samui, Thailand
Category Hotels
Area 1000.0 sqm
Project Year 2015
Photographs Anne Sophie Maestracci
客服
消息
收藏
下载
最近

























