查看完整案例


收藏

下载

翻译
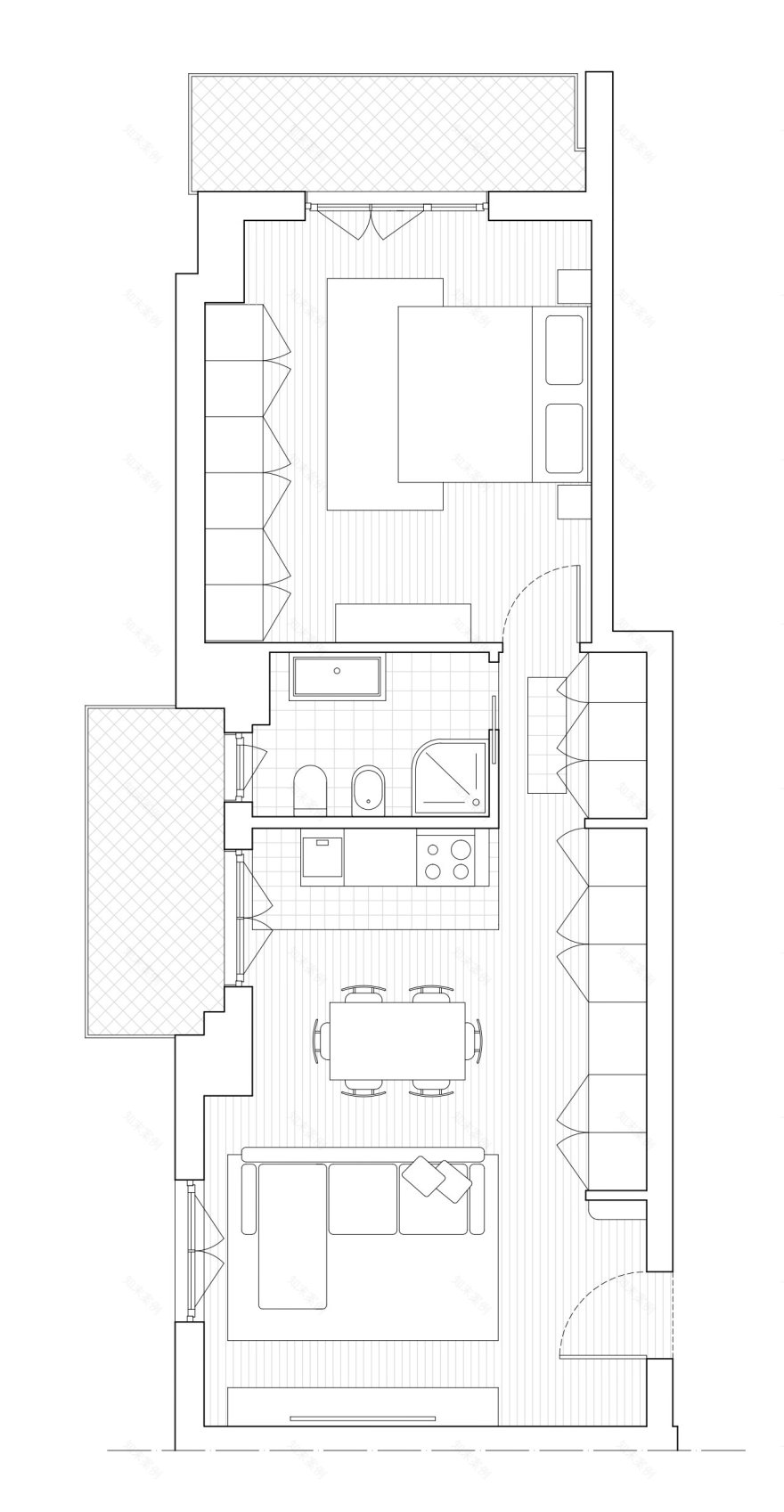
Un piccolo appartamento dove ogni spazio è sapientemente studiato per essere funzionale, armonioso e dinamico. L’open space è caratterizzato da una lunga parete attrezzata color grigio-antracite, all’interno della quale trovano posto tutte le funzioni della casa. L’intera parete è contraddistinta da un esclusivo tratto giallo che divide metaforicamente il living dalla zona notte.
Residenza privata | Salerno
客服
消息
收藏
下载
最近





























