查看完整案例


收藏

下载

翻译
Type: Housing
Land Area: 90 m2
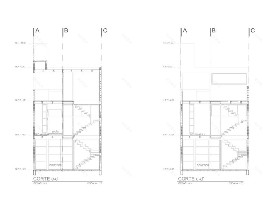
Construction area
Ground Floor = 66.37 m2
Upper floor = 72.05 m2
Roof Garden Terrace = 12.58 m2
Total = 151.00 m2
Architectonic program:
- Low level; Garage Sanitary Service Patio Kitchen Living room (double height) Dining room Yard
-Top floor; Study Full bathroom Bedroom 01 Bedroom 02 Master bedroom with bathroom
-Roof Floor; Terrace (recreational area)
The project was developed thinking of the needs of a conventional family of 4 to 5 members, since this house is going to be built for the purpose of sale or rent, that is why it has a basic architectural program so that the inhabitants can develop the activities of a house room with convenience and comfort. On the ground floor, the distribution between the spaces was made separating the service activities and the eating and living areas, for this it was considered as a service area (Garage-Service patio-Kitchen-Bathroom) and as a recreational area (Living-Dining room -Garden), these two areas are well divided so that the different activities carried out in each of them do not interfere with each other. Upstairs The master bedroom with an integrated full bathroom, has maximum privacy between the other bedrooms, divided by a corridor and the study, bedrooms 01 and 02 share the toilet. The architectural concept was developed taking two particular styles from two different disciplines, In the discipline of Architecture, some of the precepts of Modern architecture by the Architect Le Corbusier were taken as a basis and And in the discipline of Art Pop-Art was considered or Pop art as inspiration, from which its colors and somewhat strident forms were taken mainly as for example the diagonal frame of the facade. In this way, a design was obtained that brings together the architectural comfort of modern architecture, with a pop aesthetic, which at the same time fuses these two styles.
客服
消息
收藏
下载
最近





























































































































