查看完整案例

收藏

下载
© Douglas Mark Black
道格拉斯·马克·布莱克
架构师提供的文本描述。坐落在一片现有的空地内,一段残存的马利/扎拉灌木丛,这个业主建造的灌木亭试图提炼成建筑形式,在简单的帐篷下露营的感觉。
Text description provided by the architects. Located in an existing clearing within a section of remnant marri / jarrah bushland, this owner-built bush pavilion seeks to distil into built form, the feelings of camping under a simple sheltering tarpaulin.
© Douglas Mark Black
道格拉斯·马克·布莱克
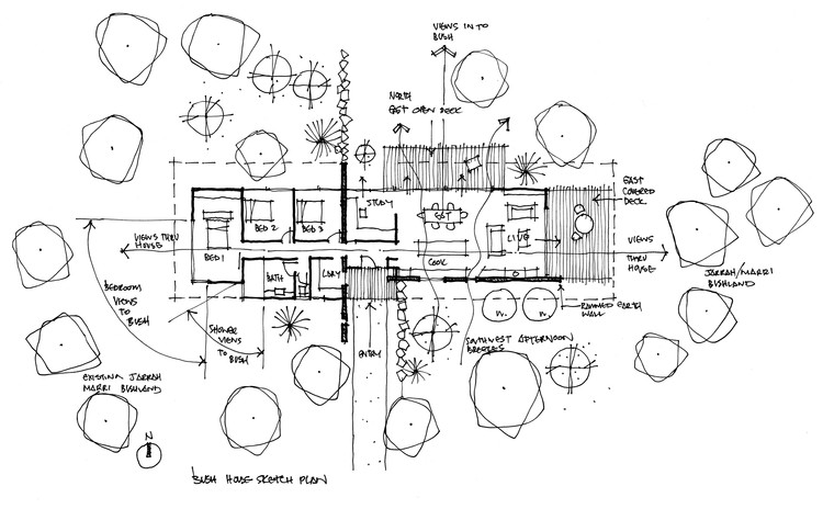
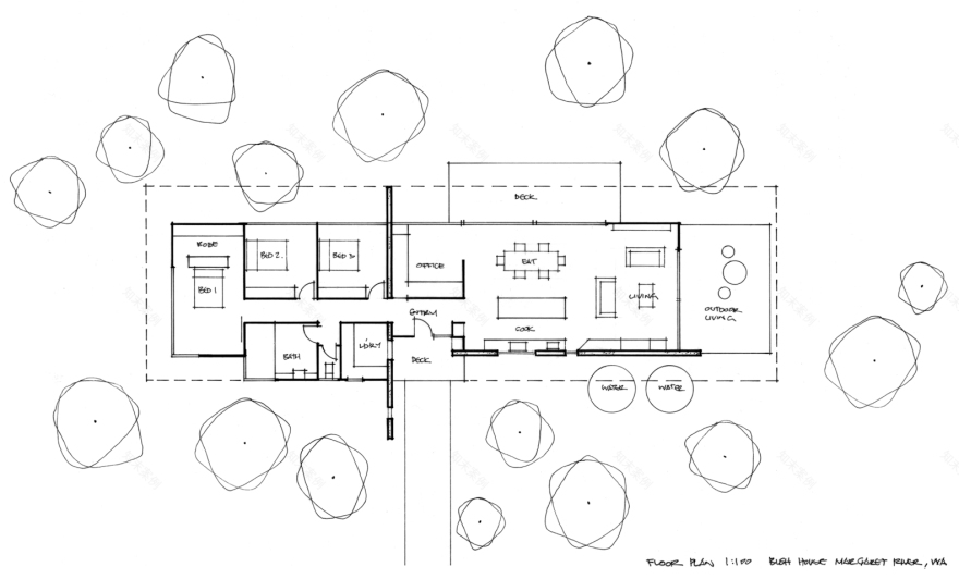
从图上看,这些房屋的简单长方形平面图被东西分开,分为睡眠区和生活区,并由一层楼高的变化和一堵厚厚的夯实的土墙勾勒出,这些墙一直贯穿着房子的室外。夯土墙也定义了从独立车辆停放区进入的入口。
Diagrammatically, the houses’ simple rectangular plan is separated east-west into sleeping and living zones and delineated by a change in floor level and a thick rammed earth wall that continues through the house into the outdoors. The rammed earth wall also defines the entry approach from the detached vehicle Parking area.
Croquis Floor Plan
番红花楼面平面图
所有房间都朝北,以利用冬日的温暖,除了主卧室,它面向西南的景色,享受壮观的日落,透过周围树冠的垂直树干过滤。
All rooms face to the north to take advantage of the warming winter sun, except the main bedroom which turns to face the southwest views and enjoys spectacular sunsets filtered through the vertical trunks of the surrounding tree canopy.
© Douglas Mark Black
道格拉斯·马克·布莱克
单人浴室与主卧室的方向相同,通过玻璃门打开灌木丛,给人在室外洗澡的体验。
The single bathroom enjoys the same orientation as the main bedroom and opens onto the bush via a glass door to give the experience of showering outside.
© Douglas Mark Black
道格拉斯·马克·布莱克
两个有甲板的区域提供了体验户外的另一种方式-- 一个冬季阳光明媚的头顶,一个仰望北方的星星,以及一个东边有盖的甲板,以防雨和防晒。
Two decked areas provide alternative ways to experience the outdoors – one open overhead for winter sun and star gazing to the north and a covered deck to the east for rain and sun protection.
© Douglas Mark Black
道格拉斯·马克·布莱克
屋顶平面向北上升,透过雪松框架的牧师窗,俯瞰天空和树梢,与清澈的滑动门框形成了温暖和触觉的对比。
The roof plane rises up to the north to provide a view of the sky and treetops through cedar framed clerestory windows that provide a warm and tactile contrast to the clear anodised sliding door frames.
Croquis Section
番红花科
以加州的案例研究 40、50 和 60 年代的房屋为线索,一个 3.6 米的结构网格位于预制钢框架,使主支撑结构能够在一天内建立起来,然后由业主-- 建设者在这些框架内在太阳下进行填充木框架,并在一个单一的平面屋顶上进行防雨。
Taking cues from the Californian cases study houses of the 40s, 50s and 60s, a 3.6m structural grid locates prefabricated steel frames that enabled the main support structure to be erected in a day and for infill timber framing to be subsequently carried out by the owner-builder within these frames under the sun and rain protection of a single plane roof.
© Douglas Mark Black
道格拉斯·马克·布莱克
镀锌钢框架在内部和外部都有表达,在南北高地形成了重复的节奏。
随着年龄的增长,刺激的斑驳的髌骨继续发生变化。
The galvanised steel framing is expressed both internally and externally, creating a repetitive rhythm along the north and south elevations. The mottled patina of the galvanising continues to change as it ages.
© Douglas Mark Black
道格拉斯·马克·布莱克
环境可持续性是设计中固有的:诸如北方方向、有效的夏季冷却交叉流通风路径和计算出的屋檐突出用于增温冬季太阳穿透等被动措施与主动措施 (如 3kW 地面安装太阳能阵列的电力自给自足)、屋顶安装的太阳能热水加热器和用营养丰富的水灌溉花园的蠕虫-- 农场黑水处理系统相结合。
Environmental sustainability is intrinsic to the design: passive measures such as northern orientation, efficient cross flow ventilation paths for summer cooling and calculated eaves overhangs for warming winter sun penetration are teamed with active measures such as power self sufficiency from a 3kW ground mounted solar array, a roof mounted solar hot water heater and a worm-farm blackwater treatment system that irrigates the garden with nutrient rich water.
© Douglas Mark Black
道格拉斯·马克·布莱克
所有的铺装都是回收的,是从大型拆除的仓库屋顶梁中磨出的。天花板衬里是澳大利亚的环松从人工林和完成简单的亚麻油。胶合板天花板一直延伸到甲板和屋檐外,以突出室内-- 室外的感觉。
All decking is recycled jarrah, milled from large dismantled warehouse roof beams. Ceiling linings are Australian Hoop pine from plantation forests and are finished simply with linseed oil. The plywood ceiling continues outside to the decks and eaves to accentuate the indoor-outdoor feeling.
© Douglas Mark Black
道格拉斯·马克·布莱克
该房屋采用混凝土楼板进行热质量,这是简单的机械膨胀平滑,以提供一个耐穿和成本效益的解决方案。
The house employs a concrete floor slab for thermal mass, which has been simply machine trowelled smooth to provide a hardwearing and cost effective solution.
为尽量减少维修保养,选用了大量的外部材料:锌石灰钢、夯土和玻璃。
External materials were selected to be largely self-finishing to minimise maintenance: zincalume steel, rammed earth and glass.
Architects Archterra Architects
Location Margaret River, Australia
Category Houses
Architect in Charge Paul O’Reilly
客服
消息
收藏
下载
最近






























