查看完整案例


收藏

下载

翻译
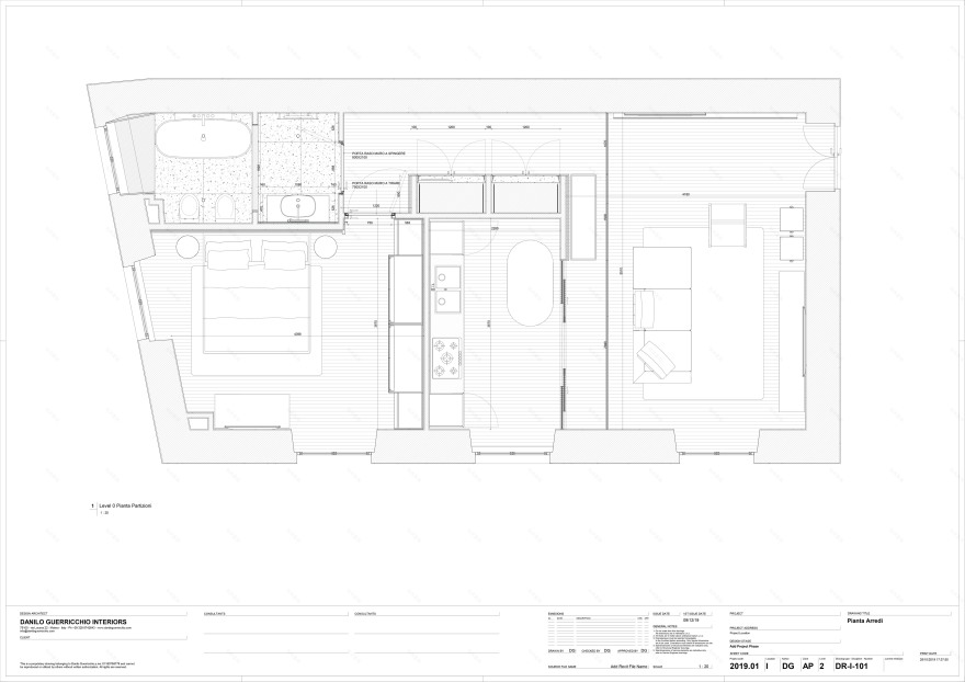
La ristrutturazione di un piccolo appartamento nel pieno centro di Matera.
Un progetto incentrato sulla funzione ancor prima che sulla forma. Spazi filtro persi nel progetto esistente vengono recuperati per creare mondi abitabili e incentrati sulla persona.
La cucina si apre sul living, ma ne resta nascosta da grandi porte in vetro fumè che creano una “scatola”, centro di tutto l’appartamento.
Parquet e arredi su misura in noce canaletto, sedute in velluto ad ammorbidire forme rigorose.
70mq in cui ogni metro è studiato in base alle esigenze di chi li vivrà.
E così il vecchio disimpegno si apre per diventare un generoso passaggio ma anche una zona di stock e lavanderia e che accompagna, quasi come in un passaggio museale alla camera da letto e ad un bagno scenografico.
Specchi ad amplificare gli spazi e la materia, carte da parati, gres e legni laccati di nero a fare da cornice ad ambienti in cui la luce, creando accenti, fa diventare lo spazio un nido.
客服
消息
收藏
下载
最近






























