查看完整案例

收藏

下载
建筑工作室APA翻修了位于伦敦Canonbury街区的维多利亚式联排别墅,创造了一个明亮而开放的内部,旨在重现改造后的仓库的宽敞空间(幻灯片)。
这座建于19世纪60年代的梯田物业以前曾被细分为两个单元,但它的新业主要求APA恢复原有的内部安排,并充分利用它的大面积。
建筑师们说:“这些客户是从仓库改建而来的,他们被吸引到了露台尽头的房产,因为它的面积非常大。”
他们补充说:“这一改造为传统的伦敦联排别墅带来了仓库的规模和光线。”
由于其在保护区内的位置,物业的主立面必须保持原有的外观,有明显的装修迹象,仅限于内部和后方的高程。
全宽度的玻璃增加到建筑物的后面,打开了以前阴暗的较低层次的花园,并允许自然光渗透到内部空间深处。
为了提高厨房的天花板高度,降低了底层的地板,并在楼梯井附近创建了一个双高空间。
滑动门将厨房和新的中庭与室外露台连接起来。厨房的混凝土地板与露台相匹配,增强了内外区域之间的连续性。
项目建筑师PipMarshall说:“我们的简介是雄心勃勃的,要真正充分利用这座建筑。”
“为了重新规划浪费的空间,把旅程提高到花园的水平,把一切都打开。”尊重这座老房子,同时又要做些重大的改变,这是很重要的。“
一个5米长的无框玻璃屋顶加在楼梯上方,将日光引入循环区域,并过滤到下面的水平。
最小的磨光混凝土调色板,卡拉拉大理石,和白色的胶合板给厨房区域一个明亮和干净的感觉。整个房子都安装了橱柜,优化了可用空间,减少了视觉上的杂乱。
用于地板和楼梯的道格拉斯杉木给这些表面一种温暖的色调,这是由于樱桃木的细节,包括一个扶手,插槽到实心胶合板栏杆。
同时,还对提高房屋的环境性能进行了大量的关注,原来的单玻璃窗扇窗户被双层玻璃复制品和内部保温所取代。
除了住宅建筑项目外,APA还致力于规模更大、规模更小的项目,包括零售空间的内部设计。
该公司为时装设计师斯特拉·麦卡特尼(Stella McCartney)设计了几家店铺,其中一家位于米兰,铺有五颜六色的人字形地板,另一家位于拉斯维加斯,展出一匹由水晶制成的马匹的艺术品。
摄影是埃德·里夫写的。
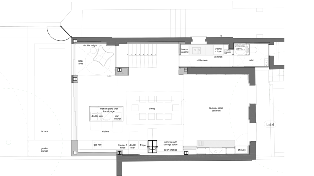
下部地面平面图–单击更大的图像
上层底层平面图-点击以获取更大的图像
一楼平面图-点击以获取更大的图像
二楼平面图-点击以获取更大的图像
部分-单击以获取更大的图像。
客服
消息
收藏
下载
最近

















