查看完整案例

收藏

下载
© Sharon Risedorph Photography
沙龙·里塞多夫摄影
架构师提供的文本描述。沙漠盖房子的设计源于它的背景:加州棕榈泉的酷热。为了让事情更具有挑战性,要想在圣贾辛托山脉上拍摄到最令人叹为观止的景色,需要有面向西的大窗户。
Text description provided by the architects. The design for the Desert Canopy House emerged from its context: the extreme heat of Palm Springs, CA. To make matters more challenging, capturing the most stunning view on the site of the St. Jacinto mountain range required large windows facing west.
© Sharon Risedorph Photography
沙龙·里塞多夫摄影
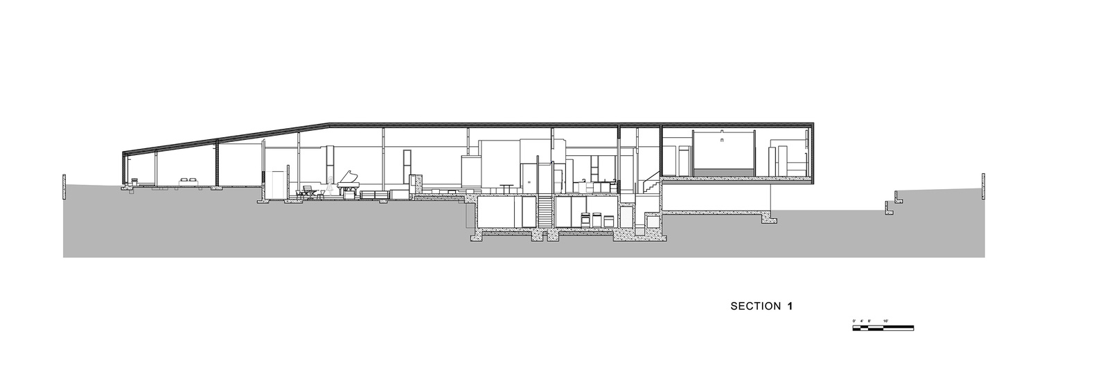
当棕榈泉在夏天的温度在华氏120度左右时有规律地蒸煮时,西方大量的玻璃暴露会导致巨大的热量增加。桑德建筑师的解决方案是用一根15英尺的悬臂将玻璃线悬吊起来,这样就可以将落日的阳光穿透房屋内部的时间减少到几乎为零。
As Palm Springs regularly simmers with summer temperatures around 120 degrees (F), a western exposure with lots of glass can cause enormous heat gain. Sander Architects’ solution was to overhang the glass line with a fifteen-foot cantilever to reduce to practically zero the time when the setting summer sun’s rays penetrate the inside of the house.
Floor Plan
从这些因素中产生了一个想法,即创造一个巨大的屋顶天篷,舱下夹着一个包含着生活空间的吊舱。房子的屋顶面积是10,066 SF,下面是6208 SF的宜居空间的封闭区域。
From these factors emerged the idea of creating an enormous roof canopy with pods tucked underneath containing the living spaces. The roof area of the house is 10,066 sf, and below is the enclosed area of 6208 sf of habitable space.
© Sharon Risedorph Photography
沙龙·里塞多夫摄影
这所房子分为四个独立的建筑:主要的居住/用餐/厨房/家庭空间,南边的私人主套房,北边的两座客用小屋,都在一个屋檐下。这一安排允许开放的,通风的微风通道之间的建筑物,这提供了更多的隐私空间和亲密的看法以外的每一栋楼。
The house is divided into four separate buildings: the main Living / Dining / Kitchen / Family spaces, a private master suite to the south, and two guest cottages to the north, all under one roof. This arrangement allows for open, airy breezeways between the buildings, which provides greater privacy between spaces and intimate views outside each building.
© Sharon Risedorph Photography
沙龙·里塞多夫摄影
这座住宅是砂磨机建筑师的混合住宅之一,这是一种由该公司构思的建筑,它将预制结构体系与定制设计结合在一起。通过使用预制金属框架以很小的成本建造最昂贵的结构部件,客户的预算可以走得更远。其他组件,如建筑表皮、装修和空间布局都是自定义设计的,允许根据客户的独特需求定制每个家庭。
This residence is one of Sander Architects’ Hybrid Houses, a type of construction conceived by the firm that combines a prefabricated structural system with custom design. By using prefabricated metal frames to build the most expensive structural components at a fraction of the typical costs, the client’s budget can go much further. Other components, such as the building skin, finishes, and layout of spaces are custom designed, allowing each home to be tailored to the client’s unique requirements.
© Sharon Risedorph Photography
沙龙·里塞多夫摄影
建筑外壳采用沙漠居住植物的隔热技术.阿玛迪洛和卡克提都使用多层贝壳系统来保护自己免受极端温度的影响。(鼓掌)
The building shell employs the techniques of desert-dwelling plants for thermal insulation. Armadillos and Cacti both use multi-layer systems of shells to protect themselves from extreme temperatures.
© Sharon Risedorph Photography
沙龙·里塞多夫摄影
该建筑的外壳使用砂磨机建筑师的混合房屋系统,以支持屋顶天篷,并被封装使用小口,预制板,有一层厚的聚苯乙烯泡沫绝缘。这种绝缘层是另外两层的三倍:一层是发泡聚苯乙烯层,另一层是高科技反光箔和泡沫包装层,就像“太空时代”铝箔毯子在生存工具包中使用的那样。
The outer shell of the building uses Sander Architect’s Hybrid House system to support the roof canopy and is enclosed using SIPs, prefabricated panels that have a thick layer of Styrofoam for insulation. This insulation is tripled with two other layers: one of expanded Polystyrene and another of a high-tech reflective foil-and-foam wrap, much like the “space-age” foil blankets used in survival kits.
© Sharon Risedorph Photography
沙龙·里塞多夫摄影
这些层的综合R值是在90年代,允许房主从根本上减少他们使用暖通空调和他们的庞大的公用事业费用。(标准住宅的R值在屋顶为24,墙壁为19。)以前的房子建在工地上,隔热性能差,每年夏天都要花费客户大量的电费。新的建筑外壳将他们的费用降低到了以前的一小部分。
The composite R-value of these layers is in the 90s, allowing the homeowners to radically reduce their use of HVAC and their sizeable utility bills. (A standard home would have an R-value in the range of 24 in the roof and 19 in the walls.) The former house on the site, built with poor insulation, cost the clients an extraordinary amount of money in electrical bills each summer. The new building shell reduces their bills to a fraction of their former costs.
© Sharon Risedorph Photography
沙龙·里塞多夫摄影
在沙漠顶棚,可持续性、预制和美学是无缝地结合在一起,创造一个既高效又美丽的生活环境。
In the Desert Canopy House, sustainability, prefabrication, and aesthetics work seamlessly together to create a living environment that is both efficient and beautiful.
Architects Sander Architects
Location Palm Springs, United States
Category Houses
Architect in Charge Whitney Sander
Area 10066.0 ft2
Project Year 2013
Photographs Sharon Risedorph Photography
客服
消息
收藏
下载
最近

























