查看完整案例


收藏

下载

翻译
--------------------------
ITA
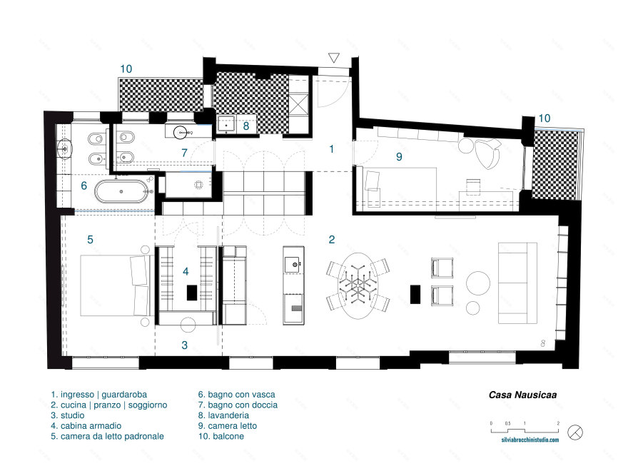
“ Vivere come in una stanza da hotel “ è il desiderio della committenza che ha deciso di ristrutturare un appartamento di 110mq che si affaccia sui tetti più belli del centro storico di Senigallia.
Il progetto ha cercato di epurare gli spazi e di renderli, aperti, fluidi e modificabili rispetto alle esigenze, privilegiando i contrasti, la luce ed i materiali naturali.
Il bianco e nero è declinato in vari materiali e superfici mettendo in evidenza il parquet a spina francese in noce ed accenti in ottone. La cucina, gli arredi fissi ed i piccoli oggetti in pietra naturale sono disegnati su misura.
ENG
“Living as in a hotel room” is the desire of the client who decided to renovate a 110sqm apartment which overlooks the most beautiful roofs of the historic center of Senigallia.
The project has tried to purify the spaces and make them open, fluid and modifiable according to the needs, favoring contrasts, light and natural materials.
The black and white is declined in various materials and surfaces highlighting the French herringbone walnut floor with brass accents. The kitchen, the fixed furniture and the small stone furniture are custom designed.
客服
消息
收藏
下载
最近
























