查看完整案例

收藏

下载
© Alex Campbell
亚历克斯·坎贝尔
架构师提供的文本描述。中庭工作室是阿什伯顿工作室学校的一部分,这是一所位于南达特摩尔社区学院校园内的新学校。中庭工作室的愿景与国家的努力保持一致,致力于培养一支具有“真实世界”技能的未来员工队伍。
Text description provided by the architects. Atrium Studio is part of the Ashburton Studio School, a new school set within the campus of South Dartmoor Community College. The vision for Atrium Studio aligns itself with the national drive for the improvement and focus on preparing a future workforce with ‘real world’ skills.
© Alex Campbell
亚历克斯·坎贝尔
当地和全国的雇主已经确认,西南地区的建筑和建筑环境工业在不断增长。然而,在这种增长的同时,也存在着技能短缺-衰退的影响和日益成熟的劳动力。考虑到这一点,已经开发了中庭工作室,以改善阿什伯顿和周边德文地区年轻人的教育机会。中庭工作室为最多375名十三至十九岁的学生提供专业服务,为他们提供必要的生活技能,以满足未来雇主、大学和专业团体进一步发展和招聘所需的技能短缺。
It has been identified by local and national employers that the South West has a growing Construction and Built Environment industry. However, alongside this growth there is also skill shortage an effect of recession and a maturing work force. With this in mind Atrium Studio has been developed to improve the educational opportunities for the young people of Ashburton and the surrounding Devon area. Catering for a maximum of 375 students between the ages of thirteen and nineteen, Atrium Studio proposes a specialist response to equip them with the life skills needed to fulfill skill shortages required for further development and recruitment by future employers, universities and professional bodies.
Ground Floor Plan
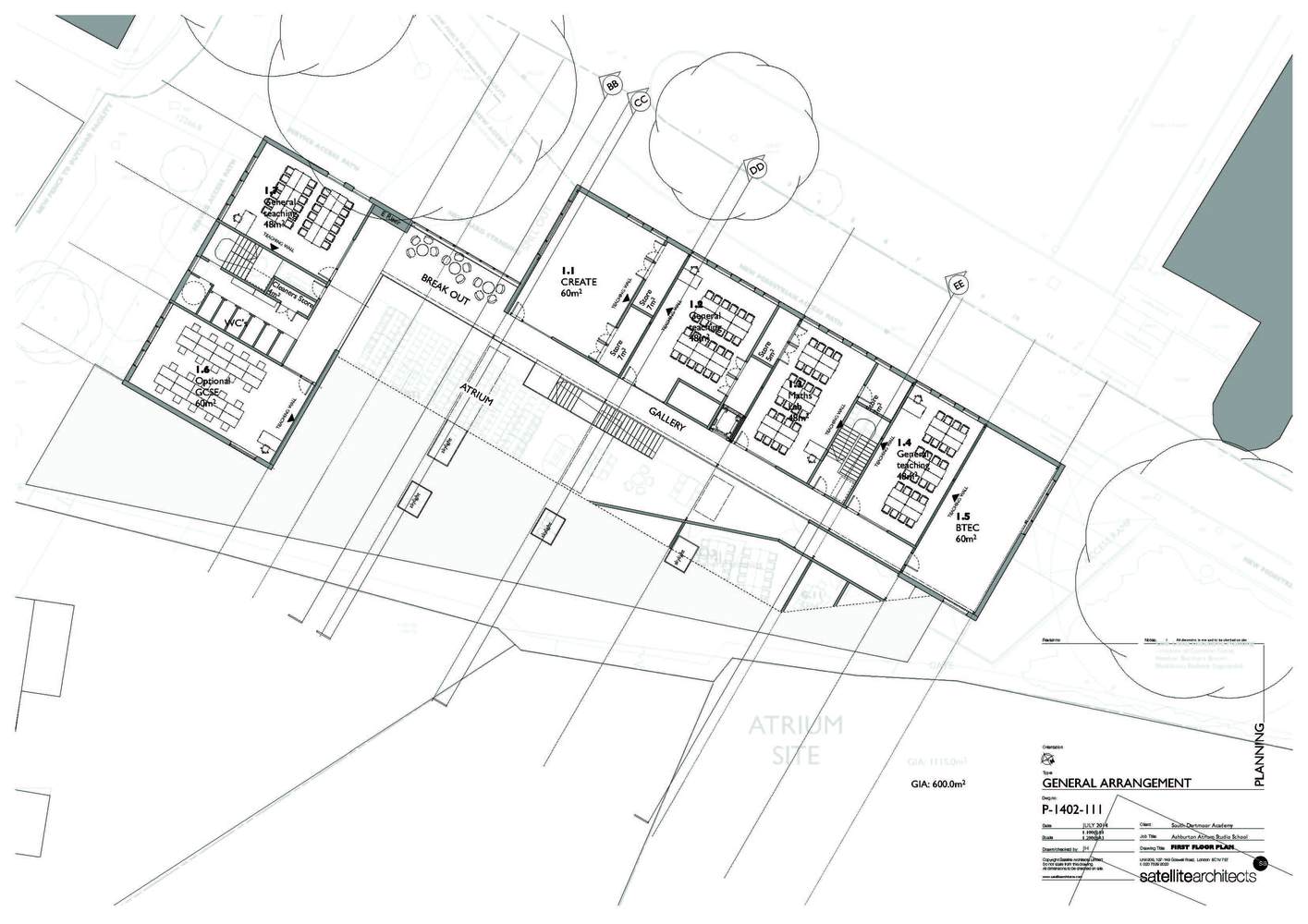
由卫星建筑师开发的建筑模型是针对已建立的树木而形成的,这种树形成了一个三角形脚印。中庭演播室分为三个街区。场地的北面和西面是两层楼内的主要教学空间,沿边界围栏向南,位于较低的单层大楼内的支撑空间。一个开放的计划,三角形中庭形成在三个街区之间的空间,以容纳集会,就餐,学习和社交。所述中庭还为底层提供循环,所述开放式廊可俯瞰所述中庭,为所述第一层提供循环。
The architectural model developed by Satellite Architects was formed in response to established trees, which had created a triangular footprint. Atrium Studio is arranged into three blocks. To the north and west of the site are the principal teaching spaces placed in two storey blocks. Along the boundary fence to the south of the site resides the support space within a of lower single storey block. An open plan, triangular atrium forms the space in between the three blocks to accommodate assemblies, dining, study and socialising. The atrium also provides the circulation for the ground floor with an open gallery overlooking the atrium providing circulation for the first floor.
© Alex Campbell
亚历克斯·坎贝尔
中庭演播室已经发展成为一个有特色的和公民的存在。这是通过引入有节奏的屋顶形式来实现的;屋顶的定义是一系列重复的海湾,在两端向更大的相邻建筑物上升。这座建筑在原来的校舍前确定了一个中央广场。该建筑的主要入口在场地的狭窄端,这是一个视觉戏剧性的进入工作室,这也提供了独立的公共道路。
Atrium Studio has been developed to have a characterful and civic presence. This has been achieved by introducing rhythmic roof forms; the roof is defined by a series of repeating bays, which rise at both ends towards the larger adjacent buildings. The building defines a central square in front of the original schoolhouse. The main entrance to the building is at the narrow end of the site, a visually dramatic entry to the Studio, which also provides independent access from the public road.
© Alex Campbell
亚历克斯·坎贝尔
中庭工作室的内部设计为学习环境提供了一个健壮的解决方案。此外,由于学校的专业是建筑,信息图形已被纳入设计,学生和游客将看到每个结构元素的负荷和学校的计划形成格局的楼梯栏杆。在整个建筑中,光通风空间是通过平衡暴露的结构和亮色的飞溅而形成的。
The interior to Atrium Studio has been designed to provide a robust solution for a learning environment. In addition, as the school’s specialism is construction, informative graphics have been incorporated into the design; students and visitors will see the loading on each structural element and the plan of the school forms the pattern to the stair balustrade. Throughout the building light airy spaces have been created by balancing the exposed structure with splashes of bright colour.
Architects Satellite Architects
Location Ashburton, United Kingdom
Category Schools
Project Year 2015
Photographs Alex Campbell
客服
消息
收藏
下载
最近

















