查看完整案例

收藏

下载
位于杜尔威奇的一对新房子;伦敦褐石取代了一座20世纪50年代丑陋的炸弹损坏的建筑,是对爱德华时代露台的当代重新诠释。规划者建议“融入”当地的环境,这导致了房屋,虽然“适合”,是无耻的现代,无论在里面和外面。每间房子面积200平方米,有5间卧室。简短的是为客户(格雷格、珍妮和他们的孩子)建造一栋房子,另一所为项目提供资金。
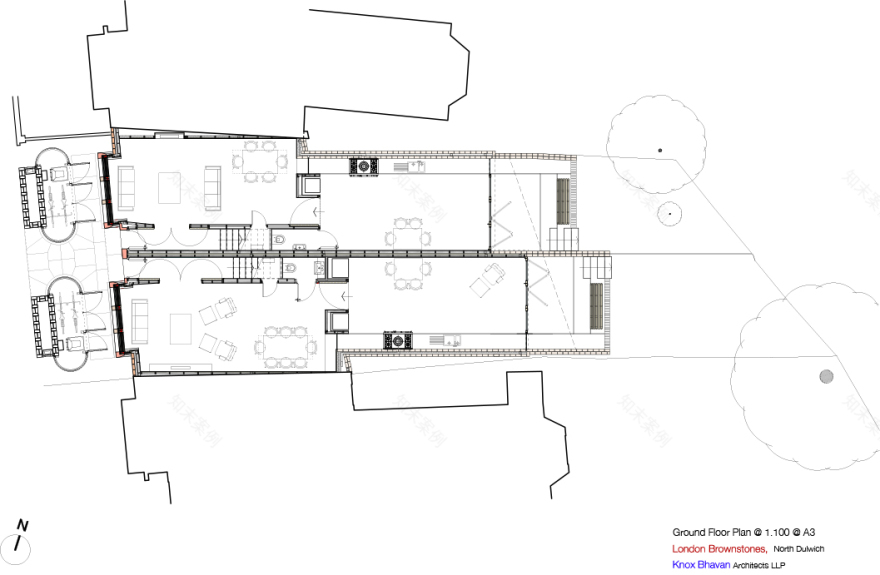
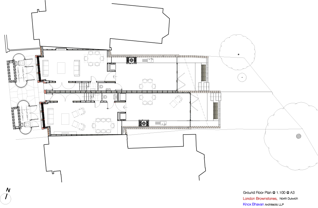
房屋的规划应符合现代生活,受限制的场地和对角后方建筑线(由规划者规定)。底层的布局是开放式的,一个坐、厨房、餐厅的空间。清晰的视野从前到后通过房屋和故意使用无缝和自然材料增强了空间感和光的内部,尽管狭窄的计划。
通过仔细开发的水平现场,额外的层被创造在后方。厨房部分沉入地面,牧师(点亮厨房工作表面)在花园墙壁的高度完成。弯曲的屋檐(到外缘)软化了墙壁和屋顶之间的界限,让光线进入下面的厨房。滑动折叠门与外部庭院无缝连接。厨房的工作台面和抛光的混凝土地板都从里面跑到院子里,而一个突出的玻璃天篷提供了部分的外壳。外面的花园高度是用舌和沟槽的落叶松木板覆盖的,小角度的卧室突出的海湾可以窥视。
这些房子有精美的内部细木工。全高门在底层,紧贴在墙上的口袋里,这样内部空间就可以完全打开。前厅的窗户有集成的滑动百叶窗,给房间部分或完全的隐私。一个弯曲的定制木材楼梯把房子的各个层次连接起来。在上层没有浪费空间,在平面和剖面上使用曲线,使房子感觉独特、流畅和特殊。
埃尔姆伍德路的正面是石头:赤陶砂岩铺在灰泥中;白砂岩、石柱和基尔斯与相邻房屋的灰泥带对齐。锌包的前背体与邻近的背有相同的螺距,但脊是弯曲的。木结构,房屋的建造是为了超越现行的建筑法规。
建造工程花了两年半的时间;由于第一个承包商在半路上进入清算阶段,必须找到一个准备完成该项目的新承包商。
2010年3月任命诺克斯·巴文
规划批准-2011年7月
2011年11月开始
2014年4月完成
伦敦褐石是一个当代的答案,无处不在和深受喜爱的伦敦梯田房屋。耐用、美观的材料、巧妙的细木工、轻巧和曲线,都是以一种真正创新的方式使用的,以创造一个相关可行的解决方案,在21世纪与现有的住宅建筑一起建造。
客户:Greg和Jenny Falzon
建筑师:诺克斯·巴文建筑师
承包商:丹尼斯·科斯滕科建筑服务公司
结构工程师:价格
服务工程师:保罗·巴斯蒂克合伙人
数量测量员:IanThomson
丹尼斯·吉尔伯特
Firm Knox Bhavan Architects LLP
Type Residential › Multi Unit Housing Private House
STATUS Built
YEAR 2014
SIZE 3000 sqft - 5000 sqft
Photos Dennis Gilbert
keywordsarchitecture, architecture news, interiors, interior design, portfolio, spec, brands, marketplace, products London Brownstones
关键词建筑,建筑新闻,室内设计,组合,规格,品牌,市场,伦敦褐石产品
客服
消息
收藏
下载
最近






























