查看完整案例

收藏

下载
瓦莫斯建筑师已经完成了一个新的8500平方英尺的儿科设施的建设,为迈蒙尼德医疗中心。
受这样一个简单的想法的启发,设计可以从一个空间和它的项目的操作挑战中产生,新的设施被设计出来,为在这个大容量的实践中接受治疗的医生、工作人员和病人提供一个有效的流程。这一引人注目的设计旨在为患者及其家属在进入这个空间时创造一个明亮、清晰和立即积极的第一印象。该设计平衡了医院严格的运营和物质要求,以及大胆的视觉效果,突出了儿童及其家人花费最多时间的地方:等待区。
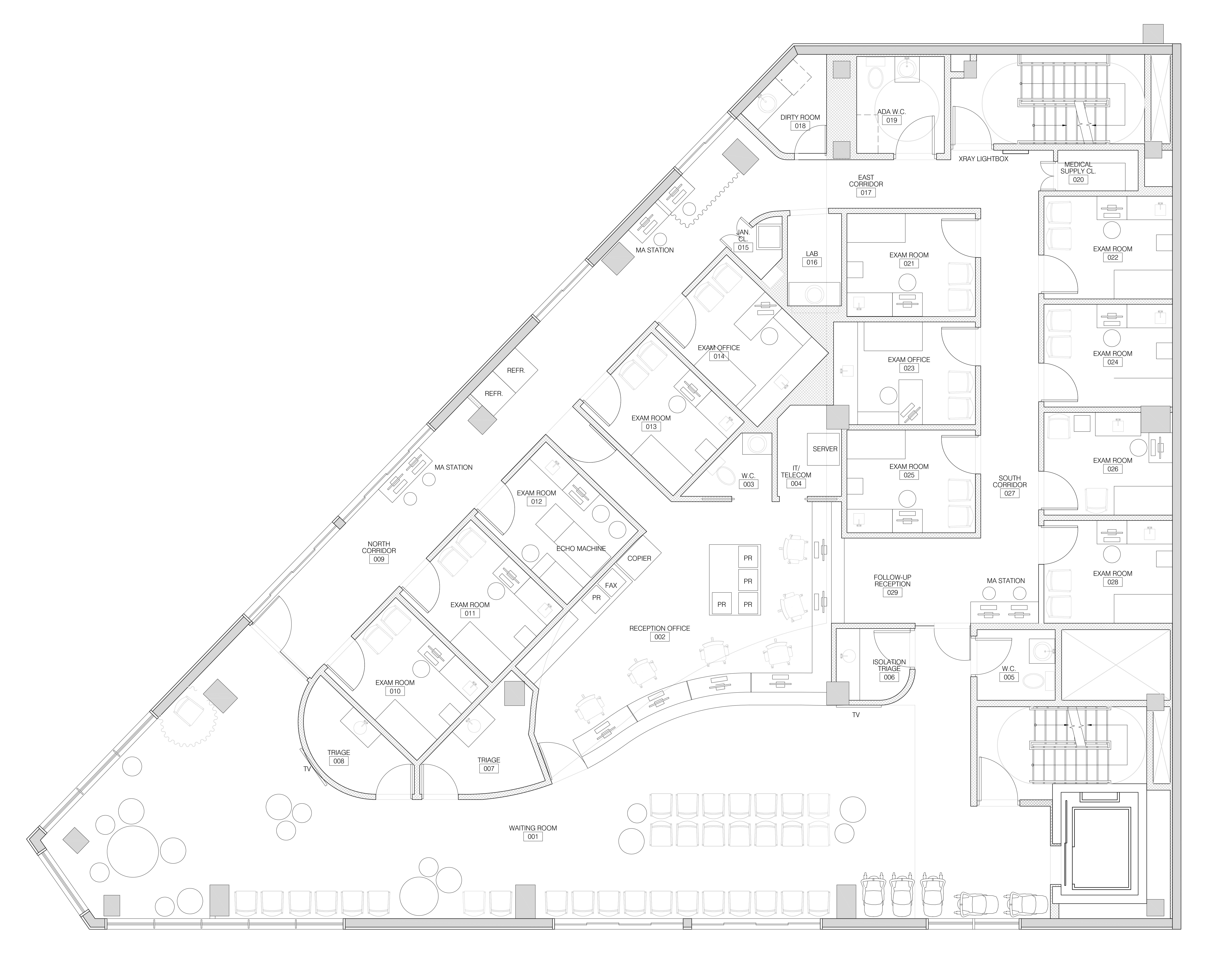
这些公共等候和流通空间位于阳光明媚的双高度周边地区,而考场、仓库、实验室和行政管理功能则设在空间中心的一个高效物体中。中心核心的角落是圆形的,以便更好地适应病人、医生和工作人员的繁忙流动。在这个设施里,医生们从一个房间搬到另一个房间,有效地治疗病人,所以Vamos的设计非常小心,为所有的检查室创建相同的布局。这一特点有助于为医生提供一个直观和立即熟悉的治疗环境,并使医生和工作人员有能力更好地为每天通过该设施的200名病人及其家属提供服务。
儿科医院的“海底”主题在这里被重新诠释,通过Vamos使用高纹理和触觉的材料,戏剧性的比例,高对比度的水生图形来唤起沉浸式水下体验的感觉。蓝色物体的上表面被覆盖在穿孔的乙烯基上的一系列声学瓦片包裹,专门设计以降低大厅中的高噪音水平。吊灯被捆绑在一起,形成一簇藤壶状的枝形吊灯。成群的鱼类、鲸鱼、潜水员和水母包围着周边的空间和明亮绿色的墙壁基地,为年轻的病人提供了一种有趣的方法-在他们从等候区移动到诊疗室,回到主要的开放空间时,沿着整个中心物体走来走去。
Vamos提供了一视同仁的白色图板,环绕着中心空间,作为一个强大的组织元素来控制不可避免地凌乱于医疗设施墙壁上的不断变化的通知和信息。
空间的布局,病人经验和流程的编排,以及各种触觉表面的设计,都鼓励人们参与、好奇和积极参与,在这个空间里,病人和他们的家人经常处于一种充满情感的精神状态。
该设施包括12个儿科检查室,3个分诊区,2个实验室,一个接待和跟踪工作人员核心,一个商务呼叫中心和工作人员办公室。
克里斯·佩恩摄影
Firm VAMOS Architects
Type Government + Health › Medical Facility
STATUS Built
YEAR 2011
Photos wkemper
keywords:architecture, architecture news, interiors, interior design, portfolio, spec, brands, marketplace, products Maimonides Medical Center Department of Pediatrics
关键词:建筑,建筑新闻,室内设计,组合,规格,品牌,市场,产品Maimonides医疗中心儿科系
客服
消息
收藏
下载
最近










