查看完整案例

收藏

下载
架构师提供的文本描述。SGC住宅位于瓜达拉哈拉地区住宅增长最快的地区,基于对场地和客户需求的分析,SGC住宅的概念基于一种特殊的策略,该方案被分成两部分,以前厅和垂直循环为中心轴,这样可以更有效地分配空间,给他们更多有用的区域,充分利用走廊区域和水平循环。
Text description provided by the architects. Situated in the area with the highest residential growth in Guadalajara, the concept of the SGC house is based on one particular strategy based on the analysis of the site and the requirements of the client, the program is divided in two, taking as the central axis the vestibule and vertical circulations, this allows to distribute in a more efficient way the spaces, giving them more useful area and take full advantage of the hallway areas and horizontal circulations.
© Marcos García
c.Marcos García
通过这种方式,房子就像一条长廊,从你下车,或者走到房子的时候,你几乎总是发现自己身处的地方,周围是露台,街道的不同景色,邻居的建筑和花园。
In this way, the house works as a promenade, starting when you get off the car, or getting to the house walking, you almost always find yourself in places surrounded by patios, covered and open terraces, different views to the street, the neighbor’s constructions and garden areas.
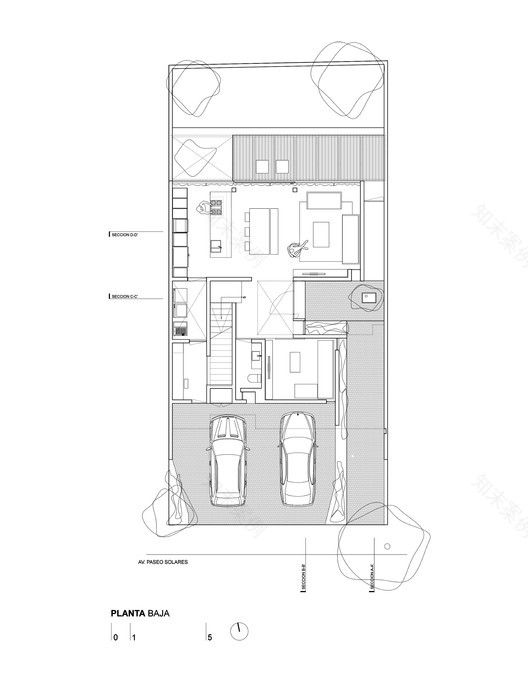
Ground Floor Plan
底层包含房屋的不同社会区域,除以主轴,一边是电视房、浴室和服务区,另一边是客厅、餐厅和厨房的开放区域,而上层则只包括房子的私人区域、卧室和私人自修室。
The ground floor contains the different social areas of the house, divided by the main axis, on one side a TV room, a bathroom and the service area are placed, and the other side contains an open area with the living room, the dining room, and the kitchen, while the upper floor just contains the private areas of the house, the bedrooms and a private study room.
© Marcos García
c.Marcos García
房子的不同楼层之间的主立面形成了明显的对比;下一层被涂上黑色的饰面,以便从街道上对房子进行更加封闭和安全的观察,强调上层,即完全向街道开放,并始终与街道茂密的植被保持联系。
A marked contrast is given to the main façade between the different levels of the house; a black finish is given to the lower floor to give a more closed and secured view of the house from the street, emphasizing the upper floor, that is fully opened to the street and always in touch with the dense vegetation of the street.
© Marcos García
c.Marcos García
立面的几何学强调房屋内部不同区域的独立性,通过改变材料、颜色和纹理,形成叶片和墙壁剪裁,造成街道、庭院和后院的不同景观。
The geometry of the facades emphasize the independence of different interior areas of the house, which through some change in materials, colors, and textures, create vanes and wall cuts causing the different views of the street, the patios, and the backyard.
© Marcos García
c.Marcos García
客服
消息
收藏
下载
最近






























