查看完整案例


收藏

下载
© Edu Castello
(Edu Castello)
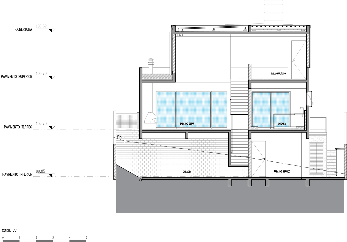
架构师提供的文本描述。Itahyé住宅距巴西圣保罗30公里。330平方米分为3层。较低层集中在车库、洗衣房和仓库。中间层到后院,有厨房和起居室,因为上层是为家庭房间和3间卧室预留的。
Text description provided by the architects. The Itahyê Residence is located 30km from São Paulo, Brazil. The 330 m² is divided in 3 stories. The lower level concentrate the garage, laundry and storage areas. The middle level reaches the back yard and have the kitchen and living area as the upper floor is reserved for the family room and 3 bedrooms.
© Edu Castello
(Edu Castello)
为了加强这一分布,我们对每一层采用了不同的材料:下层砖,中间层为实心混凝土箱体,上部为蓝色金属砖。材料选择考虑了长期和热性能的维护,由一位专家为房屋的每个区域计算。
To reinforce this distribution we adopted different materials for each level: to the lower floor brick, to the middle level a solid concrete box and blue metallic tiles for the upper level. The material choices took in consideration maintenance in a long term and thermic performance, calculated by an specialist for each area of the house.
© Edu Castello
(Edu Castello)
同样的研究也决定了开口的位置和大小,保证了夏季微风房的最佳位置和通风区域,但在冬天却是舒适和温暖的。所有这些信息,我们研究了正面和类型开放的结果,我们是满意的。
The same studies dictated the place and size of the openings guaranteeing the best location and ventilation area for a breezy room in the summer but cozy and warm in the winter. With all this information we studied the facades and types of opening to a result we were pleased with.
© Edu Castello
(Edu Castello)
这位客户希望有更多的外部空间,这也是他搬离和住在家里的原因之一。地板布局允许汽车与社交区域隔离开来,起居室只与地面接触,因此不会占用大量草坪的空间,而上面的地板为瓦兰达河和花园的一部分创造了一个屋顶,这样家庭就可以在使用社交区时从下街道获得隐私,并为自己的花园开放房子和卧室。
The client wanted to have more external area as he could, one of the reasons he was moving away from and apartment to a home. The floors distribution permits cars to be isolated from the social area, the living room only touches the ground so it doesn’t take space from the generous lawn and the upper floor creates a roof for the varanda and part of the garden so it allows for the family to have privacy from the lower street when using the social area and open the house and bedrooms for its own garden.
© Edu Castello
(Edu Castello)
居住区域的一部分有一个与家庭房间相结合的双层天花板,并允许更好的通风。大推拉门将生活与花园融为一体。我们选择将带有烧烤设备的阳台错位到厨房的排列位置,以免挡住客厅的视野,使烧烤和厨房之间有更多的联系。为了保护阳台地区不受夕阳的影响,设置了白色陶瓷元素来保护和创建阴影图案。
Part of the living area has a double ceiling that integrates with the family room and allows better ventilation. Large sliding door integrates the living with the garden. We choose to dislocate the veranda with barbecue equipment to the kitchen alignment in a way not to block the living room view and have more connection between barbecue and kitchen. To protect the veranda area from the setting sun, white ceramic elements were set to protect and create a shadow pattern.
© Edu Castello
(Edu Castello)
所有外墙都有生混凝土。为了平衡它,所有剩下的墙壁都是白色的,并且与木地板保持很好的平衡。
The raw concrete is present in all external walls. To balance it, all the remaining walls are white and make a good balance with the wooden floor.
Planta Baixa - Térreo
Planta Baixa-Térreo
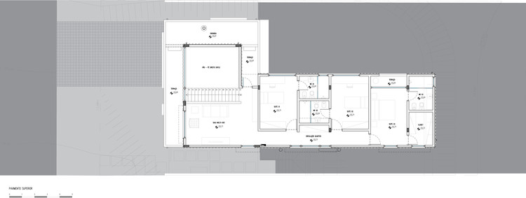
Planta Baixa - Superior
PlantaBaixa-Superio
在楼上,3间卧室既可以容纳孩子,也可以容纳主人,每个房间都有自己的套房。主套房把寡妇从门面上移开,得到了一个阳台。
On the upper floor, 3 bedrooms receive both kids and the owners, each one with his own suite. The master suite had the widow removed from the facade and gained a balcony.
© Edu Castello
(Edu Castello)
Architects DT Estúdio
Location Santana de Parnaíba, Brazil
Category Houses
Area 305.0 m2
Project Year 2014
Photographs Edu Castello
Manufacturers Loading...
客服
消息
收藏
下载
最近
































