查看完整案例


收藏

下载
架构师提供的文本描述。坐落在曼谷郊区的一个大型住宅开发项目的池塘旁边,这座房子的背面被广泛地开放给一处风景优美的景观。对于这所房子来说,它的后背不是储藏室、清洁区或隐蔽空间,而是卧室、客厅和放松区。
Text description provided by the architects. Locating next to the pond in a large housing development project in the suburb of Bangkok, the back of this house is widely opened to a scenic landscape. For this house, the back is not storage, cleaning area or hidden space but a bedroom, a living room and the relaxing areas.
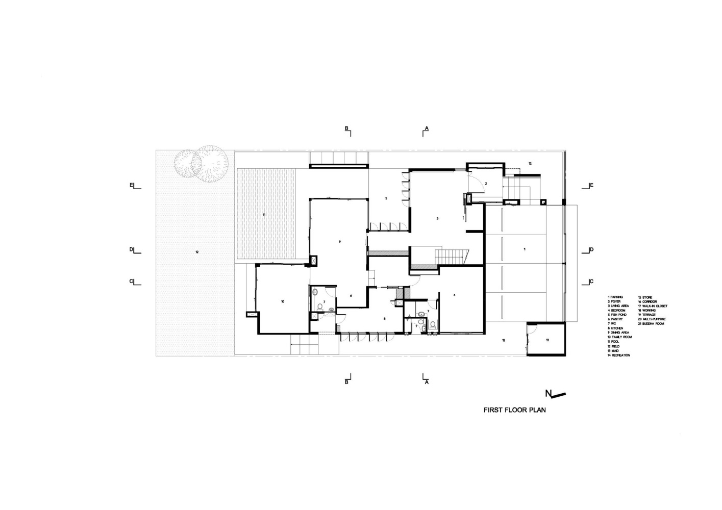
这些房间放在三层楼上,让居民们可以欣赏有草坪和池塘的景色。面向西面,入口处的前部用作功能空间。铝板固定在第二层和第三层的墙上,遮挡阳光。房子中间的小鱼池把接待区和餐厅隔开了,但同时,透过这个水庭,在这两个空间之间建立了一种联系。
These rooms are put on the three floors for the inhabitants to enjoy the view with a lawn and a pond. Facing west direction, the front of the house next to the entrance is used as functional spaces. Aluminium slate panels are held on the wall of the second and the third floors to block the sunlight. The small fishpond in the middle of the house separates the reception area from the dining room but at the same time, creates a connection between the two spaces by seeing across this water court.
© Casaviva Thailand
泰国Casaviva
这是一个开放的空间,让自然光照射进来,鼓励居民日夜仰望天空,提供更舒适的感觉。在最初的设计中,这座房子将由一个平顶甲板覆盖,但由于年长的家庭成员关心的是传统的形式和住房氛围,因此由一个倾斜的屋顶取代了它。然而,闪亮的铝复合材料屋檐或多或少为房子创造了一种现代的触觉。
This water court is an open space that allows natural light to shine in and encourages the inhabitants to look at the sky day and night, providing the more comfortable feeling. In the original design, a flat roof deck would cover this house but a hipped roof replaced it since elderly family members were concerned with having traditional form and housing atmosphere. Yet the shiny aluminium composites eaves creates, more or less, a modern touch for the house.
© Casaviva Thailand
泰国Casaviva
Architects Archimontage Design Fields Sophisticated
Location Bangkok, Thailand
Category Houses
Architect in Charge Cherngchai Riawruangsangkul, Suphot Klinaphai, Thanakit Wiriyasathit
Area 715.0 sqm
Project Year 2013
Photographs Casaviva Thailand
客服
消息
收藏
下载
最近































