查看完整案例


收藏

下载
© Toshiyuki Yano
c.Yano Toshiyuki Yano
架构师提供的文本描述。U楼位于千叶县的住宅区,就在东京的郊区。房子有3卷;不对称的房子和两个混凝土盒子。镀锌钢板叠层木结构房屋,座落在延伸的混凝土基础之上,是从地面上生长而来的。
Text description provided by the architects. U House is located in a residential area in Chiba prefecture, just at the outskirt of Tokyo. The house contains 3 volumes; Asymmetric house and two concrete boxes. Galvanized steel cladded timber structured house sits on top of extended concrete foundation grew from the ground.
© Toshiyuki Yano
c.Yano Toshiyuki Yano
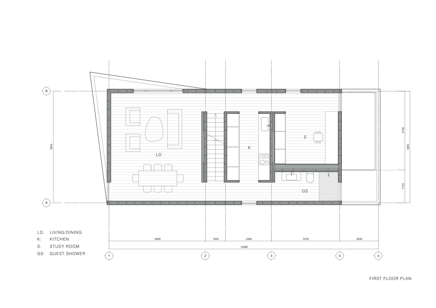
为了给下面狭小的花园提供更多的阳光,这所房子把屋顶从邻近的建筑物移开。房子的不对称形式在里面反映为一个双重高度的居住和就餐空间。
The house sways its roof away from the neighboring building in order to provide more daylight to the narrow garden below. Asymmetric form of the house is reflected inside as a double height living and dining space.
Longitudinal Section
我们认为,这种形式上的“不完美”提供了更柔和的空间体验,也可以在日本传统房屋中看到。自习室、厨房、客房均设于一楼,与生活无缝相连。
We believe this formal “imperfection” gives softer spatial experiences that can be also seen in Japanese traditional houses. Study room, kitchen, guest shower room are arranged on the 1st floor seamlessly connected from living & dining room. Guest room on 2nd floor is like an attic under triangular roof with punched balcony.
© Toshiyuki Yano
c.Yano Toshiyuki Yano
在底层,套房主卧室面向私人花园,其低矮的窗户被设计成从座位高度欣赏视野。入口大厅,作为客人招待会,是一个间隙之间的两个混凝土盒子,有一个40毫米宽的木材模板印记,从外墙继续。软/硬材料的结合和不同的空间比例创造了丰富的主人享受整个季节的每一个居住的地方。
On the ground floor ensuite master bedroom faces the private garden and its low windows are designed to enjoy the view out from a seating height. Entrance hall, serves as a guest reception, is an interstitial space between the 2 concrete boxes that has a texture of 40mm wide timber formwork imprint continuing from exterior wall. Combination of soft/hard materials and various spatial proportions creates richness for the owner to enjoy every and each living place throughout the seasons.
© Toshiyuki Yano
c.Yano Toshiyuki Yano
Architects KIAS
Location Chiba, Japan
Category Houses
Architect in Charge Kentaro Ishida, Yuji Ito, Miyuki Kakizawa (KIAS)
Area 190.0 sqm
Project Year 2015
Photographs Toshiyuki Yano
客服
消息
收藏
下载
最近

























