查看完整案例


收藏

下载
© Patrick Reynolds
帕特里克·雷诺兹
架构师提供的文本描述。图阿图瓦的房子位于一个沿海分区。简约需要一个慷慨的家庭度假之家,适合经常的客人和非正式的娱乐,与车库,一艘船和体育设备的空间。
Text description provided by the architects. The Tuatua house is located in a coastal subdivision. The brief required a generous family holiday home suitable for frequent guests and informal entertaining, with space to garage a boat and sports equipment.
该网站是向北朝视图,但从公共人行道上可见,并有相邻的房屋在两侧的边界。这一地区受到大风的影响,既有来自海岸的北风,也有来自西南的强风。
The site is north facing toward the view, but visible from the public walkway, and has adjacent homes on the two side boundaries. The area is subject to strong winds, both northerly from the coast and from the south west.
© Patrick Reynolds
帕特里克·雷诺兹
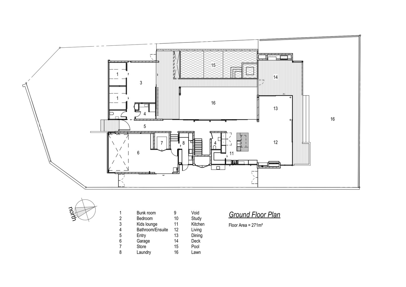
该计划位于海洋北端的主要起居区,环绕着一个西向草坪和游泳池庭院,由南端的儿童翼包围。
The plan locates the main living area at the seaward north end of the site, and wraps around a west facing lawn and pool courtyard, enclosed by the children’s wing at the southern end.
业主的卧室和两间客房设置在一个较高的层,创造了私人撤退从下面的层次。
The owners bedroom and two guest bedrooms are set on an upper level, creating private retreats from the level below.
© Patrick Reynolds
帕特里克·雷诺兹
双高入口处位于沙丘之上的轴线上,所以当你向起居区进发时,你的视野就会显现出来。堆叠滑块从画廊打开空间进入花园,提供视觉连接之间的空间。
The double height entry gallery is on axis to a sand dune beyond, so that the view is revealed as you progress to the living area. Stacking sliders from the gallery open the spaces into the garden, providing visual connection between the spaces.
该设计解决了周围的隐私问题,从沿海走道和邻近的家庭,并创造了灵活的手段,以遮挡阳光和风。外部百叶窗,板条砖-太阳和织物天篷使房子适应环境。
The design addresses issues around privacy from the coastal walkway and adjacent homes, and creating flexible means of shelter from sun and wind. Exterior blinds, a slatted brise-soleil and a fabric canopy adapt the house to the conditions.
© Patrick Reynolds
帕特里克·雷诺兹
该设计使用混合纹理材料选择,以抵御恶劣的环境。袋装砖石和乡土雪松表面继续在内部和外部,并包裹和覆盖的形式模糊区分地板,墙壁和天花板的平面。空白的门面和草的入口庭院暗示着一个替代邻近郊区类型的选择。
The design using a mix of textured materials selected to withstand the harsh environment. Bagged masonry and rustic cedar surfaces continue between inside and outside, and wrap up and over the forms blurring distinction between floor, walls and ceiling planes. The blank entry façade and grassed entry courtyard suggests an alternative to the neighbouring suburban typology.
© Patrick Reynolds
帕特里克·雷诺兹
Architects Julian Guthrie
Location Omaha, New Zealand
Category Houses
Area 424.0 sqm
Project Year 2016
Photographs Patrick Reynolds
客服
消息
收藏
下载
最近

































