查看完整案例

收藏

下载
一个棱角的入口和屋顶相交的植物覆盖屋顶的楔形房屋,由建筑师办公室OYO在比利时的马尔德宝石村完成(幻灯片)。
总部位于根特的OYO--其先前的项目包括一个整体混凝土房屋扩建--得到了这一新房产的公开简介,因此决定将重点放在创建一座“生态紧凑的建筑”上。
这导致了一座有着倾斜的绿色屋顶的建筑,形成了一个邀请人们爬上去的山坡。
这座建筑名叫“Pibo豪斯”,是一种颠倒式的布局设计。卧室位于较低的楼层,略低于相邻道路的水平,而楼上的两层楼则包含能充分利用光线和景观的起居室。
建筑师们在一份项目描述中说:“与比利时大多数单身家庭房屋不同的是,我们一开始就想把起居室放在卧室的顶部。”
“在一个由分裂层次组成的房子里,在空间和自然照明条件之间建立交叉关系是很重要的。”
这座建筑倾斜的屋顶是作为周围土壤的延续,并种植了几种开花植物,这些植物全年都在改变着它的外观。
与之相反,正面是护套在橡胶膜,防水的内部。根据天气情况,这种材料也有不同的色调。
其中一个突出的角度,中断了倾斜的绿色表面延伸到地面,并标志着建筑物的入口。它的木衬内面创造了一个诱人的通道,可以看到天空的框架,窗户上方的门。
入口直接进入起居室,楼梯从半层上升到餐厅和厨房区域,或下降半层到卧室。
从屋顶伸出的窗户允许日光涌入餐厅。它创造了一个合适的天花板高度以上的空间,同时也尽量减少从街道进入建筑物的看法。
夏季,周围的地球会使底层的卧室保持凉爽。他们从窗户接收到与外面地面相同水平的自然光。
地板与玻璃栏杆之间的缝隙围绕着上层的边缘,确保每一层的房间之间有持续的视觉连接。
在室内空间中使用的木材由其他天然材料补充,包括固定壁炉的石头。
“使用木材和温暖的材料是一个灵感的决定,创造一个斯堪的纳维亚式的室内环境,”建筑师补充说。
光和物质的平衡,如石头、木头和白色的表面,是把一切结合在一起的决定性因素。
在夏季的几个月里,壁炉可以用作烧烤,可以通过滑动门从一个与客厅和厨房相连的露台上进入。
露台有一个就餐区和一个小游泳池,把阳光反射到屋内的天花板上。
Oyo是开放Y办公室的缩写。工作室由建筑师EddySoete,Nigel Jooren,Veroniek Vanhaecke和Lies Willaert领导。
摄影由托马斯·德·布鲁恩拍摄。
就像Facebook上的Dezeen最新的建筑、室内和设计新闻
项目贷项:
建筑师:OYO建筑师结构工程师:JanVersieck
站点计划-单击以获得更大的图像
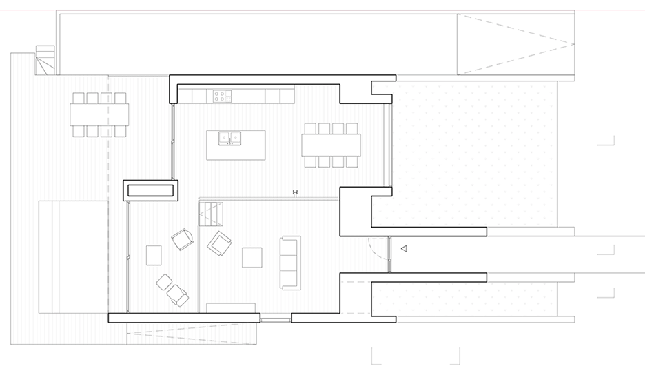
底层平面图-点击获取更大的图像
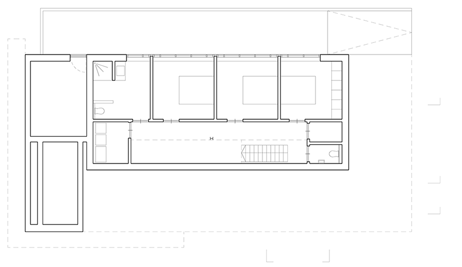
一楼平面图-点击以获取更大的图像
截面1-点击更大的图像
横断面2-点击更大的图像
长段单击一次以获得更大的图像
长节两次点击以获得更大的图像
长节三次点击以获得更大的图像
客服
消息
收藏
下载
最近





















