查看完整案例


收藏

下载
架构师提供的文本描述。多米酒店高级首尔加罗苏吉尔酒店正在前往Garosugil的路上,那里是著名的时尚街。Garosugil是首尔江南的一个有代表性的景点,著名的时装精品店和咖啡馆坐落在长条林立的街道上的低矮建筑中。(鼓掌)
Text description provided by the architects. Dormy Inn Premium Seoul Garosugil Hotel is on the way into Garosugil which is famous as a fashion street. Garosugil is a representative attraction area of Seoul Gangnam, famous for fashion boutiques and cafes in low-rise buildings along the long tree-lined streets.
© Kim Teck Woo
.Kim Teck Woo
它的南侧面对江南地区的商业区,穿过一条50米宽的林荫大道,北侧由低矮建筑中的商业区组成,可以俯瞰汉江。(鼓掌)
Its southern side is facing the business quarter of Gangnam area across a 50m-wide boulevard, and its northern side consists of commercial district in low-rise buildings with an open view toward Han River.
© Kim Teck Woo
.Kim Teck Woo
在一开始,计划作为一个15层的社区生活设施,重点是诊所设施,它正在建设中的地下室。在酒店的设计变更得到确认后,PlanEarth建筑师开始负责建筑设计,并于2015年初完成了施工。
In the beginning, planned as a neighborhood living facility with 15 stories focused to clinic facility, it was under construction for basement. After the design change to a hotel was confirmed, Planearth Architects took charge in architecture design and completed the construction in early 2015.
© Kim Teck Woo
.Kim Teck Woo
根据商业区的性质,一个典型的建筑,以中央走廊为中心,按照建筑物的界线,充分利用地段的覆盖范围,必然成为后街独有的建筑,因此,在大多数情况下,前后街之间的分隔是不可避免的。
By the nature of Commercial area, a typical architecture with central corridor in a full usage of lot coverage according to the building line cannot but become exclusive for back side street and, in most cases, the severance between front and back side street is accordingly unavoidable.
© Kim Teck Woo
.Kim Teck Woo
当我们把它的用途改为酒店设施时,我们建议的第一件事,是在建筑物左边的空间外,新建一条行人通道,将前街与后商业街连接起来,使之成为一条在建筑物之间自然形成的小巷,让人们经常经过,而不是简单地将一条通道连接到另一条。这不仅使酒店的任务成为可能,而且使普通的过路人能够直接进入后步行街,而不需要在林荫大道上绕道很长的路,并将酒店的凹空位置定位为地下地板的通风和天窗,以及人行横道一侧后方商店的出口,这使得连接酒店餐厅成为可能,酒店桑拿和后面商店的出口。
When changing its use to hotel facility, the first thing we proposed was to construct newly a pedestrian passage out of the space spared from the left side of the building. By installing a pedestrian passage connecting the front street and the rear shopping street in order to make it an alley naturally created between buildings where people pass by frequently rather than a passage concept simply connecting one point to another, this makes it possible not only for hotel quests but also for normal passers-by to access directly the rear pedestrian street without making a long detour through the boulevard, and by locating the hotel sunken space for the ventilation and skylight of the underground floor and the exit of the rear shops at the pedestrian passage side, it makes it possible to connect the hotel restaurants, hotel sauna and the exit of the rear shops.
© Kim Teck Woo
.Kim Teck Woo
此外,在立面设计上,三层表皮表示树木的长队,树木和树枝所形成的阴影被重叠,以象征酒店所在地加罗苏吉尔一带的树木长队。(鼓掌)
In addition, for facade design, three skins expressing long queues of trees, the shadow made by the trees and their branches are overlapped in order to symbolize the long queues of trees along Garosugil where the hotel is located.
黑色色调中重叠的石材所形成的投影表面的差异,以白色色调代表树木和树枝,在幕墙背景下不规则地排列为暗蓝色色调,这是影子的隐喻,产生了深深的阴影,忠实地实现了透视的感觉。
The difference of the projected surfaces made by overlapping stone material in a black tone that represents trees and branches in a white tone, irregularly arrayed against the background of curtain wall in a dark blue tone which is a metaphor of shadow, creates a deep shadow and realizes faithfully the feeling of perspective.
© Kim Teck Woo
.Kim Teck Woo
采用700 mm、700 mm、800 mm和900 mm窗宽、疏散最低要求的各种模块,设计了黑色色调的石材。
The stone material in a black tone was designed applying various modules with width of windows from 700mm, minimum requirement for evacuation, to 650mm, 700mm, 800mm and 900mm.
以这种方式设计的立面可能成为一个吸引人的路标,同时也被认为是每个人的加罗苏吉尔的象征,包括寻找出路的旅行者和经常经过这一地区的居民。
The façade designed in such way may became an attractive signpost and, at the same time, recognized as a symbol of Garosugil for everyone including travelers finding their way out and residents frequently passing by this area.
© Kim Teck Woo
.Kim Teck Woo
多美酒店是日本商务连锁酒店的第一家韩国分店,拥有215间客房和辅助设施,如市中心桑拿设施,这是多米酒店的特色之一,这是一家以早餐为主的餐厅,提供日式家常菜和顶层的天空休息室。
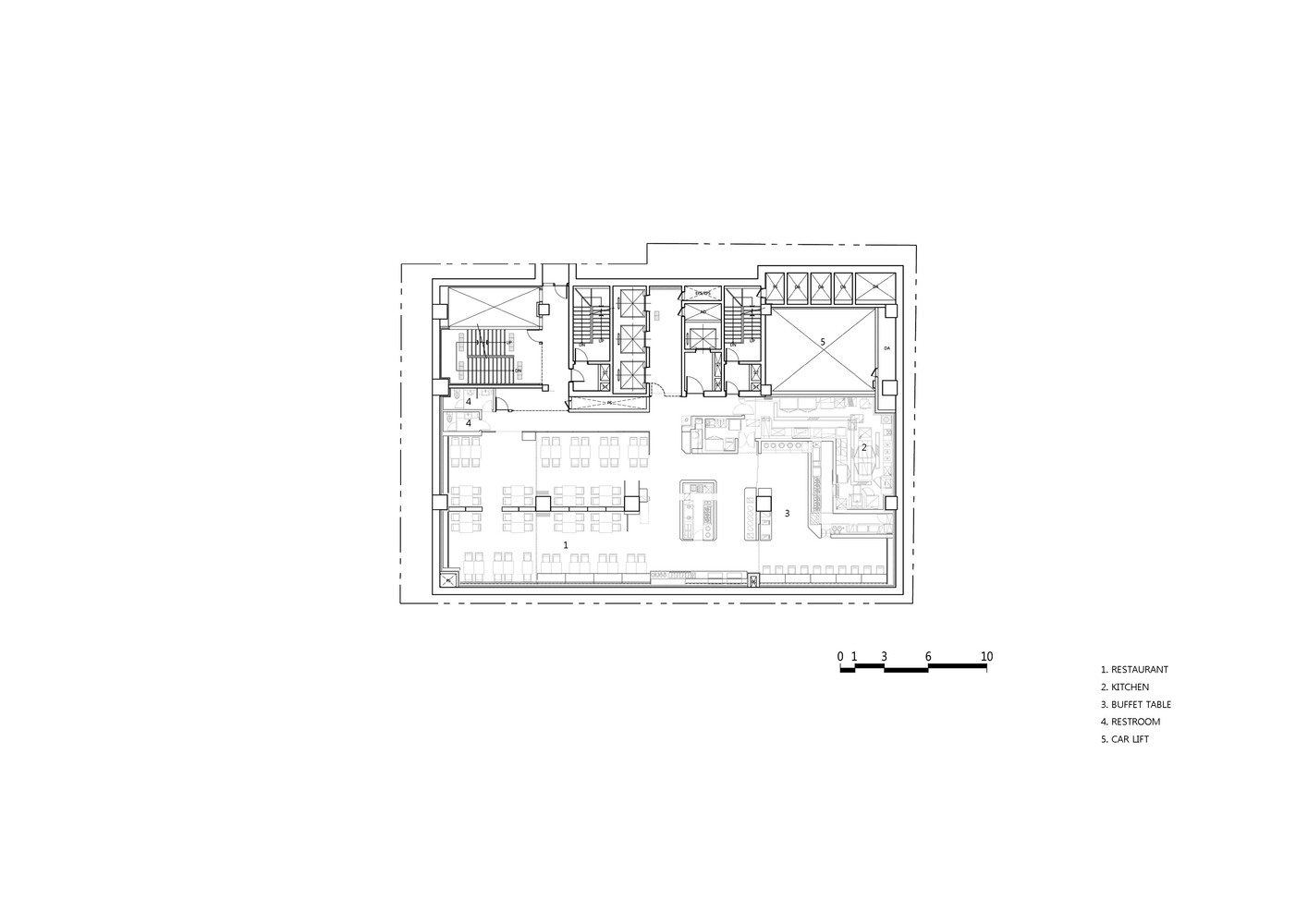
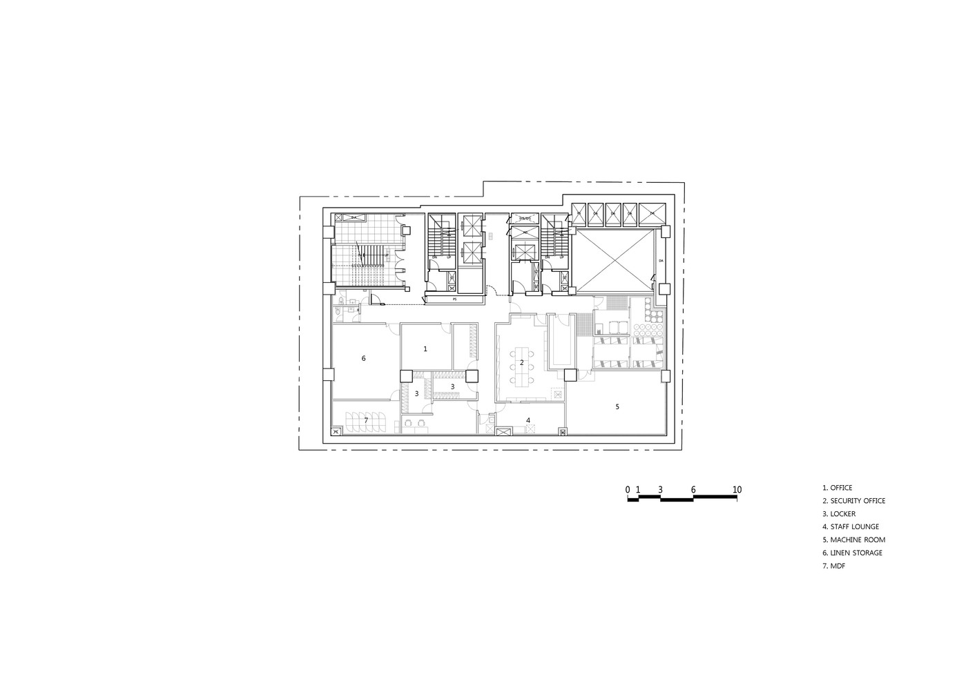
Dormy Inn Premium Seoul Garosugil Hotel, the first Korean branch of Japanese business hotel chain, has 215 guest rooms and auxiliary facilities such as downtown sauna facility which is a special feature of Dormy Inn Hotel, a restaurant mainly for breakfast serving Japanese home-style cooking and a sky lounge at the top floor.
这家酒店是一座地下6层,地面以上17层的建筑,总建筑面积为9,949.48m2。
This hotel is a building with 6 stories below and 17 above the ground, and its total floor area is 9,949.48m2.
© Kim Teck Woo
.Kim Teck Woo
酒店的基本室内设计由日本Ilya公司根据多米酒店的设施标准收费。
The basic interior design of the hotel was charged by ILYA Corporation in Japan according to the facility standard of Dormy Inn Hotel.
客服
消息
收藏
下载
最近




































