查看完整案例


收藏

下载
这座位于伦敦北部的前议会拥有的房子的内部已经由当地的建筑师工作室进行了现代化的改造,以创造出更明亮的空间,带有五颜六色的口音(幻灯片)。
大主教们以前在城市的其他地方改建了一座20世纪60年代的梯田房屋,他们的任务是翻修一处典型的1970年代街区的一处房产,为一对夫妇建造一个现代化的住宅。
“这套公寓被买下来时,状况很差,很不适合居住,”大本营的约翰·海布希曼(Johan Hybschmann)告诉Dezeen。
“这些空间装有破旧的、不吸引人的材料,并被布置成一系列互不相连的小房间。这个项目一开始是彻底拆除和拆除的.“
对房屋的外部进行了最低限度的干预,以符合租赁协议有关的规划限制。
新的窗户,前门,黑色的篱笆和门廊,使财产更加现代的外观,而不破坏建筑物的整体美学。
“有了这种类型的建筑,对我们来说,这个项目实际上是要看到室内空间的潜力,而不是普通和丑陋的外表,”Hybschmann补充说。
“唯一的重大变化是新的击剑,它的设计是为了在一个背景下生长一个绿色的花园房间。”
内部,现有的开口扩大,以改善间的视觉联系,让更多的日光。建筑师们给这个项目取名为Peek House,提到了“通过这种改变的内部景观获得一瞥的想法”。
木质楼梯被剥离回来,用黑色染料染色,与白色的墙壁形成鲜明的对比。一个生动的绿松石框架衬里的顶层着陆注入了一些颜色,否则单色空间。
海布希曼解释说:“颜色的区域被设计成与光的内部形成鲜明对比。”“突出显示的元素也可以通过内部窗口作为参照点。”
一个定制扶手和栏杆由厚厚的硬木钉和黄铜棒,增加了一个更温暖的色调流通地区,而大理石精细介绍了微妙的纹理细节。
楼梯的底部是一个入口走廊,地板上铺着凉棚垫,储藏室的门上盖着石板板。
楼梯旁边的洗手间的门被涂成灰色,也用于其他门、窗框和储藏室。
在一楼,一层浅色的木地板从楼梯的一边的客厅延伸到厨房和餐厅的另一边。一个白色的大理石工作桌面和飞溅的背延伸沿厨房的墙壁,餐厅包括一个内置的角落长椅顶上一层橡胶。
餐桌的钢框架被漆成黄黄色,以增加另一击生机勃勃的颜色和一个超蓝色的阴影是适用于高厨房单位对面的楼梯。
在上一层,天花板被拆除,以暴露萝卜,并有助于创造一个宽敞的感觉,在两个卧室和小浴室。
浴室里满是天窗发出的自然光。瓷砖和科里安水槽的表面主要是白色的,与有斑点的大理石水磨石地板形成对比。
摄影是用法语拍摄的
爆炸轴测图-点击以获得更大的图像
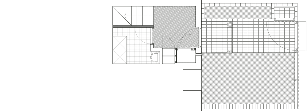
底层平面图-点击获取更大的图像
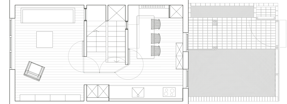
一楼平面图-点击以获取更大的图像
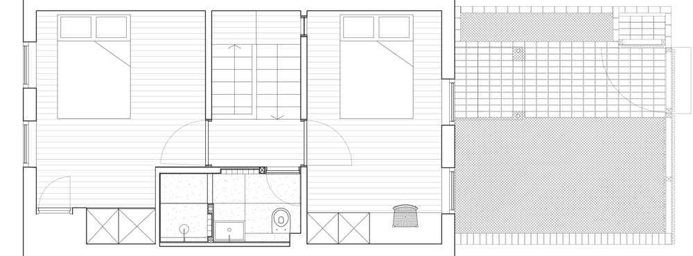
二楼平面图-点击以获取更大的图像
客服
消息
收藏
下载
最近


















