查看完整案例


收藏

下载
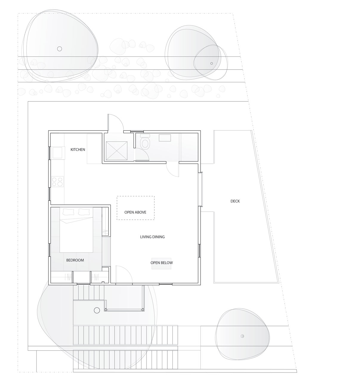
最初建于1922,这座面积600平方英尺的小房子位于洛杉矶华盛顿山附近,后来在2010被取消赎回权。其糟糕的布局和条件,要求童年奇迹的树屋启发装修由冯氏建筑师。
内部得到了一个新的布局与空缺,现在作为门户进入额外的空间。地板在不同的楼层,你可以坐在上面。有个隐蔽的地下室被一个地板舱口打开了。
一个小阁楼可以通过梯子到达,还有一个天窗可以用来凝视星空,让光线进入空间。
通往露台的门上覆盖着波纹聚碳酸酯,这提供了隐私,同时让光线通过。它是在水力学的帮助下开启的。当门打开时,它为露台提供掩护。
在…之前:
分享这篇文章分享Tweet Pin提交
客服
消息
收藏
下载
最近



















