查看完整案例


收藏

下载
架构师提供的文本描述。房屋翻新
Text description provided by the architects. House renovation
这个项目涉及八十年代钢筋混凝土建筑一部分的改造。这个项目的理念是创造一个多功能的空间,在这个空间里,浴室的元素似乎是一个小小的起居室,是建筑构图的核心。
This project concerns the renovation of a part of a reinforced concrete building of the eighties. The project idea is to create a multifunctional space where the bathroom element, which seems to be a little living room, is central to the architectural composition.
Axonometry
组织和实用是改造的关键词,所有的空间都是均匀相连的,使用同样的材料(木材、灰色、玻璃、镜子)有助于创造一种统一的感觉。木材MDU家具解决方案,完全由LdA.iMdA设计,是战略性的证明,即使是一个正确的室内设计的小公寓是美好的生活和看到。
Organization and practicality are the keywords of the renovation, all spaces are homogeneously interconnected, the use of the same materials (wood, grey colour, glass, mirrors)helps to create a sense of uniformity. The wood MDU furnishings solutions, entirely designed by LdA.iMdA design, are strategic in demonstrating that even a small apartment with the right interior design is nice to live and see.
Courtesy of LDA.iMdA associated architects
由LDA.iMdA相关建筑师提供
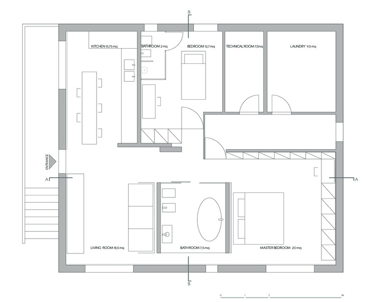
Floor Plan
Courtesy of LDA.iMdA associated architects
由LDA.iMdA相关建筑师提供
客服
消息
收藏
下载
最近























