查看完整案例


收藏

下载
© Yuko Tada
(Tada幸子)
架构师提供的文本描述。“龙腾馆”是一幢两层楼高的独栋住宅。这所房子坐落在一个安静和放松的居住区,有着美妙的景色和自然环境。
Text description provided by the architects. The “ROKUTENGOKEN-DO” is two-storey single family home. This house is sited in a quiet and relaxing residential area and has wonderful views and the natural surroundings.
© Yuko Tada
(Tada幸子)
“我喜欢有山墙屋顶的房子。屋顶一定是山墙!”这是业主的要求,很容易回答,因为我设计了许多门廊屋顶在我以前的项目。
"I like the house with a gable roof. The roof must be gable!" It was the request from the owner and was easily answered as I designed many gabled roofs in my previous projects.
© Yuko Tada
(Tada幸子)
我一直认为要看上去漂亮,山墙应该有一条简单的直线。这就是为什么需要一个简单的直线计划。
I always think that to look beautiful the gable should has a simple straight line. That’s why a simple and rectilinear plan is needed.
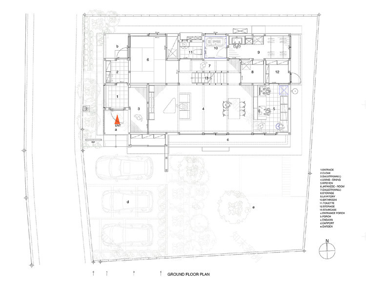
ROKUTENGOKEN-简单地说,这是一个中等大小的门式建筑,有一个黑色的金属屋顶。屋顶缓缓倾斜以适应调制,在此范围内,深屋檐延伸并提供遮阳。线形和深屋顶屋檐将在墙上投下阴影。房子的外部是一个简单的结构组成,包括金属屋顶,黑色漆雪松壁板,白色油漆灰泥,这是水平分层。
ROKUTENGOKEN-DO is simply put, a modest sized gabled building with a jet black metal roof. The roof slopes gently to accommodate the modulation, beyond which deep eaves extend and provide sun-shading. The linear and deep roof eaves will cast a shadow on the wall. The exterior of the house is a simple composition of textures, including of metal roof, black painted cedar siding, white painted plaster, which are layered horizontally.
© Yuko Tada
(Tada幸子)
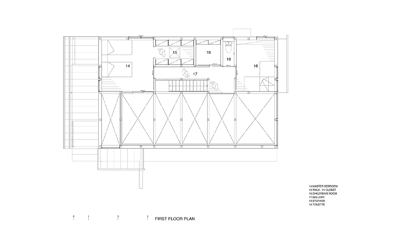
木料被选为房屋的主要建筑材料。木料是日本的传统建筑。该设计体现了日本的传统、思想和美感,强调了结构的美:屋顶梁,柱子垂直,横梁。楼梯为骨架型,是考虑线性和木结构而设计的。
Wooden timbers were chosen as the main construction material for the house. The wooden timber is a Japanese traditional structure. The design reflects Japanese tradition, thoughts and esthetic sense and emphasises the structural beauty; beams of the roof, vertical of pillars, horizontal of beams. The staircase is skeleton type that is designed in consideration of the linearity and the timber structure.
© Yuko Tada
(Tada幸子)
内部是非常令人印象深刻的对比深褐色的地板,白色的墙壁,黑色的天花板和木材。地板是亚洲胡桃木的人字形木。对线条的组成以及颜色的分布都进行了深入的考虑,以使内部更加完美。
The interior is extremely impressive contrast of dark brown floor, white wall, black ceiling and timbers. The floor is a herringbone of Asian Walnut timber. The composition of the lines is considered deeply as well as the distribution of the colours to perfect the interior.
© Yuko Tada
(Tada幸子)
Architects MTKarchitects
Location Matsumoto, Japan
Category Houses
Architect in Charge Akira Metoki
Area 128.59 sqm
Project Year 2015
Photographs Yuko Tada
客服
消息
收藏
下载
最近

























