查看完整案例

收藏

下载
© John Lewin Marshall
约翰·莱文·马歇尔
架构师提供的文本描述。文化公园城堡的设计是基于对古罗马城堡 (堡垒) 的建筑和景观的解释,代表了荷兰一个重要的、独特的文化遗产。它包括剧院、餐厅、博物馆、环境/可持续性中心、活动庭院和用于社区方案的户外区域。(鼓掌)
Text description provided by the architects. The design for the Cultural Park Castellum Hoge Woerd is based on an architectural and landscape interpretation of an ancient Roman Castellum (fort), and represents an important – and unique – cultural heritage site in the Netherlands. It includes a theatre, restaurant, museum, environmental/sustainability centre, courtyard for events, and an outdoor area used for community programs.
© John Lewin Marshall
约翰·莱文·马歇尔
下日耳曼石灰,曾经是罗马帝国的边界,是一条考古学线,沿着莱茵河延伸到莱茵河之间的莱茵河,位于莱茵兰-- 帕拉茨和老莱茵河口的卡特维克。下日耳曼石灰是欧洲石灰的一部分:从苏格兰的安东宁墙到罗马尼亚的黑海,这些考古遗址被拉长,这曾经形成了一个统一的军事体系。石灰也被称为欧洲最大的考古纪念碑。
The Lower Germanic Limes, once the border of the Roman Empire, is an archaeological line that stretches along the Rhine between Finxbach in Rhineland-Palatinate and the mouth of the Old Rhine at Katwijk. The Lower Germanic Limes are part of the European Limes: an elongated collection of archaeological sites running from the Antonine Wall in Scotland to the Black Sea in Romania, which once formed a single coherent military system. The Limes are also known as the largest archaeological monument of Europe.
© John Lewin Marshall
约翰·莱文·马歇尔
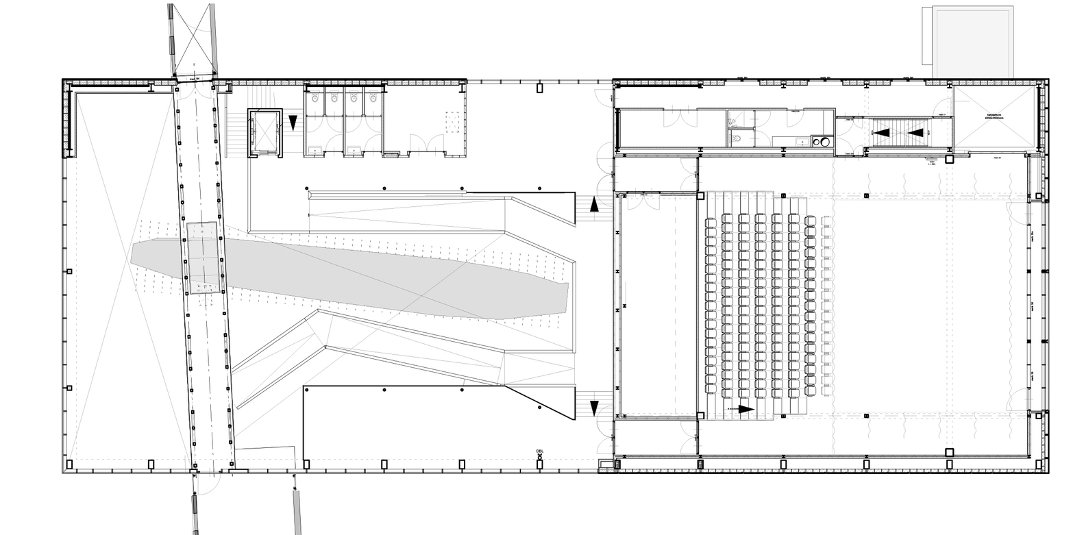
Ground Floor Plan
© John Lewin Marshall
约翰·莱文·马歇尔
城堡建在罗马堡垒遗迹的轮廓之上。这些建筑受到保护,被视为一座考古纪念碑,通过用一座新建筑来定义它们,公众可以洞察荷兰罗马帝国的边界-- “石灰”-- 的生活。
The Castellum is built right on top of the contours of the remains of a Roman fortress. These are protected and viewed as an archaeological monument, and by defining them with a new building, the public can gain insight into life at the border of the Roman Empire – the ‘Limes’ – in the Netherlands. © John Lewin Marshall
约翰·莱文·马歇尔
虽然荷兰其他地方的考古遗址通常仍隐藏在地表之下,但在这里,该遗址对公众来说是令人振奋的、引人入胜的和有形的。城堡也有助于 Leidsche Rijn 的身份,这是自 2006 年以来荷兰最大的住宅建筑工地。
While archaeological sites elsewhere in the Netherlands usually remain hidden beneath the surface, here the site is stimulating, engaging and tangible for the public. The Castellum also contributes to the identity of the Leidsche Rijn,the largest residential construction site in the Netherlands since 2006. © Sven Eric Panjer C.Sven Eric Panje
这个建筑群有两个决定性的元素:沿着老要塞轮廓的“墙”和打破这条防线的亭子。
The complex has two defining elements: the ‘walls’ that follow the contour of the old fortress and the pavilion that breaks this defensive line.
这座堡垒建在一座考古纪念碑上,就在 2000 年前,那里有一座城堡。地面在高度上有很大的差异:霍格·沃德的意思是“一只天然的德雷克”。然而,地板是在一个单一的水平,“墙”有 5.5 米宽,可用于不同的活动。墙的高度从 4.5 米到 6 米不等。正面是用木头做的,就像一座古老的堡垒,但是有一个现代的系统,由一个清晰的钢架和木制的石板组成。该系统适用于内部和外部。有四个门,高 10 米。
The fort was built on an archaeological monument, right where 2000 years ago there was a Castellum. The ground has substantial differences in height:Hoge Woerdmeans “a natural drake”. However, the floor is on a single level.The ‘walls’ are 5.5 meters wide, and can be used for different activities. The height of the walls ranges from 4.5 to 6 meters. The facades are made out of wood, just like an ancient fort but with a contemporary system, consisting of a clear grid of steel frames with wooden slats. This system is applied both on the inside and outside. There are four entrance gates with a height of 10 meters.
© John Lewin Marshall
约翰·莱文·马歇尔
偏离传统的蜂窝可以在新增的展馆建筑中找到。这一增加的原因是希望为 Meern 1 号找到一个空间,这是一艘完整的两千年前罗马船,在 Leidsche Rijn 的发展过程中被发现和挖掘。展馆也是为 250 名游客提供现代化礼堂的最佳解决方案。展馆的建筑穿过了城堡的墙壁,它代表了穿过堡垒的唯一元素,也为庭院提供了一个视野。展馆的正面由图案的铝板组成,参考了这个地方的历史。
Deviation from a traditional Castellum can be found in the added pavilion building. The reason for this addition lies in the desire to find a space for the Meern 1, a completely intact two thousand year old Roman ship, found and excavated during the development of the Leidsche Rijn. The pavilion is also the best solution to provide a modern auditorium for 250 visitors. The pavilion building cuts through the walls of the Castellum and it represents the only element that crosses the fort and provides a view to the courtyard. The facades of the pavilion consist of patterned aluminium panels, making reference to the history of the place.
Ground Floor
在展馆内部,功能是结合在一起的。剧院的门厅与餐厅合并,为罗马船提供了展览空间。这艘船躺在玻璃板上,人们可以在它周围读到它的历史。
Inside the pavilion, functions are combined. The foyer of the theatre merges with the restaurant and provides an exhibition space for the Roman ship. The ship lies on top of glass sheets and around it people can read about its history.
© Sven Eric Panjer
C.Sven Eric Panje
古迹委员会已就在这些宝贵的考古基础上建造建筑物,制订了明确的标准。其中一项规定,地面可压缩约 10 厘米。为达到这一目的,在蜂窝中,使用 2 米深的砂层压缩和准备地下,然后拆除一米,其余一米路堤用于地基条和管道。这是为了防止对考古基材的破坏。几乎整个建筑群都建在沙子上,除了展馆一楼的剧院外,没有桩基。这里使用四组基桩,从而使展馆有一个混合地基。
The Monuments Commission have established clear criteria regarding building on such valuable archaeological ground. One of these provides that the ground can be compressed by approximately 10 cm. To achieve this at the Castellum, a 2 meters deep sand layer was used to compress and prepare the underground. One meter was then removed, and the remaining one-meter embankment was used for the foundation strips and for the piping. This is to prevent damage to the archaeological substrate. Almost the entire complex is built on sand, without a pile foundation with the exception of the theatre on the first floor of the pavilion. Here four clusters of foundation piles are used, thus giving the pavilion a hybrid foundation.
在城堡的入口处有一个非正式的广场,旧浴室的位置以草和皮质钢为标志。堡垒周围是沟渠,风景中的草坡表示旧莱茵河曾经流淌的地方。
At the entrance side of the Castellum there is an informal square where the location of the old bathhouse is marked with grass and cortex steel.The fort is surrounded by ditches, and grass slopes in the landscape indicate place where the Old Rhine used to flow.
© John Lewin Marshall
约翰·莱文·马歇尔
院子是一片开阔的草地。古罗马的道路像十字架一样穿过地形,延伸到城门。游客可以自由解释和使用室内空间,这提供了一个安全的气氛,草坪周围有一个 6 米高的木制堡垒。
The courtyard is an open grass field. The ancient Roman roads run like a cross through the terrain and extend through the gates. Visitors are free to interpret and use the inside space, which provides a safe atmosphere, a lawn surrounded by a six meter high wooden fort. © John Lewin Marshall
约翰·莱文·马歇尔
在建筑物的东侧,有一个开放的社区活动场地。有许多不同的花园有不同的用途。为了方便这些活动:一个摊位,一个储藏室,一个养蜂场和一个温室。这些建筑在材料和在国家的有趣的定位方面形成了一个整体,并代表了蜂窝综合体的附加价值。
On the east side of the building, there is an open field for community activities. There are many different gardens with different purposes. To facilitate those activities: a stall, a storage, a apiary and a greenhouse. These buildings form an ensemble in terms of materials and playful positioning in the country, and represent an added value to the Castellum complex.
除了负责建筑工作外,还负责室内设计,并担任博物馆展览设计的主管。这座建筑的设计结合了许多不同的观点,其中各个学科之间的合作是必不可少的。建筑师在确保这一点方面发挥了指导和指导作用。
SKETS, in addition to conducting the architectural work, was also responsible for the design of the interior and acted as a supervisor in the design of the museum exhibition. The building is designed by bringing together a number of different perspectives, where the cooperation between the various disciplines is essential. The architects played a directing and guiding role in ensuring this.
© Sven Eric Panjer
C.Sven Eric Panje
Architects SKETS architectuurstudio
Location Woerdlaan 1, 3454 VH Utrecht, Netherlands
Category Exhibition Center
Architect in Charge SKETS architectuurstudio
Area 23934.0 m2Project Year 2015
Photographs John Lewin Marshall, Sven Eric Panjer
客服
消息
收藏
下载
最近



























