查看完整案例


收藏

下载
架构师提供的文本描述。这个架构是为我的客户琳达·斯塔克曼(LindaStarkman)创建的,她是一名马女,以福克斯·霍洛(Fox Hollow)在盖房子之前,她已经拥有了25年的房产。(鼓掌)
Text description provided by the architects. The architecture was created for my client Linda Starkman, a horse women, and is named after the site known as Fox Hollow. She had owned the property for 25 years before building her home.
© John Durant
(约翰·杜兰特)
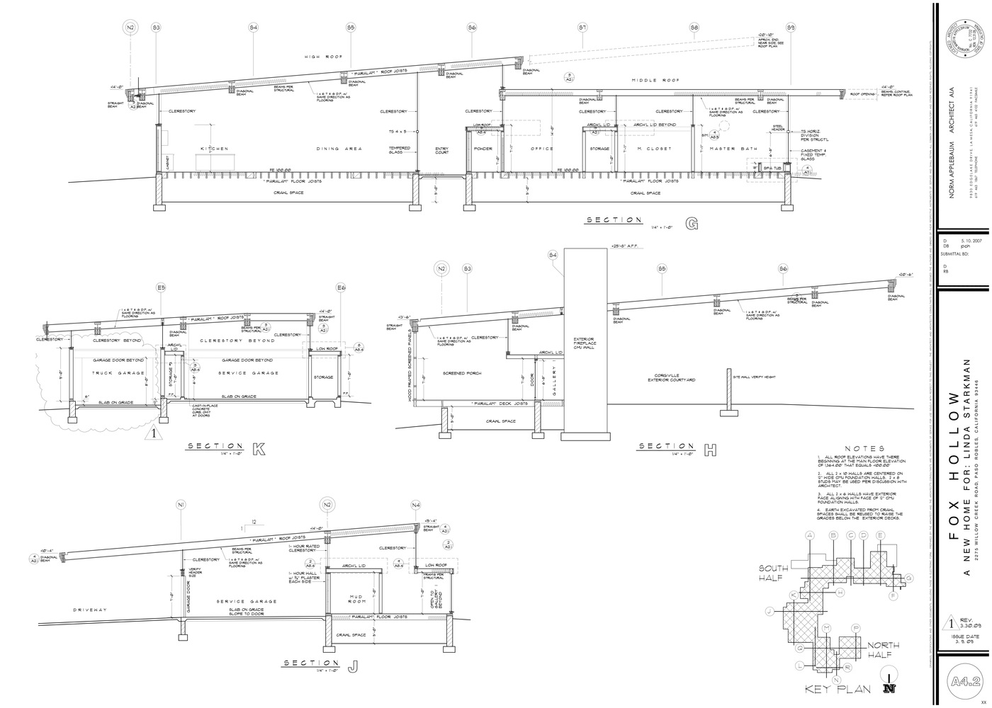
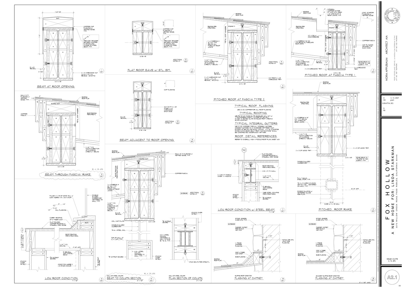
该住宅于2015年完工,花了5年时间设计和建造,主要悬垂悬挑在25‘到75’之间。混凝土用于屋顶,以控制风速高达85英里/小时。结构是钢柱和钢梁,钢I梁27英寸高,重227磅每线脚。
Completed in 2015 the home took 5 years to design and construct with major overhangs cantilevering out 25' to 75'. Concrete is used for the roof in order to control wind loads of up to 85 mph. The structure is steel post and beam with steel I beams 27 inches high, weighting 227 pounds per lineal foot.
房子的面积为4357平方英尺,由3棵古老的多树干橡树编织而成。房子的位置是一棵树覆盖的小丘,这是320英亩的地方的一部分,那里饲养着热血马,饲养着牲畜。地点在加利福尼亚州帕索·罗布尔斯的西侧。
The square footage of the house is 4,357 square feet and is woven amongst 3 ancient multi-trunked oak trees. The location of the house is a tree covered knoll which is part of a 320 acre site where warmblood horses are raised and feed is grown. The location is on the west side of Paso Robles, California.
© John Durant
(约翰·杜兰特)
所有的美术,铅玻璃,精细的细节和铁工作是由诺姆阿普鲍姆建筑师。
All fine art, leaded glass, fine details and iron work are by Norm Applebaum Architect.
© John Durant
(约翰·杜兰特)
Architects Norm Applebaum
Location Paso Robles, United States
Category Houses
Area 490.0 sqm
Project Year 2015
客服
消息
收藏
下载
最近

















