查看完整案例


收藏

下载
© Vu Ngoc Ha – AIF Studio
Vu Ngoc Ha-AIF演播室
架构师提供的文本描述。在河内的一条小巷里,一栋45,6平米的旧房子被翻新了。该房屋设计有多层舒缓空间,以利用自然光和通风保证。最重要的是,空间功能的不断转变将促进家庭成员的活动,从而使家庭中人与人之间的互动更加容易。CNHouse是以内向的风格设计的,因为房子的外观被翻新,以缓和来自东方的光线。
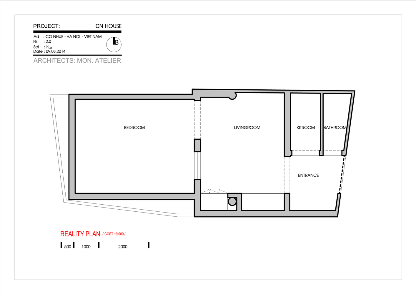
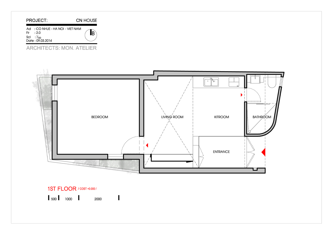
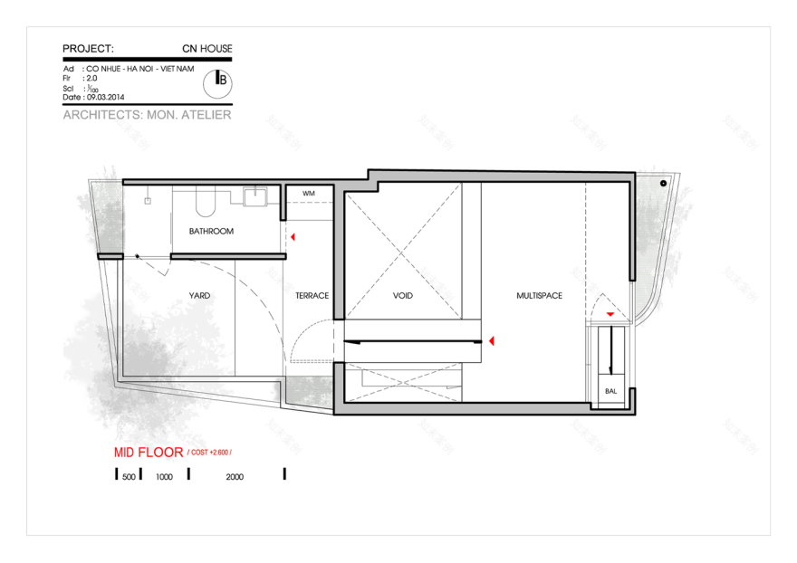
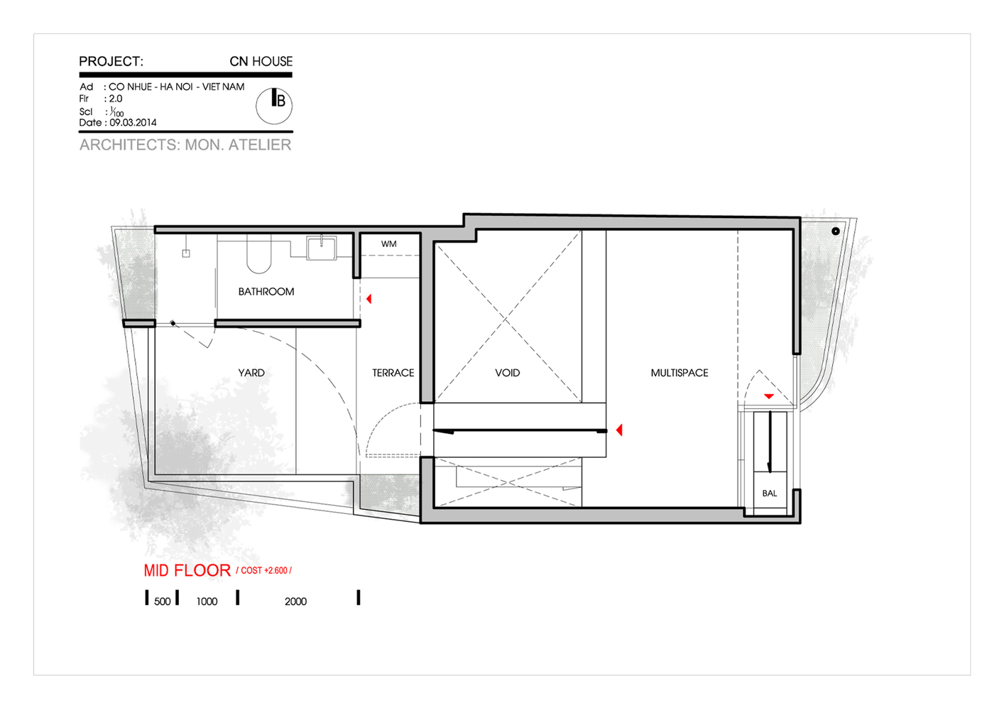
Text description provided by the architects. CN House was renovated from a 45,6 square meter old house in a small alley in Co Nhue - Hanoi. The house is designed with multiple layers of soothing space to take advantage of natural light and ventilation ensured. Most important is that the space function has been continuously transformed will facilitate family members’ activities whereby the interaction between people in the house were easier. CN House is designed in introverted style as the façade of the house is renovated to moderate the light from the east.
© Vu Ngoc Ha – AIF Studio
Vu Ngoc Ha-AIF演播室
© Vu Ngoc Ha – AIF Studio
Vu Ngoc Ha-AIF演播室
房子的大门也被推后到更深的地方,以创造一个缓冲,以避免不必要的碰撞,通过车辆,以及一个保护层隔开木门与外部气候,因为事实上,乡村的气候有很高的湿度和强烈的阳光。
The main door of the house was also pushed back deeper in order to create a buffer around to avoid unnecessary collisions by passing vehicles, as well a protective layer separating wooden door with external climate given the fact is that the country climate has high humidity and intense sun.
© Vu Ngoc Ha – AIF Studio
Vu Ngoc Ha-AIF演播室
立面的大窗户是设计的,里面有一个小木楼梯,给许多过路人带来了兴奋和好奇的感觉。从技术和美观的角度对排水管等小细节进行了细致的处理。从环境条件和业主的生活方式来看,这座房子看起来很随意,安静,但没有破碎的景观。
The large window in the facade was designed with a small wooden staircase inside bring the feeling of excitement and curiosity for many passers-by. Small detail such as drainage pipe is handled carefully in term of in techniques and aesthetics. From the conditions of the surroundings and lifestyle of the owner, the house has a casual look, quiet but not broken landscape of the region.
© Vu Ngoc Ha – AIF Studio
Vu Ngoc Ha-AIF演播室
Architects MON Atelier Architecture
Location Hanoi, Vietnam
Category Renovation
Architect in Charge Phung Manh Toan
Project Year 2016
Photographs Vu Ngoc Ha – AIF Studio
客服
消息
收藏
下载
最近



















