查看完整案例


收藏

下载
© Fernando Guerra | FG+SG
费尔南多·格拉
架构师提供的文本描述。这所房子位于50年代早期的住宅区,更确切地说是在西边,在雷斯特洛商业街附近,一个被围住的购买梯田房屋的区域。
Text description provided by the architects. This house is located in an early 50´s residential neighborhood, more precisely at the western edge, in an area surrounded buy terraced houses, near the Restelo shopping street.
© Fernando Guerra | FG+SG
费尔南多·格拉
干预的主要领域是房子的后部,这是完全重新画出来的。寻找与主要外观的对比,我们设想了一个筋膜,打开了一系列的窗户和百叶窗,类似于传统葡萄牙瓷砖的图案。这种模式像皮肤一样过滤太阳光,也保护房子免受入侵者的侵害。
The main area of intervention was the rear part of the house, which was completely redrawn. Searching for a contrast with the main façade, we envisioned a fascia, opened by a series of windows and shutters resembling a pattern of traditional Portuguese tiles. This pattern works like a skin that filters the sun light and also protects the house from intruders.
© Fernando Guerra | FG+SG
费尔南多·格拉
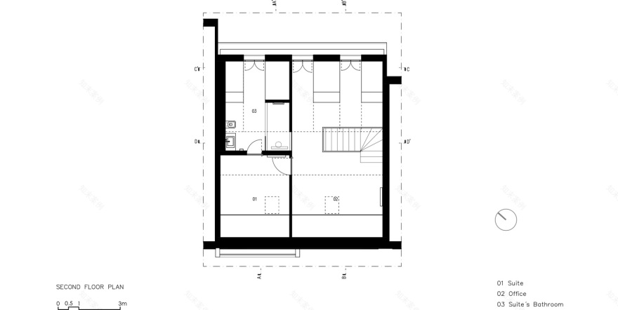
为了给顶层更适宜居住的空间,我们建造了一个有三个开口的曼萨屋顶。
In order to give the top floor more habitable space, we created a mansard roof with three openings.
© Fernando Guerra | FG+SG
费尔南多·格拉
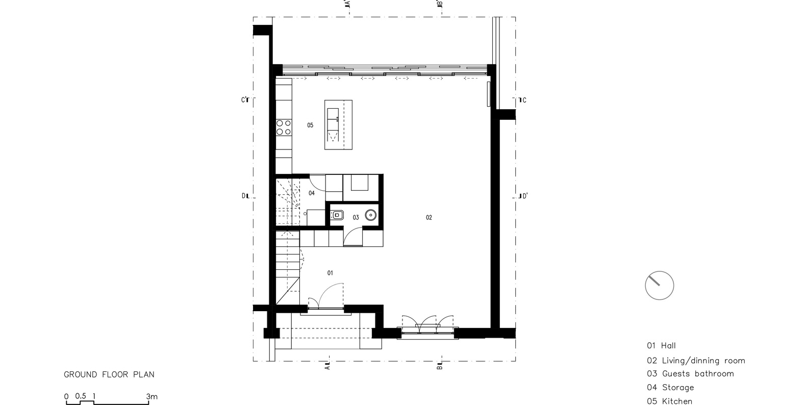
在地面上,我们把一楼改造成一个独特的起居室,把入口、客厅和厨房连接起来。一本白色的书,上面覆盖着排线,它掩盖了一个壁橱、社交厕所和储藏室的面积。这个中央核心也在空间中执行分离。
At the ground level we transformed the ground floor in one unique living area, joining together the entrance, the living room and the kitchen. A white volume coated with grate lines, disguises an area of a closet, social toilet and storage. This central core also performs a separation within spaces.
© Fernando Guerra | FG+SG
费尔南多·格拉
一楼和一楼之间的楼梯靠在整个音量的左边。这样做是为了确保一个优化的生活区以及通往一楼的中央通道。
The staircase between the ground floor and the first floor are leaning on the left side of the entire volume. This was made in order to ensure an optimized living area and also a central passage to the first floor.
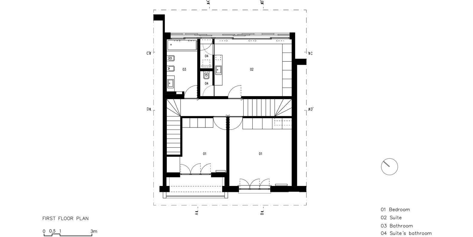
我们计划在一楼的私人区域,其中的房间,包括一套房。为了使这最后的要求成为可能,在我们的区域,我们放置了一个厕所,在床上的空间,也作为一个餐具。至于淋浴间和卫生间,我们把它们合并在玻璃墙后面,稀释了空间的限制,给我们一种更大空间的感觉。
We planned for the first floor the private area, where the rooms are located, including a suite. To make this last request possible, with the areas we had, we placed a lavatory in the bed space that also worked as a sideboard. As for the shower cabin and the toilet, we merged them behind a glass wall, diluting the limits of the space, giving us a feeling of a much greater space.
© Fernando Guerra | FG+SG
费尔南多·格拉
对于阁楼来说,我们理想化了Mansard屋顶,让我们有了更多宜居区域的可能性。风景很好,就在花园,是一个床房,一个厕所和一个办公室。
For the attic we idealized the mansard roof to give us the possibility of more livable area. With great view to the garden, is a bed room, a toilet and an office.
© Fernando Guerra | FG+SG
费尔南多·格拉
Architects João Tiago Aguiar Arquitectos
Location Lisbon, Portugal
Category Refurbishment
Area 225.0 m2
Project Year 2016
Photographs Fernando Guerra | FG+SG
Manufacturers Loading...
客服
消息
收藏
下载
最近


































