查看完整案例


收藏

下载
© 2A Design / Josué Gillet
2A设计/JosuéGillet
架构师提供的文本描述。2A设计最近完成了一个令人惊讶的小型和低成本的房子,在一个小地块,在一个乡村附近的雷恩(法国)。
Text description provided by the architects. 2A Design has recently completed a surprising small and low cost house on a tiny plot, in a rural village next to Rennes (France).
怎样才能把这样的规划安排在街道上方1.50米的一块这么小的土地上呢?怎样才能减少工程的成本和工期呢?这个建筑的预算和建筑地块一样小!这个程序和包裹的配置一样复杂!
How to fit such a program on a so small parcel of land located 1.50m above the street ? How could we reduce the cost and the building period of the project? The budget of this construction is as small as the building plot ! The program is as complex as the configuration of the parcel !
© 2A Design / Josué Gillet
2A设计/JosuéGillet
为了给客户最好的响应,2A设计公司选择用集装箱建造这座房子(B3生态设计理念)。这所房子是在一家工厂里预制好的,然后搬到工地上,大约用了三个月就建成了。容器的尺寸正好与地块的可建区域相吻合!
In order to give the best response to the client, 2A Design chooses to built this house with shipping containers (B3 Ecodesign concept). The house has been prefabricated in a factory then moved on the site and achieved in approximately three months. The container dimensions fits exactly with the buildable zone of the plot !
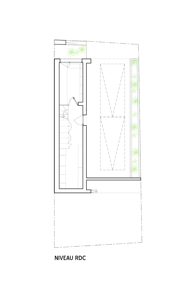
该项目被分成三个层次。每层面积为100平方米。这些不同顺序的叠加构成了房子的形状。现在我们可以在这个小地块上组织一套完整的城市别墅计划。
The project is sliced in 3 levels. Each level is a 100sqm area. The superpostion of those different sequencies shape the house. Now we are able on this little plot to organize a complete program of the desired urban villa.
© 2A Design / Josué Gillet
2A设计/JosuéGillet
第一层,地面一级,更具有技术性:一个可容纳两辆汽车的停车区、有盖的入口和技术室;一间缝纫室和一间洗衣房。
The first level, the ground one , is more technical : one parking zone for two cars, the covered entrance and the technical rooms; a sewing studio and a laundry.
共享的生活在第一层,花园一级。我们可以找到一个舒适的客厅,房子的主房间。这所房子的主要体积有两个玻璃正面。第一张脸在街道上方。这所房子参与了街道的生活。另一张脸,看着小花园,也是完全透明的。
The shared life stand on the first level, the garden one. We can find there a comfortable living room, the main room of the house. The main volume of the house presents two glass facades. The first face is above the street. The house take part in the life of the street. The other face, looking at the small garden, is completely transparent too.
从它的小规模,花园看起来像一个露台,一个没有天花板的私人房间,向天空开放。我们躲在那里不受风和周围景色的影响。然后,您可以享受一个舒适的冷静期庭院!最后一层,是另一个亲密空间。父母的房间在一个大屋顶上被大开着。这个空间是一种日光浴室,也许是房子里最具质感的地方。从那里,你可以欣赏到乡村的自然景观。把别墅的屋顶还给它的居民是在这么小的一块地上提议大户外空间的唯一方法。旅馆里种着树。我们忘记了这房子没有真正的花园。
By its small dimensions, the garden look like a patio, a private room without ceilling, open to the sky. We are there hided from the wind and the views from the neighborhood. You can then enjoy the patio for a comfortable chilling session! The last level, is another intimate space. The parental room is widely openened on a large roof terrasse. This space is a kind of solarium, maybe the most qualitative place of the house. From there, you can enjoy a view from the village to the natural landscape of the country. Giving back the roof of the villa to its inhabitants is the only way to propose large outdoor spaces on a so small plot. The terrasse is althoug planted with trees. We forget then that the house doesn't have a real garden.
© 2A Design / Josué Gillet
2A设计/JosuéGillet
Architects 2A Design
Location Orgères, France
Category Houses
Collaborator Bet HAY (thermic ingenior)
Area 125.0 sqm
Project Year 2015
Photographs 2A Design / Josué Gillet
客服
消息
收藏
下载
最近






















