查看完整案例


收藏

下载
建筑师:混合工作室地点:中国北京年:2014年面积:1.292平方英尺/120平方米。图片来源:夏志,混合工作室描述:
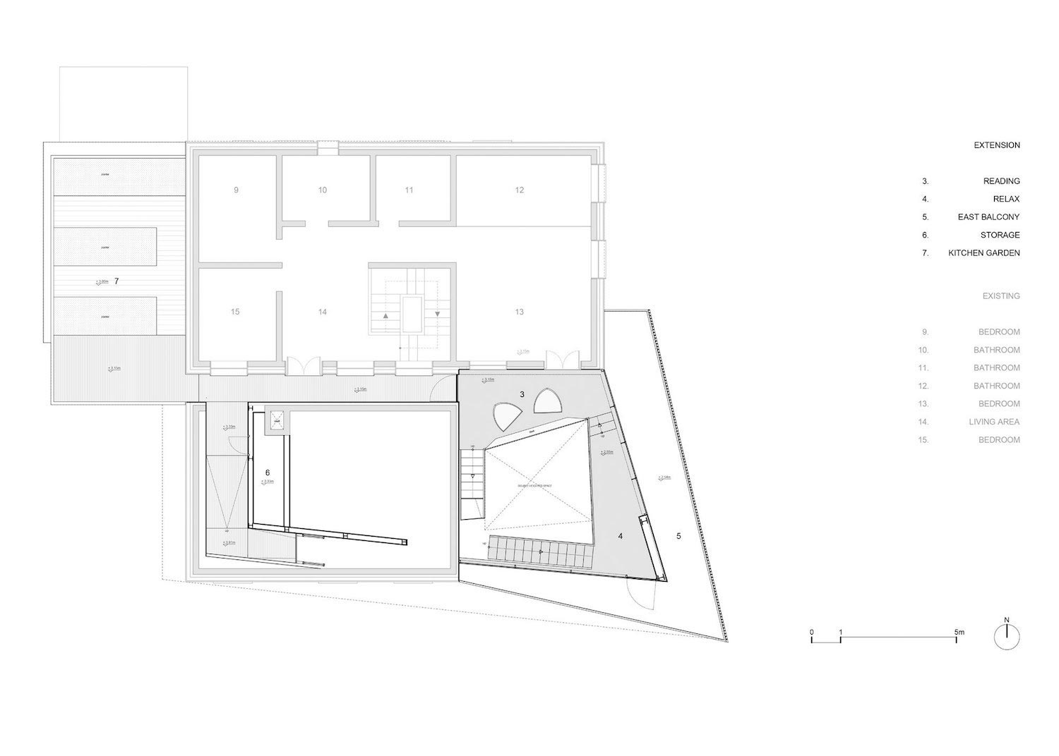
他说:“该计划旨在翻新一幢面积约五百平方米的住宅,原为两层楼及一间地下室,并扩建位于北京顺义的两名编剧及他们的子女的别墅。”最初的客户需求是容量扩张,以适应新的项目,如双高工作室,屋顶露台,厨房花园,投影室,改造现有花园,需要成为建筑物的组成部分。
干预在内部是一个单一模块,内部由不同层次的相互连接组成,其作用是蒙太奇、并置和不同空间尺度和特征的进展。新卷被设计为一种过滤环境和方案因素的装置,一种内部永不隔离的空间结构,从不结束但不断调整连续的标量剖面,通过隐秘的微妙和透明的分层。该空间通过使用有意减少的材料调色板来呈现一个单一的场景。材料目录实际上是由一个轻金属结构,过滤铝百叶窗,控制阴影,透明度和确定的隐私等级,最后是一个金属栅格,结合工作的白色地板和竹子甲板。
这种干预看似一致的性质,实际上是在探索和审查时不断变化的效果的叙述。从花园到顶部,强度的逐渐转变-灯光、材料和颜色的调节-组织了多种效应。虽然在一个宏伟的图解组织中减少了类型和适合,但一系列空间设法在一个被动但经过计算的效应库中进行转换,从而在白天和季节内提升和接收各种不同的光和温度变化条件。
居住者的身体是活生生的演员,在一个瞬间突变效果的白色舞台上扮演,而新卷与其新定义的联系成为家庭生活的身体延伸,满足需求,并迫使在现有房间和新空间之间发生意想不到的空间关系。在各个层次上,一系列的梅扎宁、阳台和屋顶露台都是通过一个连续的循环、内部楼梯的弯曲和外部坡道的弯曲连接在一起的,它们交织在一个玻璃的空间中和周围。最初的结构,由两个白盒组成,然后被转换成一个互相交错和浮动的平台的动态系统,这些平台可以互相俯瞰,并在一个序列中打开,强调内部程序间的相互依赖。
原有的屋顶甲板,原本是闲置的,因为很难到达,然后激活成为一个内在的组成部分,一种自然的延续在更高层次的花园。住宅现有空间的规划分隔被更模糊的活动空间组合所取代,新的双高卷承载着各种活动,如阅读、写作、辩论、预测在不同的层次上自主和一致地进行。
花园也被重新配置成一个完整的计划的一部分,与新的集合互动,以创造一个连贯的空间体验。这种种植策略回应了密集住宅发展中典型的隐私需求:竹子、常春藤和高大的草本植物引入了半透明的屏风来过滤景观。同时,植被组织成不同的层次,使花园的深度最大化。新卷东侧的反射池通过丰富的反射和折射作用将建筑和景观融合在一起。不同的本土植物-社区创造了丰富的自然纹理组合,同时需要最少的维护。“
谢谢你阅读这篇文章!
keywords:Beijing China reMIX Studio
关键词:北京中国混音工作室
客服
消息
收藏
下载
最近






























