查看完整案例

收藏

下载
© Lise Bjelland
.Lise Bjelland
架构师提供的文本描述。这所房子的地块位于一处非常陡峭的地形上,靠近艾希亚滑雪中心的一个滑雪坡。考虑到这里的地理位置和陡峭的地块,人们希望把房子挖掘到景观中去,这样它就可以作为一种与大自然融为一体的元素,无论是冬天还是夏天。从背面看,地形在屋顶上自然延续。同样,侧壁和地形的交汇也被保存、建造和种植,使现代直线以一种令人兴奋的方式找到和谐和向自然环境的过渡。
Text description provided by the architects. The plot for the house is situated on a very steep terrain, near one of the ski-slopes of the Ålsheia ski-center. Given the location and the steep plot it had been desirable that the house be dug into the landscape, so it would act as an element integrated into the nature, both winter and summer. From the backside, the terrain continues naturally over the roof. Likewise, the meeting of the side walls and the terrain is preserved, built up and planted in such a way that the straight modern lines find harmony and transition into the natural surroundings in an exciting way.
由于房子是用混凝土建造的,随着时间的推移,它将得到一个表面沾满了水,自然流过屋顶和侧壁,而这些墙没有建在排水沟里。最后,它也将与苔藓种植,使混凝土将得到相同的颜色调色板与岩石山坡周围的房子。从后面和侧面,房子,经过几年后,变得紧密地融入地形,不太明显。周边地区,包括车道,将以自然景观的形式出现-只有房子里的人造直线玻璃和混凝土才能脱颖而出。
Since the house is built using concrete, it will with time acquire a surface stained with water naturally running over the roof and the side walls, which have no built in gutters. Eventually it will also be grown in with moss, so that the concrete will get the same color palette as the rocky hillside around the house. From the back and the sides the house will, after some years, become integrated snuggly into the terrain and not very visible. The surrounding area, including the driveway, will appear as natural landscape – it will be only the house’s straight man-made lines of glass and concrete that will stand out.
© Lise Bjelland
.Lise Bjelland
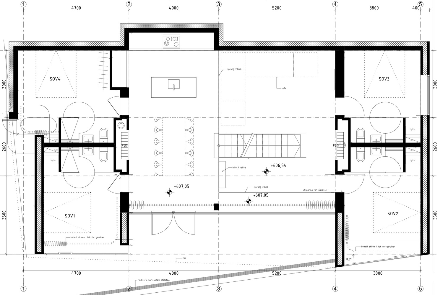
这房子有两层楼。较低的楼层包括车库、储藏室、技术室、桑拿和带壁炉的起居室。主楼层由四个等效的卧室组成,围绕着一个大的公共房间。公共客厅背靠着地势,朝向南面,正面全开。地板上的高度差将厨房和用餐空间与普通客厅的其他部分隔开。
The house has two floors. The lower floor contains a garage, storage, technical room, a sauna and a living room with a fireplace. The main floor is organized with four equivalent bedrooms around a large common room. The common living room is backed against the terrain and oriented towards south with a full façade-opening. A height difference in the floor divides the kitchen and dining space from the rest of the common living room.
在这个项目中,有一个强烈的愿望,客户有一个免维护的房子,最好是在混凝土。考虑到陡峭的地块也容易发生山体滑坡,而且需要将房屋建在地势中,混凝土是一种自然的选择。
In this project, there was a strong desire from the client to have a maintenance-free house, preferably built in concrete. Given the steep plot, which is also subject to landslides, and the need to build the house into the terrain, concrete was a natural choice.
房子周围的自然是非常存在的,这就是防止混凝土房屋感到寒冷的原因。同样重要的是,我们在房屋的硬混凝土调色板中加入木制元素。厨房、门、栏杆和桑拿都是用木头做的,以减轻印象。
The surrounding nature is very present in the house, and it is this that prevents the concrete house feeling cold. It was also important for us to build in wooden elements into the hard concrete-palette of the house. The kitchen, doors, railings and sauna are all executed in wood to soften the impression.
一些主要的技术挑战是来自地形的土壤水平压力,以及起居室和厨房的巨大建筑跨度。
Some of the main technical challenges were the soil horizontal pressure from the terrain and the large construction span over the living room and kitchen.
© Lise Bjelland
.Lise Bjelland
与建筑工程师一起解决这些问题既具有挑战性,又有回报。挪威土工研究所(NGI)从早期阶段就加入了该项目,并进行了一项研究,该研究为房屋的建造和尺寸标注提供了指导方针。同样重要的是要使优雅的隔热混凝土和玻璃元素成为可能。在这里,玻璃大师帮了大忙。所有玻璃元素的执行与粘合细节,以尽量减少框架和窗台。
Solving these problems together with construction engineers was both challenging and rewarding. Norwegian Geotechnical Institute – NGI joined the project from an early phase and made a study which gave guidelines for building and dimensioning of the house. It was also important to make the elegant insulated concrete and glass elements possible. Here the glass-master was of great help. All glass elements are executed with adhesion details, in order to minimize frames and sills.
© Lise Bjelland
.Lise Bjelland
Architects Filter Arkitekter
Location Sirdal, Norway
Category Houses
Area 165.0 sqm
Project Year 2015
Photographs Lise Bjelland
客服
消息
收藏
下载
最近















