查看完整案例

收藏

下载
© Javier Callejas
.Javier Callejas
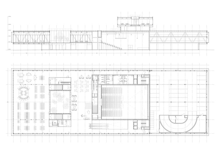
架构师提供的文本描述。这个全新的休闲综合体和文化中心体现了曾经强大但现已不复存在的造船厂、码头和拉西恩-苏尔-梅尔(La Seyne-Sur-Mer)的电网仓库的精神,坐落在海湾和杜桑大道之间的新市政公园旁边。
Text description provided by the architects. The brand new leisure complex and cultural centre captures the spirit of the once mighty but now defunct shipyards, docks and the grid warehouses at La Seyne-sur-Mer, and is set alongside the new municipal park between the bay and boulevard Toussaint-Merle.
© Javier Callejas
.Javier Callejas
这座新落成的建筑群东边是一个大型休闲游艇码头,西边是一个最近被美化的公共公园。公园的尽头,就在老吊桥旁边,矗立着一家新的三星级酒店。因此,赌场是一系列大型现有和未来设施的中心,这些设施位于一个文化和商业中心的中心,它将为古老的砖砌建筑、码头和码头延伸部分注入活力,沿着一个享有特权和自主的海滨。
The newly completed complex is bordered to the east by a great leisure craft marina and to the west by a recently landscaped public park, at the end of which, just by the old drawbridge, stands a new three star hotel. The casino is thus at the heart of a series of large existing and future installations in the centre of a cultural and commercial hub which will breathe life into the old brick buildings, docks and the marina extension, along a privileged and autonomous beachfront.
© Javier Callejas
.Javier Callejas
设计师的工作重点是建立一个与其所处环境相对应的统一的建筑布局。这种四边形模式在几何上很简单,并自然地与码头旁的土地的正交部分相吻合。从公园的角度看,这座新建筑群有着停泊码头上一艘旧船的气息,这一景象让人想起了既有赌场又有剧院的混合节目。
The efforts of designers were focused on building a unified architectural arrangement which corresponds with its immediate environment. This quadrilateral schema is geometrically simple and fits naturally into the orthogonal portion of the land alongside the docklands. Viewed from the park the new complex has the air of an old ship at moored dock, an image that evokes the mixed programme on offer, featuring both a casino yet also a theatre.
© Javier Callejas
.Javier Callejas
一个巨大的石头广场欢迎游客来到位于玻璃了望塔前的赌场和剧院的共同入口。当它面向大海时,由于它的几何形状,这座建筑为这些标志性的项目设置了场景,比如赌场和老了望塔中的全景餐厅,它突出起来就像一个平台,在海港的弓处有一个悬臂延伸的部分。
A large stone square welcomes the visitor to the shared entrance to the casino and theatre, located right in front of the glass watchtower. As it faces out to sea and because of its geometry the building sets the scene for these emblematic projects such as the gaming rooms and the panoramic restaurant in the old watchtower, which juts out like a platform with a cantilevered extension at the bow of the harbour.
© Javier Callejas
.Javier Callejas
Architects DATA
Location 83500 La Seyne-sur-Mer, France
Category Cultural Center
Area 5100.0 sqm
Project Year 2016
Photographs Javier Callejas
客服
消息
收藏
下载
最近













