查看完整案例

收藏

下载
© beersingnoi
© beersingnoi
架构师提供的文本描述。荣誉住宅由12个游泳池别墅组成,位于Ram Inthra附近,位于纳龙高速公路,与曼谷CBD直接相连。
Text description provided by the architects. The Honor Residence is composed with 12 pool villa located near Ram Inthra-At Narong Expressway which is directly connected to Bangkok CBD.
© beersingnoi
© beersingnoi
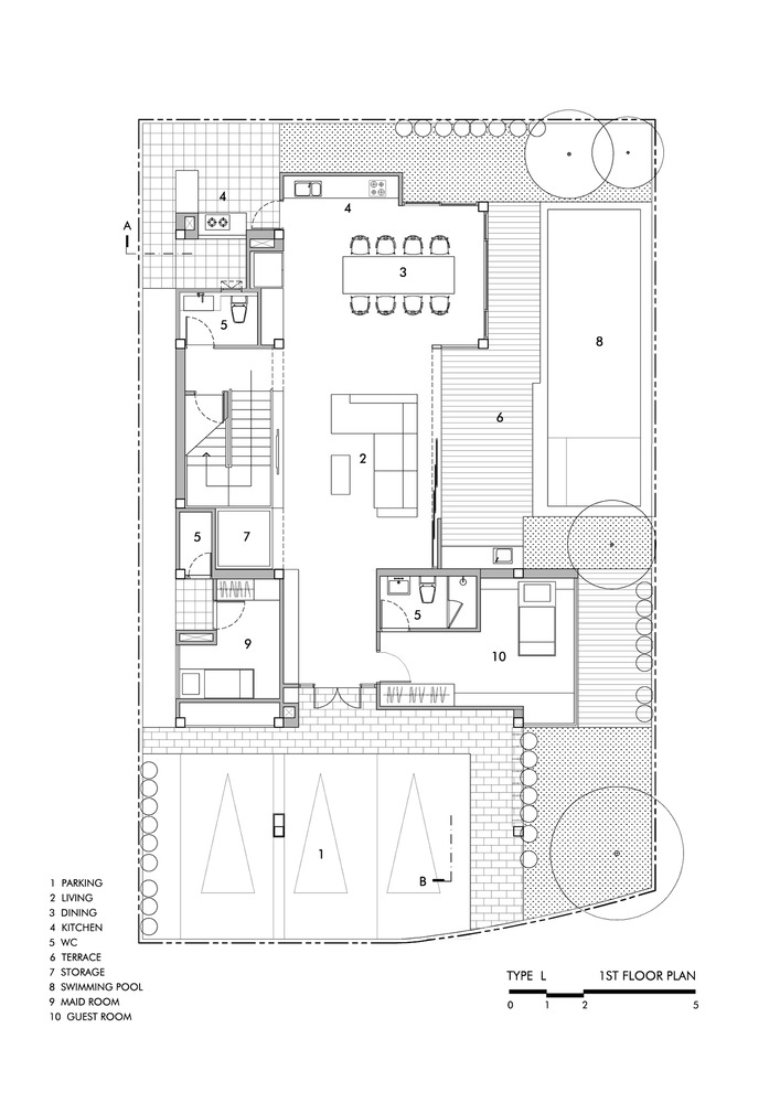
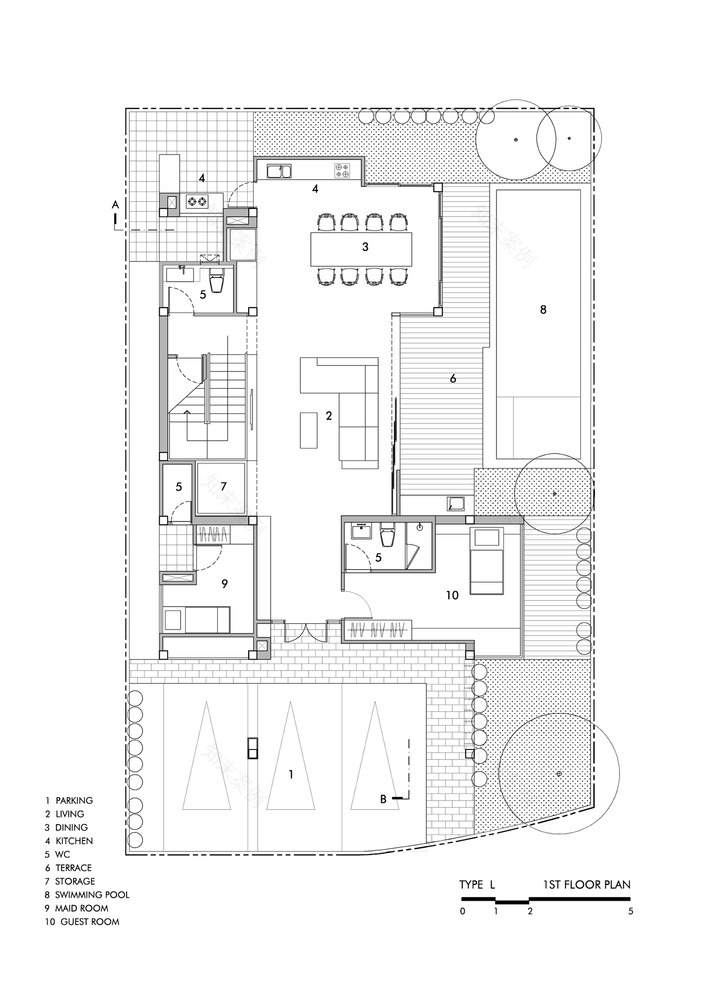
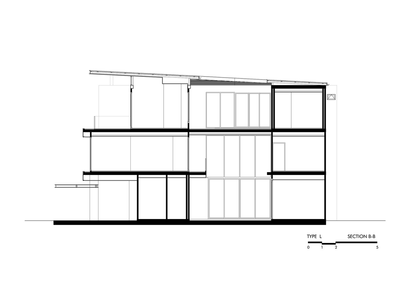
每个单元的U形规划是为了创建自己的庭院,并为每个单独的房子保持隐私。在二楼外墙,熔岩覆层被设置为浮动,但创造了一个简单的实体几何。
U-shape planning for each unit is developed to create its own courtyard and keeps privacy for each individual house. At 2nd floor exterior wall, Lava stone cladding is set to be floating, and yet create a simple solid geometry.
© beersingnoi
© beersingnoi
介绍了石框、木箱和屏风的联锁,用于遮阳和与周围环境的混合。采用后张结构体系,以创造大跨度的高吊顶室内空间,游泳池上方无柱浮箱。开放计划允许空间从一个函数流到另一个函数。
Interlocking the stone frame, wooden box and screen is introduced for sun shading and blending with surrounding. Post tension structure system is selected in order to create high ceiling interior space with wide span, the column-free floating box above the swimming pool. Open plan allow spaces to flow from one function to other.
Architects PODesign
Location Bangkok, Thailand
Category Houses
Area 5400.0 sqm
Project Year 2016
Photographs beersingnoi
客服
消息
收藏
下载
最近


































