查看完整案例

收藏

下载
小木屋全景是由卡萨建筑公司完成的一项住宅项目。
住宅位于加拿大魁北克的圣西蒙。
在图库中查看
在图库中查看
在图库中查看
在图库中查看
在图库中查看
在图库中查看
在图库中查看
在图库中查看
在图库中查看
在图库中查看
在图库中查看
在图库中查看
在图库中查看
在图库中查看
在图库中查看
在图库中查看
在图库中查看
在图库中查看
卡萨建筑的小木屋全景:
“居住全景建筑直接建在岩石地形上,沿着查列维奥瓦地区的圣劳伦斯河,是一个与周围环境和谐的空间。基础概念是把建筑放在平行的混凝土叶片上,这样水就能自然地在建筑物下面流动。
交叉层合木墙具有较高的刚度,满足了该地区的抗震要求。
辐射混凝土板、面向东南的木幕墙、超大屋面悬垂、气密性和保温质量等特点,使施工不仅达到无可否认的舒适性,而且还可获得LEED金认证。
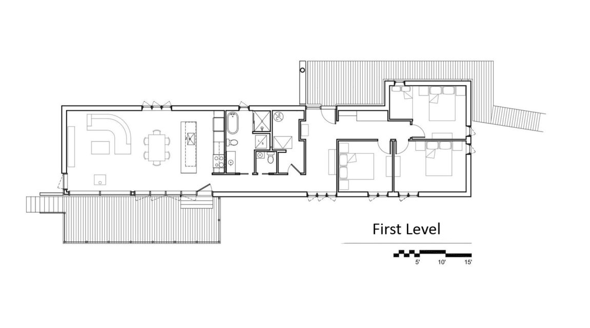
在一种对生态负责的精神中,有几个组成部分已经从一个古老的修道院中恢复过来。精心挑选的元素有助于创造一个舒适、明亮和活跃的环境。专门用于租赁,选择一个单一的生活水平本身,以允许简化和流动的空间。这种排成一行的设计,使所有的房间都朝着河边开放,并使生活和休息区形成了强烈的隔离。“
在图库中查看
在图库中查看
图片来源:史蒂夫·蒙佩特
keywords:Architecture Casa Art Bedroom Canada Decorative Accessory Dining Room Fireplace Floor Plans Hall and Entrance Kitchen Landscaping Lighting Living Room Quebec Rug Saint-Siméon Terrace Wall Decor Wood Floors Wood Walls
关键词:建筑,Casa艺术,卧室,加拿大装饰配件,餐厅,壁炉,平面图,大厅和入口厨房,景观美化,照明,客厅,魁北克地毯,圣西美,阳台,墙面,木地板,木墙面
客服
消息
收藏
下载
最近






















