查看完整案例

收藏

下载
建筑师:工作室111位置:HLBOBOK Annad VLTVouou,捷克共和国年:2015照片礼貌:Jii-WeiZeTtl描述:
他说:“较窄三角形的地块位于一个平静的郊区的尽头。”在它的东北方向,是一个陡峭的斜坡,在伏尔塔瓦河的洪泛区有着美丽的景色。
我们把房子放在入口对面的一边,入口正在扩大,但不是地势的边缘。这把花园分成两部分,有着不同的氛围:正面和背面。花园的前部成为游泳池边下午活动的场所,是与游客见面的社交空间。
这个地方的气氛是独一无二的,尤其是在日落的时候,太阳在宫殿的轮廓之上。后花园是一个亲密的空间,可以感知周围自然的无处不在的色彩、声音和气味。
这主要是因为没有栅栏-光障-它会把周围环境的美丽隔开。
物体的聚集和布局受到不寻常的情节形状、基本方向和显着地将外部与内部连接的努力的影响。此外,我们还包括上述所有的全景要素作为影响室内空间的因素。
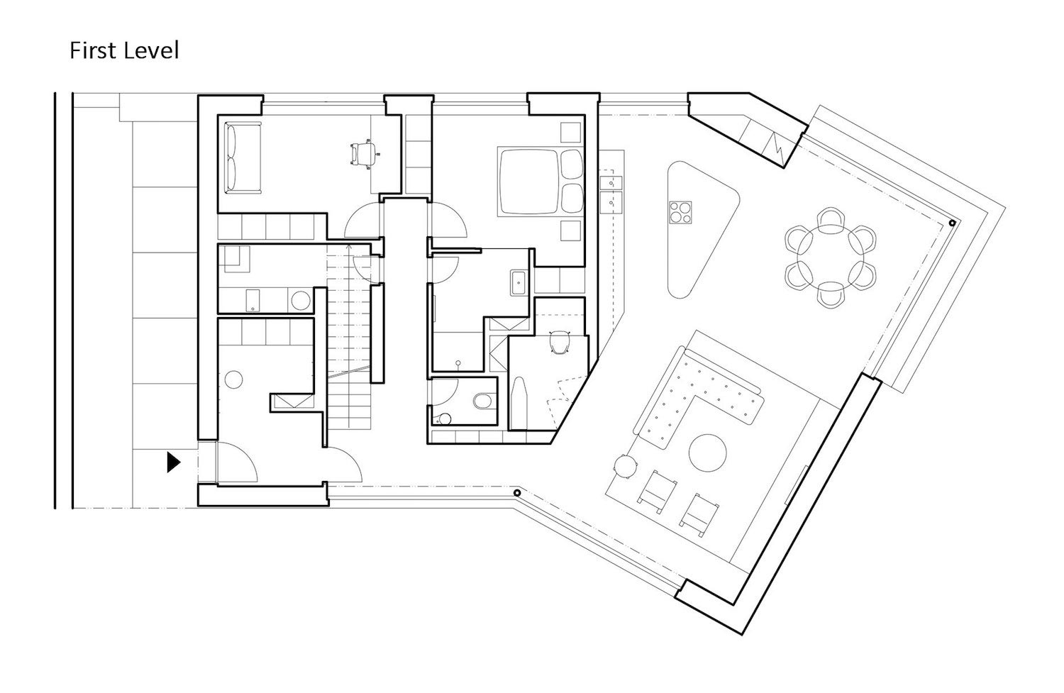
在底层,除了主要的起居空间和设施房外,还设有带浴室的父母卧室。孩子们的卧室、第二间浴室和露台在楼上。
这座房子的现代布局代表了一个四人家庭的紧凑家庭住宅,但在楼梯后面的大厅里,我们可以实现楼上成为一个独立的住房单元。“
谢谢你阅读这篇文章!
keywords:ATELIER 111 Czech Republic Hluboká nad Vltavou
关键词:111个捷克共和国Hlubokánad Vltavou
客服
消息
收藏
下载
最近


























