查看完整案例

收藏

下载
建筑师:日托明里/Tomoko地点:日本大阪松原县:2015年面积:861平方英尺/80平方米
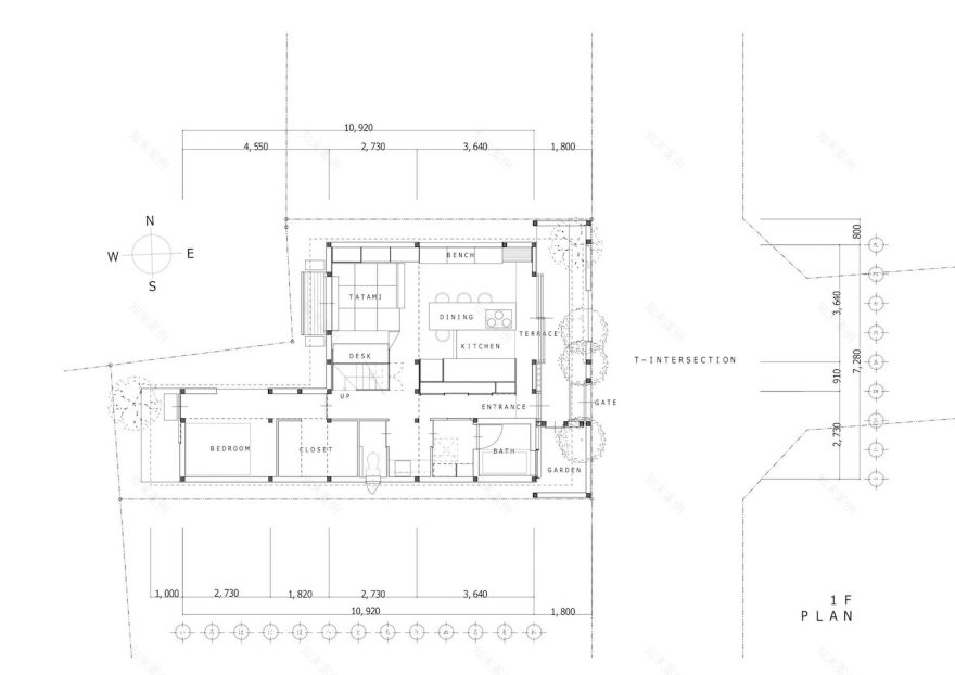
“一座四人的房子建在一个小型开发场地上。为了确保隐私,沿着房产和街道的边界线设置了一道栅栏。篱笆被设计成房子的正面。
晨光透过栅栏内一大块磨砂玻璃过滤掉在餐桌上。光线也通过篱笆顶部和屋檐之间,并扩散到树木的叶子沿着篱笆,创造了一个效果,你不会期望从相对沉闷的周围环境。由于在后花园放置了一个阳台,光线可以从邻近的建筑和篱笆屋之间的空间进入,光似乎升华了佛家圣坛的黄铜门。
光线流过天窗,从楼梯的白色墙壁扩散开来,提供了一种调制感。通常由2.06米的低楼梯高度所形成的阴影会被天窗的影响加深。它是光与影的调节,微风穿过房子的方式,使篱笆屋具有个性,创造了丰富的生活环境。手工制作的木结构框架结构和高度细致的面向木工,使这座建筑坐在一个微型的发展景观,一个真正的美的外观。“
谢谢你阅读这篇文章!
keywords:Hitotomori/Tomoko Japan Matsubara Osaka Prefecture
关键词:日本松原县
客服
消息
收藏
下载
最近




























